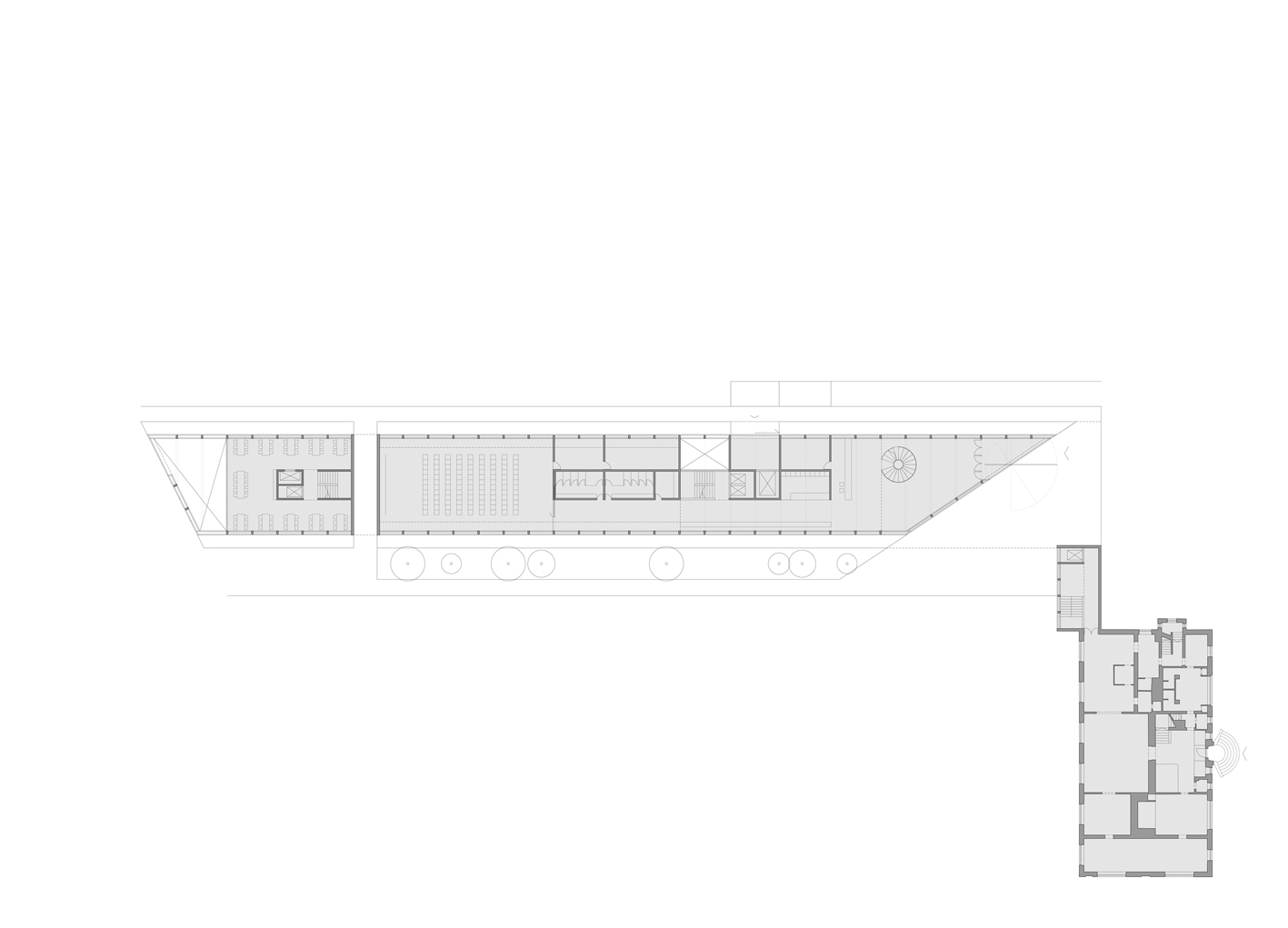
Serlachius Museum Gösta is a proposal by ETB Studio for Serlachius Fine Arts Foundation designed in 2011. It is located in Mänttä Finland in a lake setting. Its scale is medium. Key material is concrete. Concepts such as sloped roof and zenithal light are explored. Review the 16 proposals for the same competition.

The Serlachius Museum Gosta Eextension is conceived as a silent action, a system, able to capture and emphasize the particular and main features of the place it belongs, without affecting the strong emotional charge of the surrounding landscape. Reduction, minimalism and simplicity in the architecture of the structure are the direct responses to the boundless beauty of this geography. An idea that recovers the memory of the place through a primordial form, an iconic and synthetic picture, which doesn’t overlap the landscape but allows an intense and emotional reading.

0507-ETB-FI-2011 — Posted in 2013 — Explore more projects on cultural and museum — Climate: artic / polar and cold — Coordinates: 62.027446, 24.575139 — Team: Alessandro Tessari, Matteo Bandiera — Collaborator: Nicola di Pietro, German Pro Lozano — Views: 4.646