Sportzentrum Saint Moritz is a proposal by Francisco Mangado for Ville de Saint Moritz designed in 2010. It is located in St. Moritz Switzerland in an outskirt setting. Its scale is medium. Key material is stone. Concepts such as organic zenithal light and water are explored.

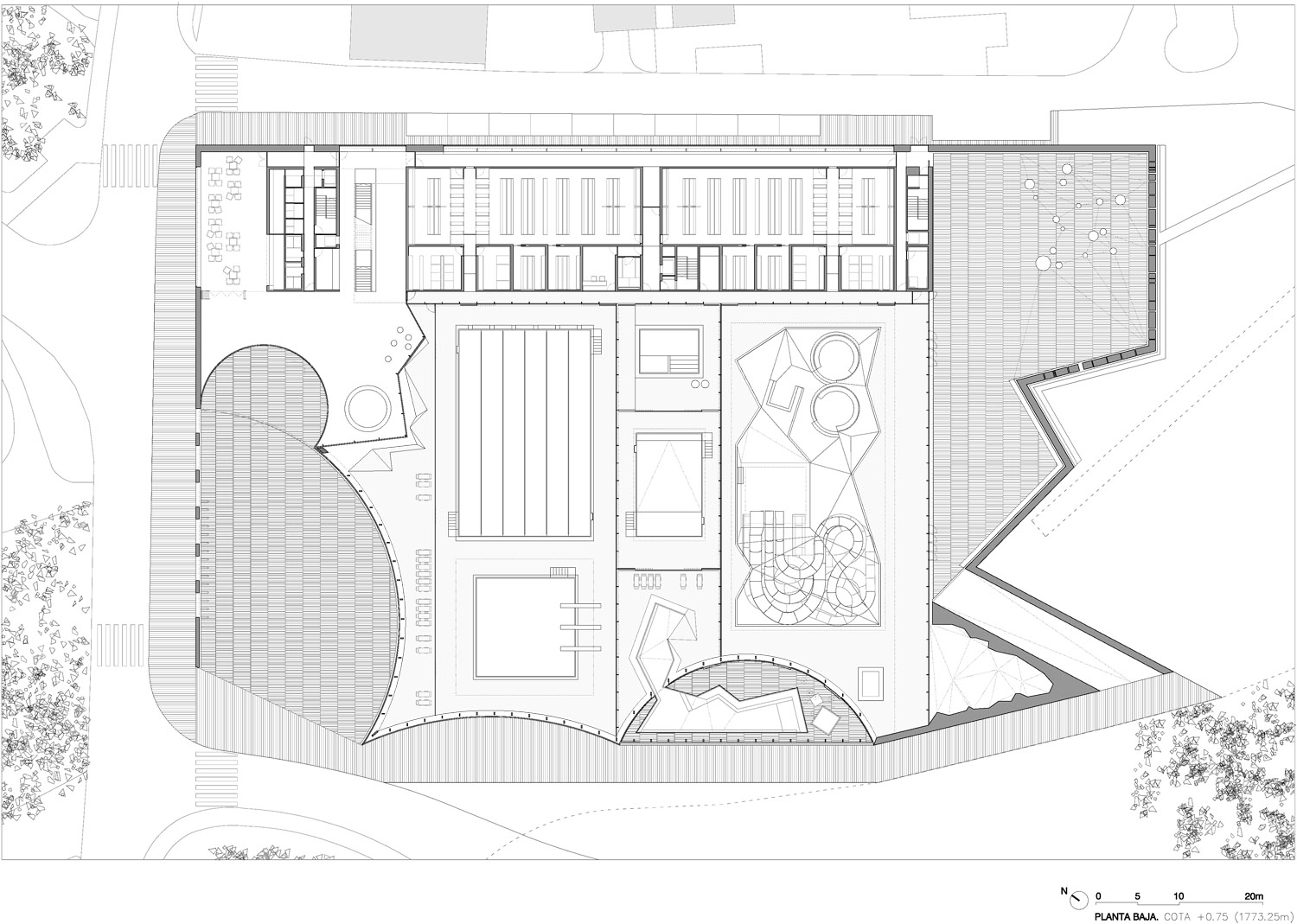
Saint-Moritz es un paisaje más que una ciudad. Posee la grandeza de la naturaleza, la omnipresencia de sus montañas. La ciudad, seguramente de una manera voluntaria, se adapta a esta inmensidad, a la belleza de este entorno. El edificio de piscinas se encuentra en el perímetro del núcleo urbano, sin referencias a trazas o estructuras edificadas. En cierta manera, el edificio estará solo, sin la protección de lo edificado y en este lugar aparece como alejado, enfrentándose a las montañas mismas. Una condición atractiva y sugerente. Por todo ello, la sección del edificio empieza a dibujarse como prolongación del perfil de las montañas. Como continuidad del paisaje. Y se concibe como una prolongación de este perfil montañoso dentro de la ciudad.

La sección “montañosa” del proyecto crea un gran espacio, una gran cubierta donde se albergan todas las piscinas y dotaciones. Un gran espacio rico donde cada área de piscinas, dependiendo del carácter funcional que tengan – las de niños, que tienen que estar acústicamente aisladas aunque visualmente controladas, las de salto y trampolines que requieren más altura… – cuentan con un espacio único. Este gran espacio, dividido en zonas con vidrio, pero unitario en su concepción, se proyecta al exterior a lo largo de un perímetro completamente acristalado que permite, mientras se está disfrutando del agua, tener visiones del paisaje que rodea la ciudad.

El objetivo de la propuesta, además de establecer la relación con el contexto paisajístico, es establecer una graduación entre lo público y lo privado. Por esta razón, el edificio se retranquea en su planta siguiendo unas geometrías curvas. Las curvas que definen el perímetro norte y oeste del edificio configuran espacios públicos, espacios colchón, que subrayan la dimensión dotacional y pública del intervento. Intensifican el valor y la significación del mismo, y crean, especialmente en la zona de entrada, lugares de llegada, que permiten graduar el acceso al edificio, a la vez que aparecen lugares de protección previa al usuario.

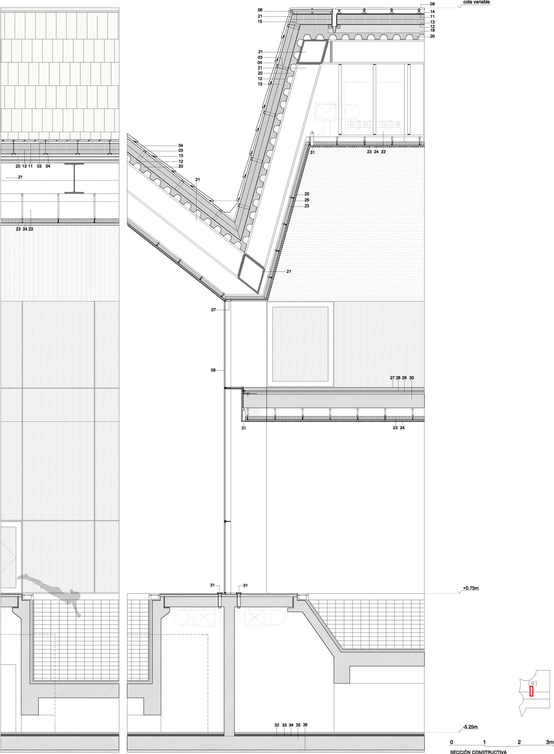
Para el revestimiento del edificio se propone un único material. El gres vitrificado permite ser utilizado tanto para las fachadas como para las cubiertas. Esto es muy importante, por cuanto el edificio aparece entonces como una unidad, como una “roca” que ha sido desgajada de la montaña. Su color será blanco, no muy claro, algo matizado como la nieve misma, al objeto de que las sombras y las luces se intensifiquen resbalando en las superficies del edificio. Su colocación, sobre el muro de hormigón y el gran espesor de aislamiento, se ejecutará como si se tratara de las escamas de una piel, intensificando los efectos de la luz, especialmente la luz de poniente y aumentando así la riqueza de la textura en los muros.

0514-FMA-CH-2010 — Posted in 2012 — Explore more projects on sport and sport center — Climate: cold and alpine — Coordinates: 46.483905, 9.836397 — Collaborator: Mangado y Asociados S.L. (Jose M. Gastaldo, Arrate Arizaga, Miguel Guerra, Sabine Megow, Abraham Piñate), Wittfoht Architekten (Jens Wittfoht, Leonardo Sartori) — Consultant: Transsolar Energietechnik GmbH — Engineer: ID Lufttechnik + Anlagenbau — Structural engineer: Schlaich Bergmann und Partner sbp GmbH. — Landscape: Glück Landschaftsarchitektur — Views: 5.347