Swiss Embassy is a proposal by m2au for Schweizer Bundesamt für Bauten und Logistik designed in 2018. It is located in Addis Abeba Ethiopia in an urban setting. Its scale is medium with a surface of 1.944 sqm an estimated budget of 13.300.000 € and a ratio of 6.842 €/sqm. Key material is concrete.

The incidental cluster of residential and outbuildings creates public streets, squares and yards in between. The place of returns, homeland. The symbols of security, intimacy and familiar places are synonymous with the requirements of the embassy.

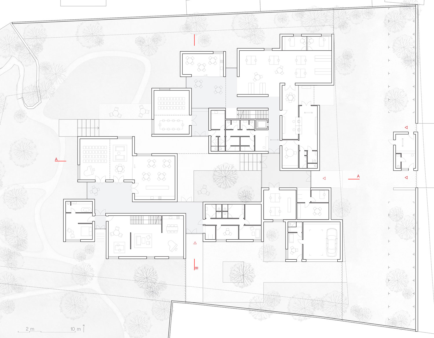
The embassy

The cluster of houses forms two main communication axes, intersecting the atrium, the heart of the house. The spaces between the houses create informal centers of each part of the complex, places for meetings and also rest. The small scale of masses inconspicuously enters its surroundings and responds to the declining terrain. It purposefully does not act and look as an important institution, but gradually reveals visitors its parts as they walk through to the garden. The embassy building is strictly structured according to the spatial program, each part of it has its own entrance, character and is oriented to another part of the complex.

Das Dorf

Die natürliche Struktur der Familienhäuser und der wirtschaftlichen Gebäuden ermutigt gerade die öffentlichen Straßen, des Stadtplatzes, des Hoffens und des Atriums zu entstehen. Der Ort voll der Rückkehr, der Heimat. Das Symbol für die Sicherheit, Intimität und ein vertrauten Ort. Es gibt kein besserer Platz für die Botschaft.

Die Botschaft

Die Ballung der Häuser formiert zwei Straßenachsen, wo in der Mitte das Atrium steht. Das Herz des Gebäudes. Die Häuser der Botschaft bilden die natürlichen Zentren für Meetings, Treffen und Entspannung. Nur ein Paar Gebäuden mischen mit der Umwelt ein und reagieren auf die sinkende Landschaft. Diese Botschaft sieht nicht als die prunkvolle Institution auf dem ersten Blick aus, sondern sie zeigt dem man seine Zaubersprüche nicht früher als er in dem Garten geht. Das Botschaftsgebäude ist streng nach dem räumlichen Programm strukturiert, jeder Teil hat seinen eigenen Eingang, Charakter und ist auf einen anderen Teil des Komplexes ausgerichtet.

2394-M2A-ADD.ET-2018 — Posted in 2019 — Explore more projects on embassy and institutional — Climate: hot and humid subtropical — Coordinates: 9.005147, 38.718134 — Views: 10.472