Theatre in a church is a thrid prize proposal by Bernat Pedro Planas and Pau Vidal for Ajuntament de Castelló d'Empúries designed in 2021. It is located in Castelló d'Empúries Spain in an urban setting. Its scale is medium with a surface of 1.257 sqm. Key materials are stone and metal. Play-Time collaborated as visualizer. Review the 2 proposals for the same competition.

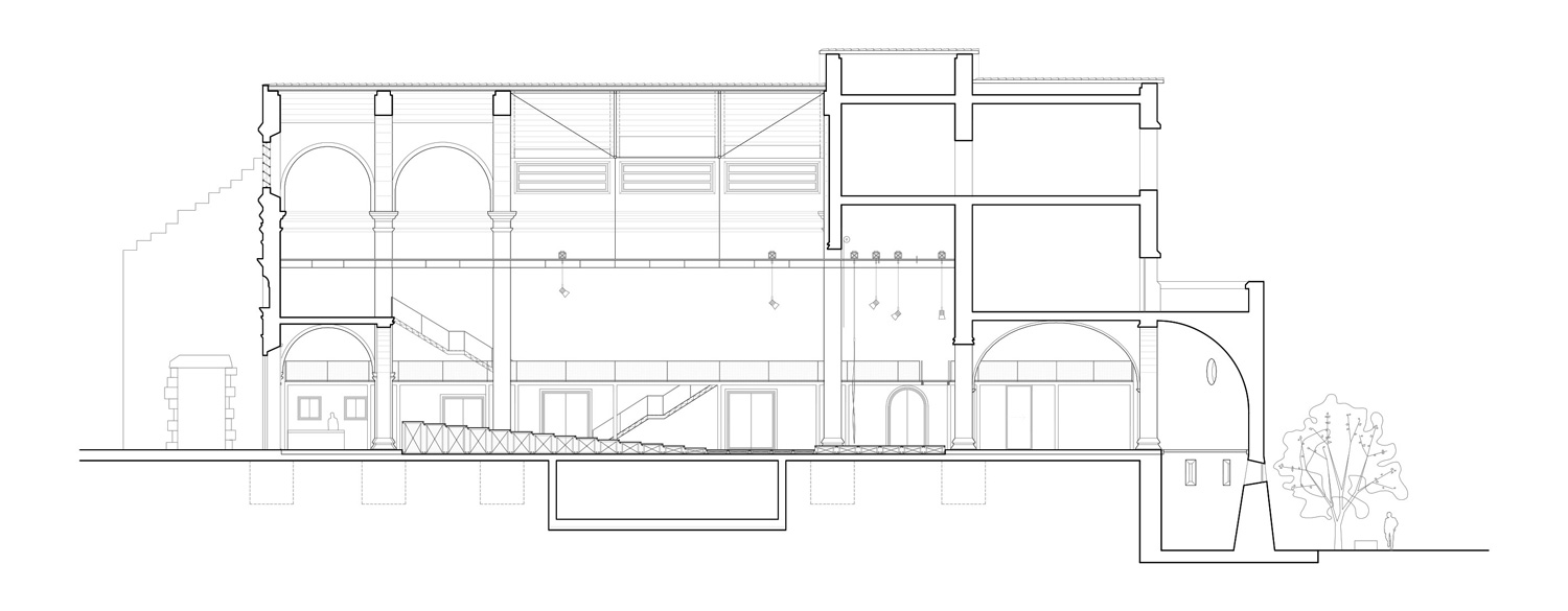
Intervenir en el patrimonio se entiende como una sobreposición estratégica de capas a partir de la comprensión histórica, material, estructural y espacial de la preexistencia.

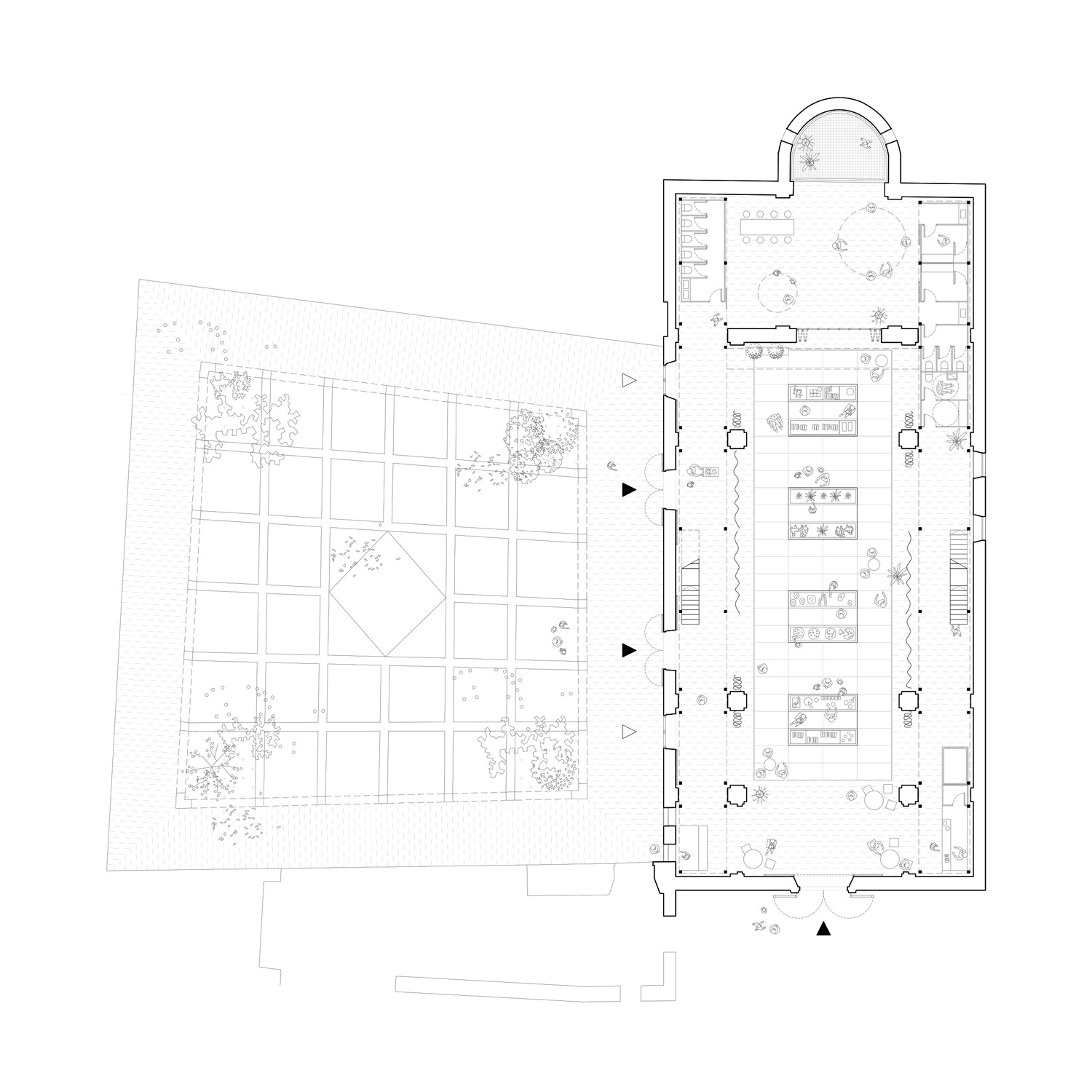
Se trata de una propuesta capaz de acoger distintas actividades y transformarse en el tiempo, tanto para absorber nuevas demandas como para re-definir los usos inicialmente implementados. Funciona más como espacio de oportunidades antes que una arquitectura cerrada. Se restituyen las naves laterales desdibujadas con la última reforma mediante dos altillos ligeros que siguen el ritmo de las crujías y se colocan siempre en segundo plano respecto a la preexistencia. Complementarios a la nave principal, incorporan todo el grano pequeño de programa, liberando el espacio central y potenciando la lectura longitudinal del acceso hasta el ábside.

2877-BPP-ES-2021 — Posted in 2021 — Explore more projects on auditorium cultural and refurbishment — Climate: mediterranean and temperate — Coordinates: 42.258299, 3.074243 — Views: 3.359