Viviendas en l’illa Glòries is a proposal by SV60 Cordón & Liñán Arquitectos for Patronat Municipal de l'Habitatge designed in 2017. It is located in Barcelona Spain in an urban setting. Its scale is medium. Concepts such as broken volume void balcony and courtyard are explored.

Entendemos el lugar como un acumulador de situaciones, elementos o acontecimientos que se construyen como un único concepto desde una mirada amplia y compleja que establece las pautas de reconocimiento más allá de los valores propiamente visuales o físicos. El lugar que vemos tiene viento, luz, espacios maleables, la memoria futura de los habitantes, además de unas pautas urbanizadoras ya establecidas. Ponemos en juego unos parámetros para crear un fragmento autónomo de ciudad que reconstruya esencias perceptivas asociadas a una comprensión propia del lugar. Plazas, Calles, Parques, Patios se configuran como los elementos básicos para definir esta nueva unidad urbana. De esta manera el proyecto apuesta por una comprensión amplia del lugar de intervención para establecer unas pautas de soporte paisajístico y de relación con la ciudad, el paisaje y la memoria.

Ordenación

Proponemos un Proyecto racional, flexible y adaptable a las condiciones sociales y urbanísticas exigidas. Aunque el conjunto se entiende como una unidad, nuestra propuesta permite dividir fácilmente la edificación en cuatro paquetes diferenciados que pueden ser piezas autónomas con una arquitectura propia, integradas en un conjunto volumétrico que intenta funcionar como una manzana más del Ensanche que busca relaciones espaciales con el entorno cercano y que pretende formalizarse como una arquitectura silenciosa, tranquila y funcional.

Permeabilidad

El conjunto se concibe como un sistema permeable, horadado por múltiples huecos que traspasan el edificio de una fachada a otra conectándose con los patios interiores y generando un modelo de vivienda esculpido por vacíos interiores que aprovecha al máximo las condiciones climáticas de la zona y a la vez genera espacios de conexión interior entre los vecinos generando espacios de conexión social sin sacrificar la privacidad propia de cada vivienda.

Objeto y percepción

Se respetan los parámetros normativos de altura, alineaciones y ocupación, y se agotan los parámetros de edificabilidad y número de viviendas para todo el conjunto dividiéndolo en cuatro edificios. Los programas comerciales se agrupan en las plantas bajas alrededor del gran espacio público interior (Plaza) para generar un nodo de actividades sociales que permita a los habitantes colonizar el espacio público alrededor de las viviendas.

Sostenibilidad

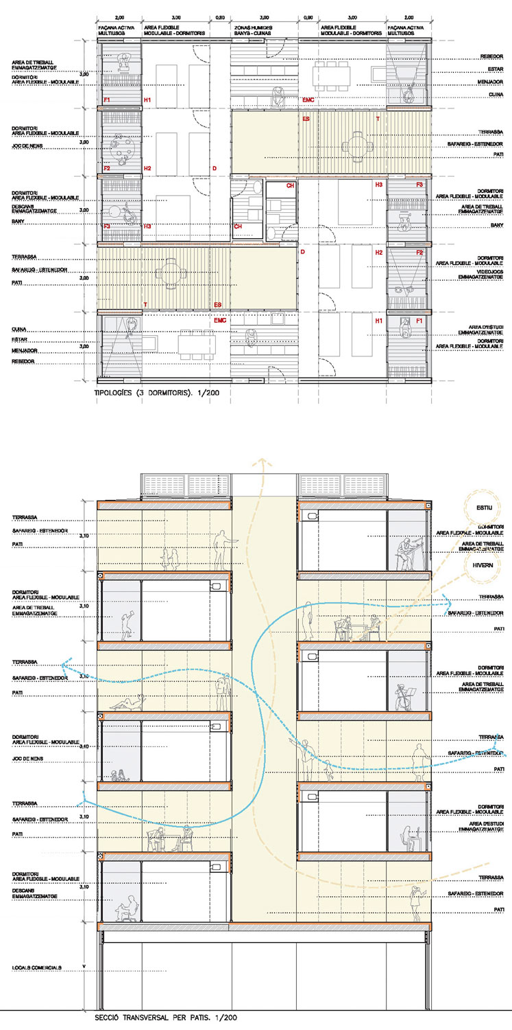
Se plantea un modelo edificatorio que pretende mejorar las cualidades de calidad de vida mediante sistemas que optimizan las condiciones de uso y ahorro de energía, potenciando en lo posible el uso de recursos naturales propios del lugar. La incidencia solar en las fachadas en función de la orientación (Norte-Sur) es controlada mediante un sistema de «fachada profunda»). Se propone un sistema de ventilación cruzada, ya que todas las viviendas tienen doble orientación. Este sistema se basa en un patio interior conectado al exterior mediante terrazas que van cambiando de orientación para mejorar la circulación del aire y mantener las viviendas ventiladas continuamente.

Programa y vivienda

Construimos los edificios basándonos en un tipo base que se adapta al tamaño de las unidades personales o familiares que los habitan. La tipología se basa en un modelo racional generado por módulos de 3.00 x 3.00m que se van agrupando en función de las necesidades de uso. Cada módulo tiene un uso propio: habitación, estar, comedor, terraza, y a estos se le añaden baños y pasillos. La diversidad en el posicionamiento de los huecos, terrazas, patios y vacíos en general trata de establecer la continuidad espacial interior estableciendo relaciones internas entre las viviendas y mejorando el funcionamiento y la eficiencia energética de los edificios. Todas las viviendas tienen doble orientación, terrazas propias y patios interiores. Además se propone una fachada profunda cuya función es adaptable a las necesidades de los habitantes.

Flexibilidad

Las viviendas pueden ser muy versátiles (flexibles) cambiando el uso de las estancias en función de las necesidades de los habitantes o de las épocas del año para optimizar las orientaciones. Las cocinas se sitúan colindantes a los patios y con una zona de tendedero – lavadero en las terrazas.

1921-S60-BCN.ES-2017 — Posted in 2017 — Explore more projects on housing and residential — Climate: mediterranean and temperate — Coordinates: 41.401698, 2.185638 — Team: Antonio G. Liñán, Antonio González Cordón — Collaborator: Esteban Valencia, Domiziana Scipioni, Flavia Calia, Lucía Zafra — Views: 10.318