105 viviendas en Madrid is a proposal by Paco Marqués for EMVS designed in 2011. It is located in Madrid Spain in an urban setting. Its scale is medium with a surface of 9.018 sqm. Concepts such as open ground floor balcony and linear block are explored. Review the 2 proposals for the same competition.

El imaginario moderno parece pervivir en los deseos que dan forma a numerosas áreas de crecimiento de nuestras ciudades. La parcela objeto de concurso ha sido definida de este modo, una pieza residencial de alta densidad que debe porticarse en planta baja para no interrumpir la continuidad del parque que la rodeará en un futuro. El proyecto parte de asumir esta condición, liberando al máximo la planta baja para proponer un lugar de encuentro, una gran loggia levemente elevada sobre el terreno. Se trata de convertir este espacio en un salón urbano, a medio camino entre lo público y lo doméstico. Frente al paisaje existente y la incertidumbre de lo que está por venir, el nuevo edificio aparece como un cuerpo sólido y sereno. El volumen que alberga las viviendas es claro, adaptándose con naturalidad a la geometría impuesta y ajustando la solución de fachada en función de la orientación. Hacia el sur los paneles de GRC se pliegan para aumentar la profundidad de los huecos, reduciendo la incidencia solar en los meses de verano. El resultado será una imagen vibrante, animada por el paso del día. En cambio la fachada norte se aplana para aprovechar al máximo las horas de sol, cobrando importancia la componente vertical de la estructura.

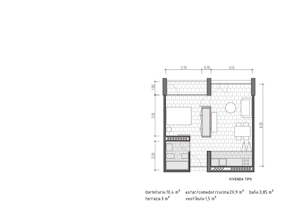
Las plantas de vivienda se organizan a través de una galería central que se remata en sus extremos con terrazas abiertas a orientaciones diferentes. Este esquema garantiza tanto la presencia de luz natural como la ventilación de la misma. Los pisos se componen de tres núcleos equipados: el baño, la cocina y un espacio para almacenamiento en torno al cual se articula la vivienda. Esta disposición permitirá tanto un uso convencional de la misma como un funcionamiento más fluido, posibilitando distintos modos de ocupación. La flexibilidad entendida desde la disponibilidad. La cualidad del espacio de planta baja se confía en gran medida a la expresión de la gravedad. Este deseo se traduce en la reducción del número de soportes, lo que lleva a plantear una estructura de grandes luces (13m) resuelta mediante vigas de descuelgue coincidentes con las separaciones entre viviendas.

1096-CAY-MAD.ES-2011 — Posted in 2015 — Explore more projects on housing and residential — Climate: continental and temperate — Team: María Cayuela, Paco Marqués — Views: 3.269