30 studios for disabled people is a completed project by 51N4E for De Lork vzw designed in 2005 and completed in 2014. It is located in Brussels Belgium in an urban setting. Its scale is medium with a surface of 1.975 sqm an estimated budget of 2.500.000 € and a ratio of 1.266 €/sqm. Key materials are brick and plaster. The concept of folded facade is explored.

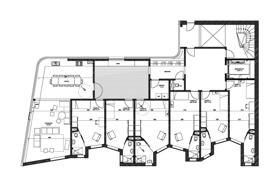
Permanent home to 30 people, De Lork is organized in small communities. Between the privact of one’s own room and the communal living dining, inhabitants are provided with additional spaces for casual socializing: a small garden, a terrace, and the circulation spaces, designed to be perceived and function as proper rooms. The organization of every floor places all private rooms on the front side to give cues of street life to all inhabitants. The street facade, alternating convex and concave parts, maximizes window surface and viewing angles for the rooms as well as integratins the mass of the building to the small and dense terraced houses adjacent to the plot. The back of the building bears a peculiarity: it is the fourth (and missing) wing of a cloister garden. A continuous, monumental, largely translucent brick facade covers the back and side of the building. It offers the necessary privacy for the cloister as well as generous light for the circulation and living spaces. Modest but rich in experiences, the building inverts expectations on all levels.

0143-51N-BRU.BE-2005.14 — Posted in 2014 — Explore more projects on residence and residential — Climate: oceanic / maritime and temperate — Team: Johan Anrys, Freek Persyn, Peter Swinnen, Aline Neirynck, Kelly Hendriks, Sotiria Kornaropoulou, Jan Opdekamp, Tom Baelus, Bob De Wispelaere, Karel Verstraeten, Joram Van Den Brande, Paul Steinbrück, Emmanuel Debroise, Maddalena Treccani — Collaborator: Sannah Belzer — Consultant: BSTK, BALT, Deconinck — Photography: Georgios Eftaxiopoulos & Paul Steinbrück — Views: 4.737