38 viviendas en una serrería is a proposal by CREUSeCARRASCO designed in 2008. It is located in A Coruña Spain in a countryside setting. Its scale is medium with a surface of 4.566 sqm. The concept of adaptable reuse is explored.

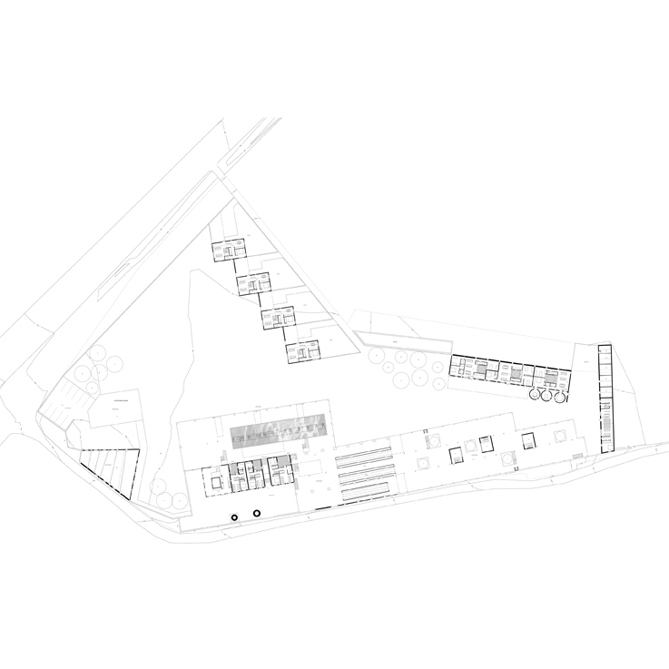
El planteamiento del proyecto cuestiona los mecanismos de intervención en ámbitos de núcleo rural, reducidos a la aplicación de ordenanzas con parámetros formales que relacionan dimensión de la propiedad, cantidad de edificación y tipología edificatoria. En este contexto, la intervención atiende más a cuestiones relacionadas con lo que creemos es un emplazamiento singular y a valores que, no siendo reconocidos por el plan, representan argumentos que pertenecen a la identidad del lugar, la historia y su medio humano. Este es el caso de la antigua serrería, conjunto no catalogado pero de extraordinaria presencia en el entorno del núcleo, cuya finca participa, como otras muchas, de las condiciones que establece una ordenanza genérica susceptible de ser loteada en parcelas y construido con vivienda unifamiliar. Esta aceptación de lo ya construido hace que el proyecto, además del reto constructivo que supone reutilizar parte de las naves y elementos de interés, proponga y reclame estrategias de desarrollo de los núcleos rurales con una amplitud mayor.

La propuesta opta por un proyecto conjunto para los 15.221m2, manteniendo la intensidad de edificación prevista por el Plan General e interpretando la tipología edificatoria por considerar que, tanto algunas de las construcciones de la serrería, como la propia memoria del lugar, constituyen valores añadidos que no sólo no deben ser borrados, sino que permiten afianzar la identidad del lugar, superponiendo el uso residencial y la estructura fabril y rehabilitando y haciendo accesibles al público las partes más significativas de la serrería como bienes culturales y patrimoniales relacionados con una intervención residencial. De esta forma, caldera, chimeneas, recorrido de transmisión, secaderos, naves, silos… pueden pasar a ser elementos de un paisaje industrial domesticado y a su vez, cocina, dormitorio, baño, estar, patio, jardín… son insertados en la memoria de los espacios de trabajo. Así, el uso y la percepción del tiempo pueden diluir la histórica separación de funciones entre industria, residencia y espacio agrícola.

Un conglomerado-tejido formado por las naves existentes ocupadas e intervenidas con uso residencial y naves nuevas que completan e intercalan con las anteriores ajustando su modulación a un proceso constructivo diferente en el que los espacios de relación entre las piezas juegan un papel fundamental en la legibilidad del conjunto. En definitiva, aceptar la heterogeneidad de las construcciones como singularidad y a la vez utilizar y prolongar los rasgos de su perfil como un paisaje ya retenido en la memoria.

0330-CEC-ES-2008 — Posted in 2012 — Explore more projects on housing and residential — Climate: oceanic / maritime and temperate — Collaborator: Belén Salgado, Marta Carro, Alexandre Antunes, Bárbara Mesquita — Views: 2.537