51 logements BBC is a proposal by 2:pm architectures Nicolas Laisné and OFF Architecture designed in 2013. It is located in Paris France in an urban setting. Its scale is medium with a surface of 4.300 sqm an estimated budget of 5.100.000 € and a ratio of 1.186 €/sqm. Key material is brick. The concept of balcony is explored.

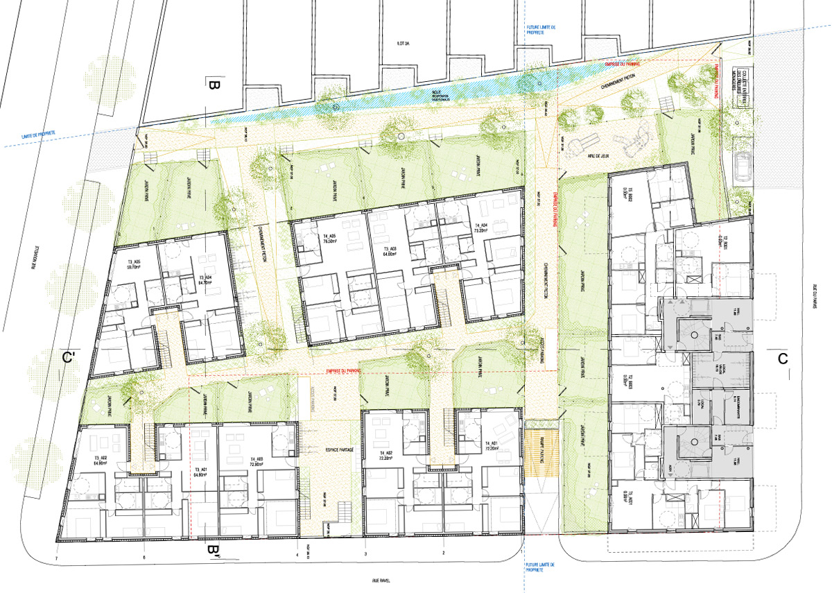
Le plan d’occupation des sols mis en place a pour souci de préserver la diversité, l’identité des différents quartiers de la commune et de désenclaver le grand ensemble. A la périphérie du centre-ville, le grand ensemble des 4000 fait l’objet d’un projet de renouvellement urbain. Les dynamiques en cours passent par l’amélioration du maillage urbain et la construction de logements. Le projet s’intègre dans un environnement en constitution. Il amorce une volonté de changement, une volonté de fabriquer de  la ville diversifiée, en privilégiant l’intermédiaire et le petit collectif. Il nous faut l’îlot et la barre, l’aération, mais aussi la continuité, la rue, mais sans rien céder de l’hétérogénéité du  programme. Nous proposons de formaliser la notion de Clos au sens littéral, de qualifier chaque vide en les hiérarchisant, d’offrir ici une vie de quartier, simplement. Retrouver la rue, en réintroduisant un langage urbain, avec sa continuité, ses seuils et ses portes. Mais ne pas céder les jardins, les qualités des logements, et tous les intérêts d’un espace plus ouvert.

Nous proposons de caractériser un cœur d’îlot ouvert, protégé et partagé qui présente des espaces communs, des desserte piétonne, des aires de jeux et de discussions, des endroits ou garer son vélo et aller chercher son courrier ainsi que des espaces privés de qualités. Les habitants vivent de la même manière l’accès à leur logement qu’ils habitent au niveau du sol ou aux étages, dans la bande ouest comme dans la bande est. Ils entrent par les venelles collectives d’accès, empruntent la venelle de desserte et entrent chez eux par un espace extérieur préservant l’intimité des jardins ou terrasses. Les toitures de l’opération sont traitées en toiture terrasse sur la totalité de l’opération afin de répondre à une demande d’extension future mais également pour offrir un usage extérieur supplémentaire.

0170-2PM.NIL.OFF-FR-2013 — Posted in 2013 — Explore more projects on housing and residential — Climate: oceanic / maritime and temperate — Coordinates: 48.931221, 2.380228 — Collaborator: Cardonnel, Vincent Pourtau — Structural engineer: Bétom — Views: 3.133