Alicante Congress Center is a proposal by Moarqs Aracil & Flores Arquitectos and Sofía Cacchione for Ayuntamiento de Alicante designed in 2024. It is located in Alicante Spain in a seaside setting. Its scale is large with a surface of 30.000 sqm an estimated budget of 45.141.000 € and a ratio of 1.505 €/sqm. Key materials are metal glass and concrete. Ethan de Clerk collaborated as visualizer. Concepts such as plinth tower and lattice are explored. Review the 4 proposals for the same competition.

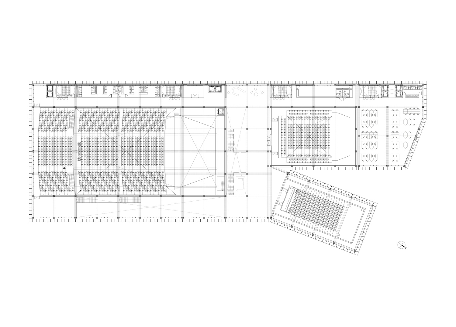
The Congress Center is seen as more than just a building; it represents Alicante’s strategic vision to elevate itself globally and become a unique urban player. Drawing from successful projects elsewhere, it’s recognized that such a proposal should not only activate the local community but also embody the positive values of its surroundings. The proposal aims to set the Center as a global benchmark for efficiency and sustainability, while locally, it seeks to engage in a meaningful dialogue with Alicante, respecting its history and culture. Specifically, it aims to revitalize the Port area, making it a hub for commercial and cultural activities and enhancing tourism offerings. The project sees an opportunity to intervene in a significant part of the city, aiming to improve the Port area and integrate it seamlessly into daily life for both residents and visitors. Recognizing the iconic landmarks of Alicante, like the Santa Bárbara Castle, the proposal aims to add to the city’s visual identity by creating a new landmark, in harmony with existing structures. This is not to diminish the challenges these structures faced during construction but rather to embrace their character and contribute to the city’s visual allure. The design of the administrative program within the Center aims to be prominent yet harmonious with the urban landscape, integrating with the surrounding environment without obstructing views. The new volume, resembling a coastal tower, will engage with the memory of Alicante’s coastal towers, contributing to the site’s multi-layered approach. The proposal focuses on developing a contemporary, user-friendly, and energy-efficient building that serves as a landmark in Alicante’s transformation, incorporating the city’s daily life and emotional connection of its citizens. The large halls prioritize audience movement, and other functions are integrated into a vertical tower, contributing to its urban landmark status.

0554-MQS-ALC.ES-2024 — Posted in 2024 — Explore more projects on auditorium and cultural — Climate: temperate and mediterranean — Coordinates: 38.335069, -0.488989 — Team: Ignacio Montaldo, Sofia Cacchione, Antonio Aracil, Jose María Flores — Collaborator: Nicolás Podestá, Silvina Aguiar, Catalina Ugarte, Blas Rowe — Consultant: Gustavo Basso, María Andrea Farina — Structural engineer: AHFSA (Alberto Fainstein) — Views: 1.849