Argentera private house is a proposal by Jofre Roca designed in 2004. It is located in L'Argentera Spain in a urbanization setting. Its scale is small with a surface of 260 sqm. Key materials are stone and plaster. Vimworks collaborated as visualizer. Concepts such as plinth lattice and flat roof are explored.

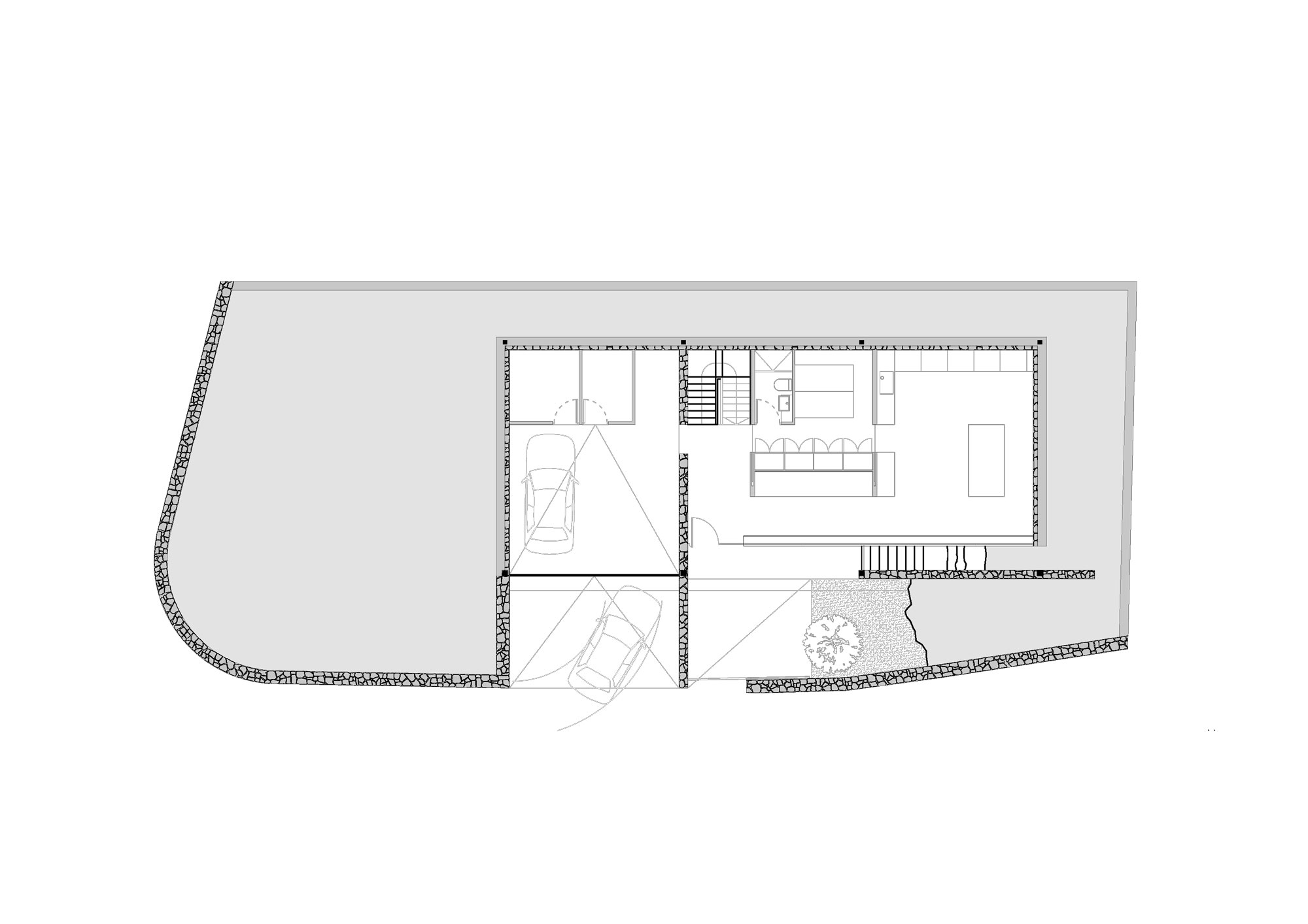
The detached single-family house is located at the foot of the Castell d’Escornalbou, in a plot in the surrounding area of Argentera. The program required to solve a house for a couple with children with a semi-underground space for a pottery workshop. The building is located on the upper level of the site. We took advantage of the height difference to solve the access and communication between both floors, sculpting the granite rock to create the stairs. The house is oriented to the south. Optimum orientation and at the same time, it enjoys exceptional visuals towards the Castell. The volume of the upper floor has the home area and it is related to the garden. In the semi-underground area is placed a pottery studio with a small bedroom and garage. A flat slab covers and provides a cantilever needed for sun protection during the warmer months. This house is been projected with passive systems in order to take the maximum benefit from solar energy and natural resources. Also, this house has a good insulation, crossed ventilation, an optimum orientation to get the maximum solar energy capitation and solar panels for the heating system. Moreover, again keeping in mind sustainable criteria, a water tank is built in order to collect rainwater/sewage to reuse it for toilet flushing or watering the garden. Last but not least, a system of under floor radiant heating is installed, taking advantage of the ground’s energy obtained by geothermal technology. In the garden, the existing pine-trees are kept and the new ones are autochthonous.

0949-AAB-TGN.ES-2004 — Posted in 2014 — Explore more projects on house and residential — Climate: temperate and mediterranean — Views: 2.667