Auditorium and music school is a winning proposal by Sanchis Olivares for Ajuntament de La Pobla de Farnals designed in 2023. It is located in La Pobla de Farnals Spain in an industrial and urban setting. Its scale is medium with a surface of 2.920 sqm an estimated budget of 5.200.000 € and a ratio of 1.781 €/sqm. Key materials are concrete and wood.

The municipality of La Pobla de Farnals is located in the northern cultivation fields that surround the city of Valencia, 10km from the city, and is divided between an inner urban centre and the tourist centre of its beach. The project is located in the urban centre, specifically on a plot located on its northern boundary, which borders the industrial area of the neighbouring town. This plot is characterised by being the backdrop for the perspective and path of Dr. Ortiz Sebastián Avenue, one of the main avenues of the town, and the pedestrian vectors that join it and connect its urban centre.

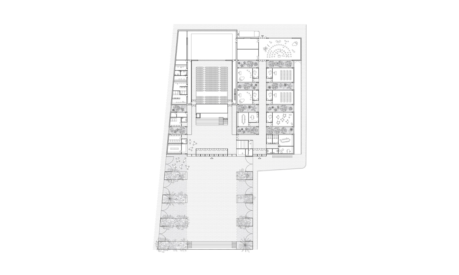
The competition calls for the construction of an auditorium and a music school and the development of the remaining free space on the plot. The mentioned urban conditions define the implementation of the project: in the southern part, all the free areas will be concentrated in such a way that a large square will be created to gather all the pedestrian flows leading to the plot, a multifunctional space on the ground floor and in the open air that will become part of the public space network of the town. In the northern part of the plot, the entire built volume of the building will be concentrated in such a way that its southern façade can be directly related to the square, extending it into its interior and therefore becoming a new urban front as a perspective background.

This volume is divided into two parts so that it can be built in independent phases, with each part of the programme being fully functional by itself. The geometry of the plot implies that one part of the new building will face the new square while the other will face the avenue. In the proposed building, the auditorium programme involves a higher volume than the music school on the ground floor, which will have a landscaped roof as required by the competition. For this reason, the music school is located in the eastern half of the plot, so that its roof is an extension of the green of the avenue. On the other hand, the auditorium is located in the western half of the plot: its higher volumetry becomes a built front to the industrial complex and its leisure activity is directly linked to the outdoor square it faces.

This position also avoids affecting the residential buildings next to the plot by not building in height in front of them. The urban planning conditions allow the ambitions of energy efficiency and constructive and economic rationality to be fulfilled by designing a compact volume, with a continuous envelope, which allows the building’s climatic behaviour to be unitary and optimises its structure. In the definition of the programme, the urban continuity of the public space is sought, looking for visual permeability and transparency as social values that define the new urban façade and link the interior activity with the exterior.

This is why the exterior vectors have continuity in the interior and the square becomes the foyer in the auditorium while the axis of the promenade becomes the corridor of the music school. In this way the spaces of distribution and spatial organisation become places of relationship in continuity with the public space. Perpendicular to these axes, a series of strips cross the building and become courtyards that allow the natural lighting and cross ventilation of all the rooms and spaces of the project.

3140-SAO-ES-2023 — Posted in 2024 — Explore more projects on auditorium cultural and music school — Climate: mediterranean and temperate — Coordinates: 39.5824580, -0.3262070 — Team: Esther Sanchis, Álvaro Olivares — Views: 2.490