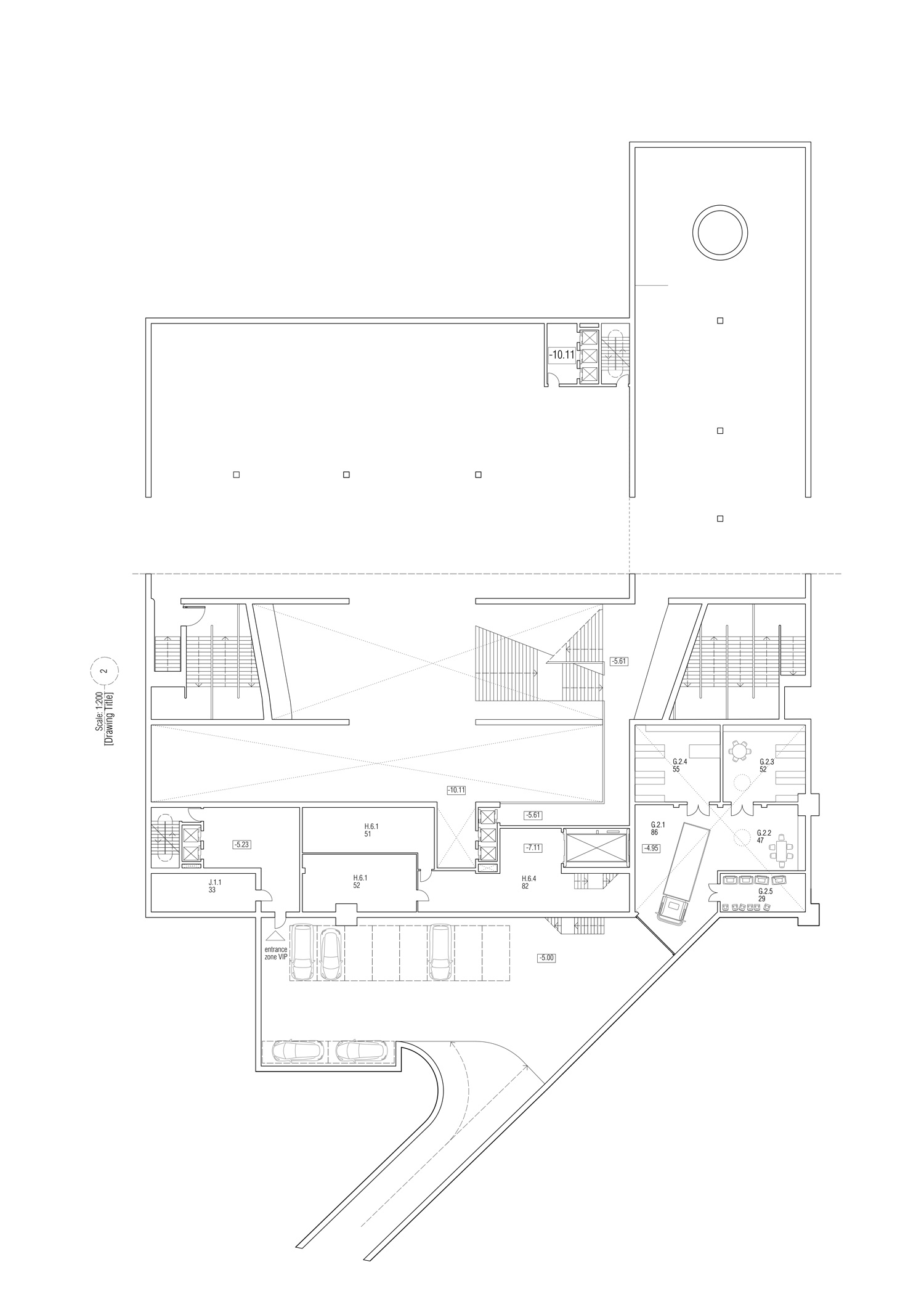
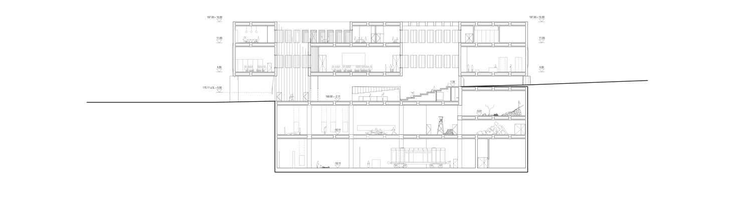
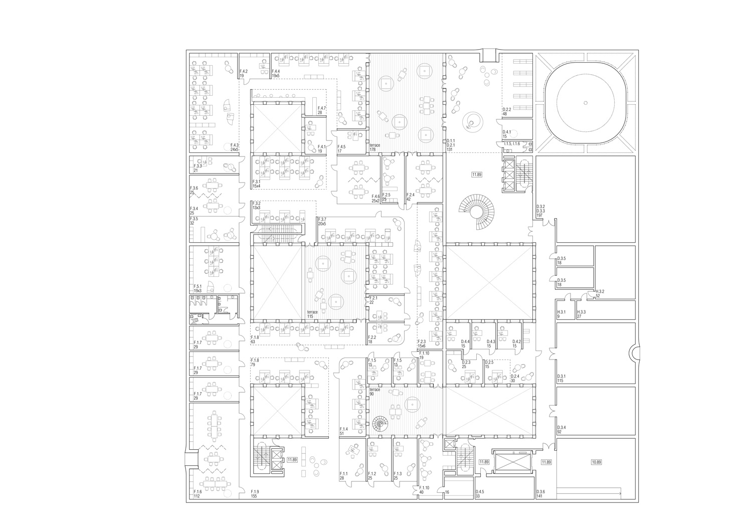
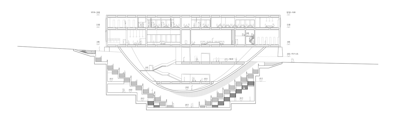
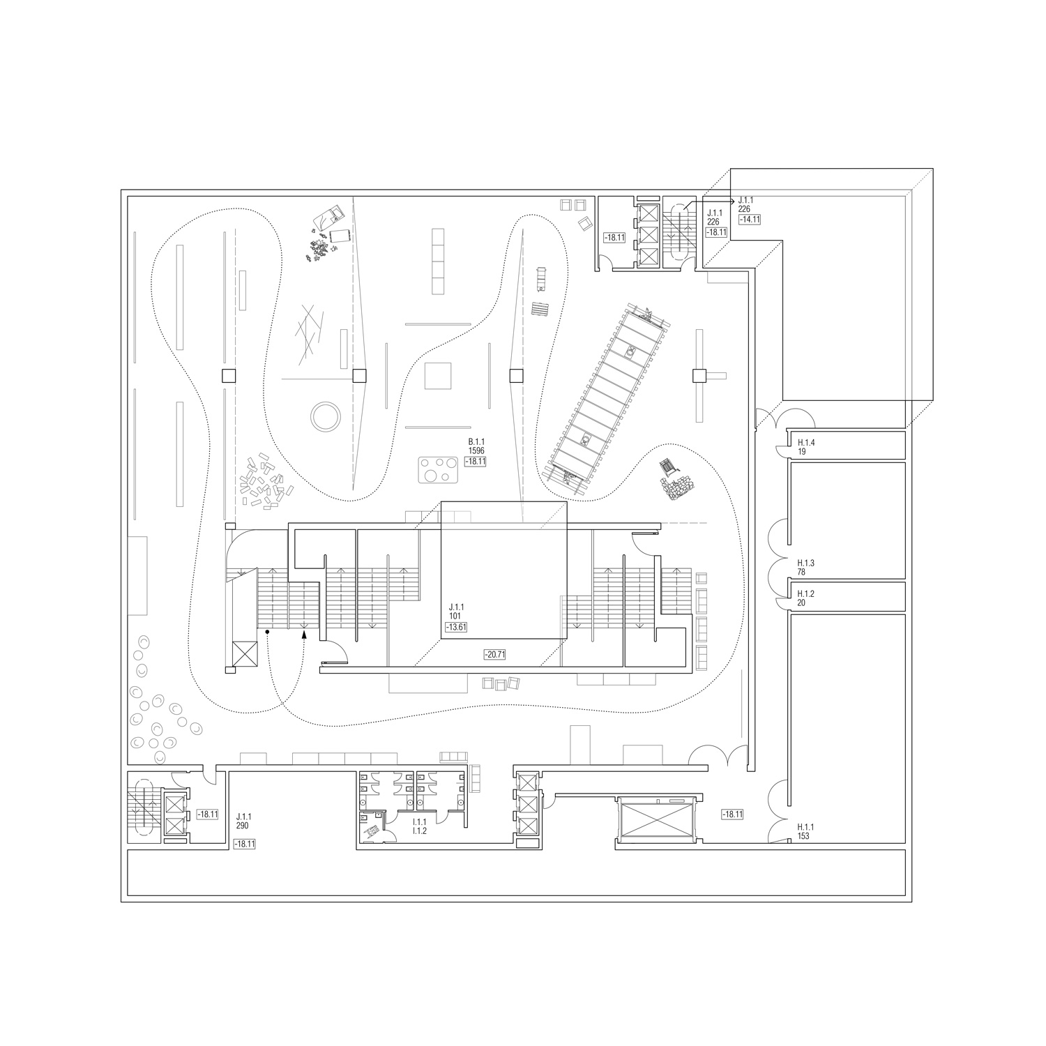
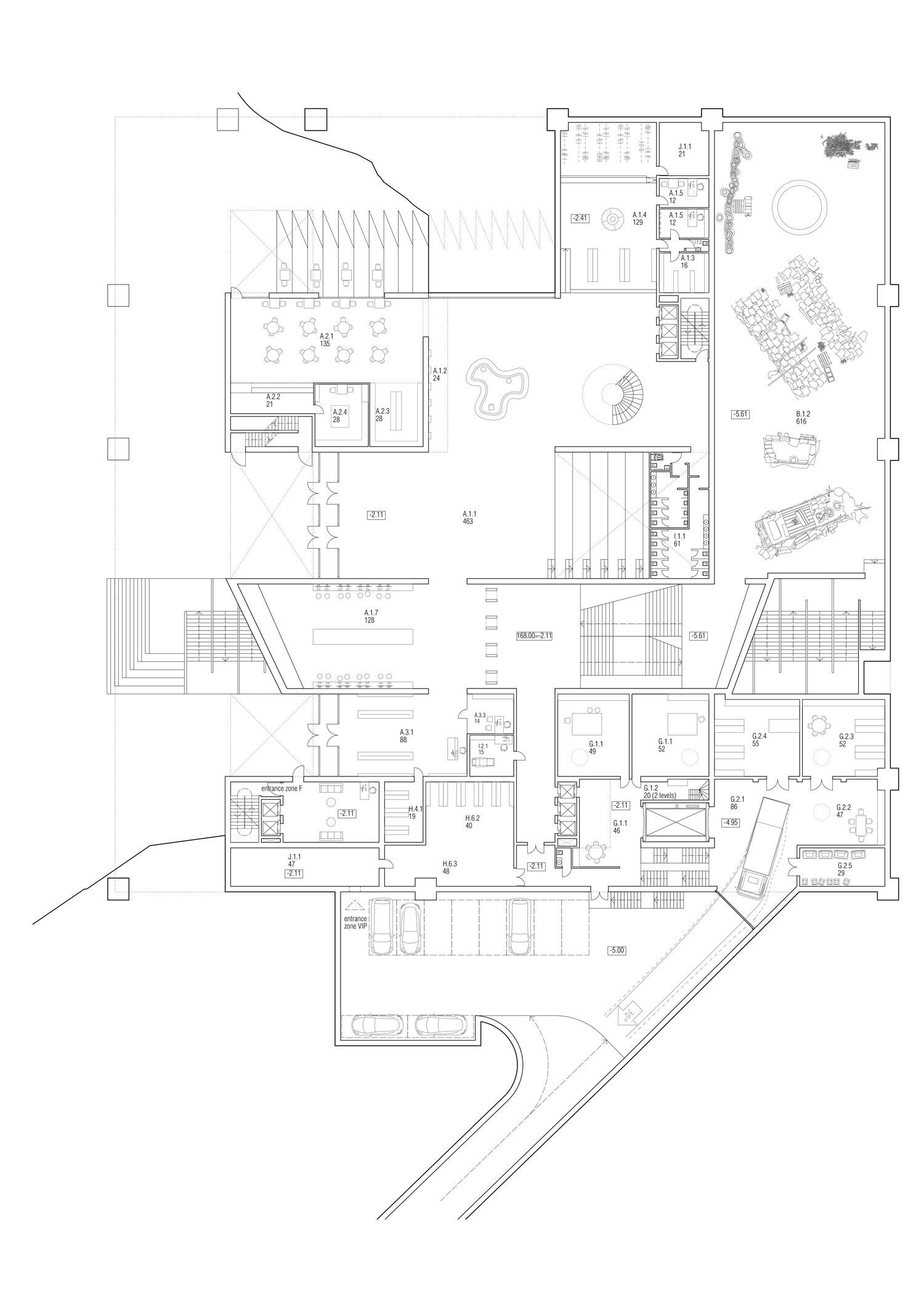
Babyn Yar Holocaust Memorial Center is a proposal by BURØ for Babyn Yar Holocaust Memorial Center designed in 2018. It is located in Kyiv Ukraine in a park setting. Its scale is large with a surface of 13.500 sqm. Key material is concrete.

The Babyn Yar Holocaust Memorial Center (hereinafter referred to as BYHMC) must reveal the truth about the events that took place in Kyiv in 1941-43 because of the perception of the break with the past and at the same time because of the sense of continuality of memory. It must become a place where memory crystallises and finds its shelter.

2645-BRO-IEV.UA-2018 — Posted in 2020 — Explore more projects on cultural and museum — Climate: continental and temperate — Coordinates: 50.475553, 30.452059 — Team: Oleksii Pakhomov, Oxana Feofilaktova, Mihail Churilov, Iryna Tsyba, Olha Valkova, Yaroslava Dubova, Yuliia Tymonina, Urii Rymakov, Anton Gerasymovych, Ielizaveta Myroshnychenko, Sergiy Ferley, Tatiana Liaskova, Dmytro Makahon, Viktor Fomin, Anton Oliynyk — Consultant: LLC V POLE DESIGN — Views: 5.279