Beacon Hill Baptist Church is a winning proposal by DRDH Architects designed in 2013. It is located in Tulsa OK United States in a countryside setting. Its scale is small with a surface of 1.000 sqm an estimated budget of 1.500.000 € and a ratio of 1.500 €/sqm. Key material is wood. Concepts such as broken volume sloped roof lightweight structure and zenithal light are explored.

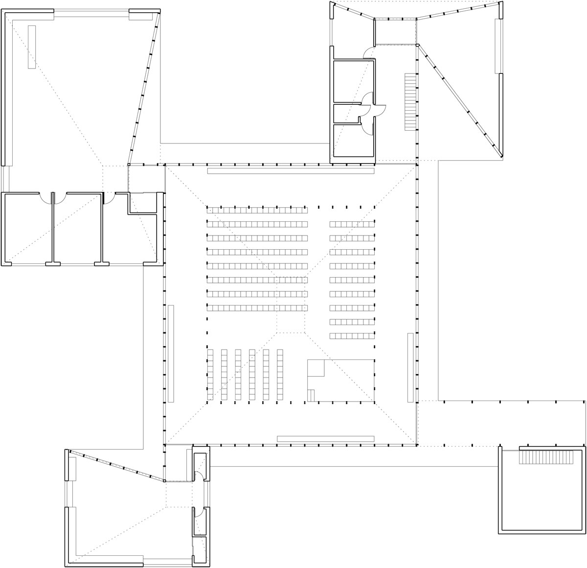
This new Church for the Beacon Hill Baptist Community is located in 100 acres of prairie, on the outskirts of Tulsa, Oklahoma, USA. The design of the Church seeks a fundamental relationship with its expansive landscape setting and the project encompasses its orchestration, including the creation of a baptismal lake and a memorial pavilion. Recognising the breadth of activity which the church engages in beyond worship, complementary functions are spread hierarchically between a number of individual but connected houses, with the main congregational space at their centre. This ensemble of pitched roofed, shingle clad forms creates an abstract but seemingly familiar figure within the prairie landscape. The main space, whilst it has a degree of directionality signified by the altar, is permeable and open on all sides to the landscape.

A sensibility reinforced by the clustering of pews into differently orientated fields. Around the perimeter a generous cloister provides circulation for the building and can accommodate an expanded congregation on significant days. Pin-wheeling in plan around the Sacred House are the Entrance House, the Children’s House, the Fellowship House and the Library Tower. Their skewed forms and asymmetrical placement counterpoint its centrality.

A further fundamental difference is revealed in their internal material and structural resolution. Each house shares the common spatial theme of a central roof-lit volume, held within a deep ancillary edge. Yet whilst in the surrounding houses these are lined and abstract, within the worship space an extremely delicate timber lattice is revealed, embodying sacred geometries within its construction. The current programme, defines the project in two phases. Phase One includes the Fellowship and Children’s Houses along with a connecting pergola that predicates the later buildings.

0305-DRD-TUL.US-2010.13 — Posted in 2013 — Explore more projects on church and religious — Climate: humid subtropical and temperate — Views: 7.518