Caixa Forum Zaragoza is a completed project by Carme Pinós for Fundación La Caixa designed in 2008 and completed in 2013. It is located in Zaragoza Spain in an urban and park setting. Its scale is medium with a surface of 6.300 sqm an estimated budget of 11.000.000 € and a ratio of 1.746 €/sqm. Key materials are concrete and metal. Concepts such as levitation symbol and origami are explored. Review the 2 proposals for the same competition.

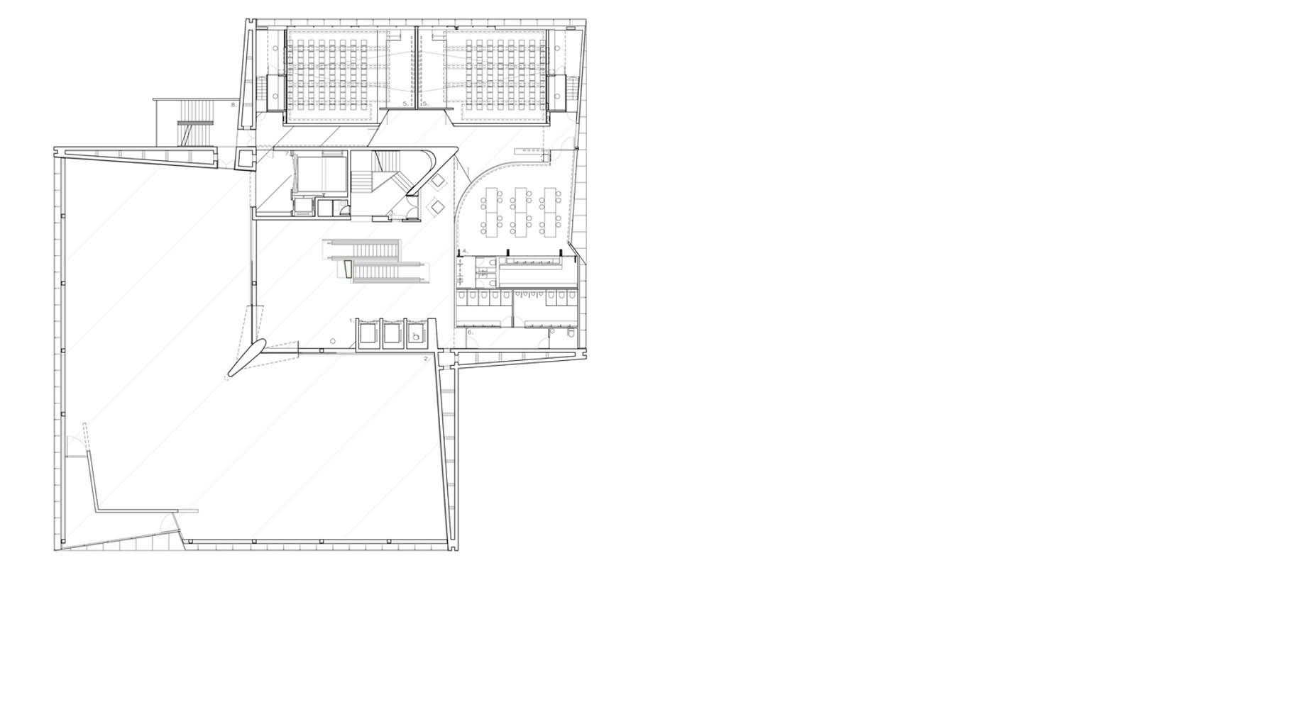
We started the Project considering two challenges. First: a building capable of “making the city”, by its singularity as well as by the public spaces generated. Second: a building that connects with the city and the new park through remote perspectives as one goes through it, but at the same time it should provide introspection in the exhibition halls. That is, a building “creating city” which at the same time makes us a part of it as we inhabit it. These two ways to approach the project are solved raising the exhibition halls in order to free the ground floor so the more open and transparent areas, such as the lobby and the shop, can be placed there. Our intention is to generate public space, taking the park towards the city and through the building; a space that will be lit at night with drawings coming from the metal sheet façade’s perforations. This metal sheet is also hiding the main structure supporting the elevated exhibition halls. The garden is placed underneath the raised exhibition hall and semi-buried, so that it is also auditorium’s evacuation. This garden can also be understood as a lobby and exterior catering zone for the auditorium, so that it is connected directly to the city even when it is placed in the basement.

The two suspended halls are facing each other on different levels so that, once outside, the city can be seen above or below the other hall. We think that some relax areas should be placed in between the exhibition halls and this is why the connection between the halls is solved by escalators, a type of path that allows distant views, instead of elevators that take us out of context and don’t offer the decompression needed between exhibitions. At the top of the building with views to the city and the new urban park, we placed the cafeteria and restaurant. On the other side, however, due to the level difference between halls, a terraced bar, in continuation to the interior restaurant, is generated, giving magnificent views to the Ranillas meander and the Expo Zaragoza. Our Project appears as a sculpture element in the middle of the park, thanks to a singular and feasible structure. We want our building to be a symbol of the technique’s progress and the culture’s generosity, to be the reflection of our time’s best qualities.

0468-CPI-ZAZ.ES-2008.13 — Posted in 2012 — Explore more projects on cultural and cultural center — Climate: continental and temperate — Coordinates: 41.652187, -0.894084 — Team: Samuel Arriola, Elsa Martí, Alberto Feijoo — Engineer: INDUS — Structural engineer: Robert Brufau i Associats — Model maker: Miquel Lluch — Photography: Estudio Carme Pinós — Views: 6.687