Biblioteca Municipal de Barcelona is a proposal by Lluís Jubert for Ajuntament de Barcelona designed in 2010. It is located in Barcelona Spain in a railway and urban setting. Its scale is large with a surface of 18.000 sqm an estimated budget of 32.241.379 € and a ratio of 1.791 €/sqm. Key materials are glass and metal. Concepts such as transparency linear block and structural praise are explored. Review the 3 proposals for the same competition.

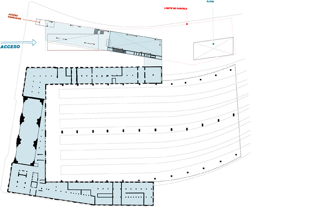
El cruce dónde acaban la Avenida del Marqués de la Argentera y el paseo de Picasso es el enclave donde se situará la nueva Biblioteca Pública del Estado, quedando encajada entre la estación de Francia y el parque de la Ciutadella. Es éste un emplazamiento sensible donde diversos ámbitos urbanos se encuentran entre sí y con la gran infraestructura que supone la estación. Las calles de esta área exhiben cierta monumentalidad tanto en sus dimensiones como en la homogeneidad y ritmo de sus fachadas. Se conforman así potentes frentes urbanos en los que se integran las fachadas de la estación de Francia. También el verde está presente como un telón de fondo en el parque de la Ciutadella y en un futuro ocupará la actual playa de vías. El Plan Director de la Ciutadella plantea un corredor verde desde el Arco de Triunfo hasta el mar que concentre distintos equipamientos institucionales y culturales y en el que se inscribe la futura biblioteca. Las dos grandes marquesinas metálicas de la estación constituyen una singular presencia arquitectónica en el lugar, que contrasta con el carácter muy urbano del resto de la arquitectura de la propia estación.

Se busca articular el encuentro entre unos frentes urbanos muy definidos, el verde del parque y la potente presencia de las marquesinas de la estación, dejando que cada uno de estos elementos mantenga su carácter. El edificio se divide en dos largos prismas. El primero dialoga con los frentes urbanos cercanos y muestra el testero a la avenida Marqués de la Argentera. El segundo desaparece, enterrado, frente a las marquesinas de la estación, de modo que no compita con ellas y permitiendo una continuidad visual desde el parque. El prisma visible de la biblioteca continua la volumetria de la estación convirtiendo la U en una S, la cual rodeará dos ámbitos de espacio público: los actuales andenes, bajo las marquesinas, que se convertirán en una continuación cubierta del parque de la Ciutadella, y una plaza larga que dará acceso a la propia biblioteca. Las fachadas del cuerpo visible asumirán el carácter homogéneo de las fachadas cercanas, para respetar el carácter de frente urbano de éstas. Se busca la mímesis en dos conceptos: altura y ritmos compositivos.

El nuevo equipamiento desempeñará la función de biblioteca central de toda el área metropolitana de Barcelona y por tanto sus requerimientos son superlativos, tanto en relación a la complejidad del programa como a las dimensiones de los espacios e incluso a la necesidad de representatividad, de visibilidad urbana. La propuesta reconoce la gran escala de la biblioteca proponiendo un acceso y unas circulaciones internas representativos. El ámbito es muy alargado y relativamente estrecho y obliga a pensar en una disposición longitudinal del programa. La propuesta organiza las circulaciones verticales internas de manera lineal como una franja lateral. La gran cantidad de usuarios diarios potenciales de la biblioteca y la complejidad del programa hacen de la zona de acogida y promoción un espacio central que articula todos los flujos internos de la biblioteca. Este espacio conforma una transición hacia el exterior en pendiente que dota al edificio de representatividad y al ingreso en él de ritualidad.

0469-JUB-BCN.ES-2010 — Posted in 2012 — Explore more projects on education and library — Climate: temperate and mediterranean — Coordinates: 41.384928, 2.186464 — Collaborator: Alberto González, Carmen Fernández, Jordi Calbetó, Rafael Pérez — Views: 3.013