Cantina Bortolin Angelo is a finalist proposal by Lopes Brenna for Bortolin Angelo Spumanti S.a.s. designed in 2012. It is located in Guia Italy in an urban setting. Its scale is medium. Key material is concrete. Concepts such as rural and step are explored. Review the 2 proposals for the same competition.

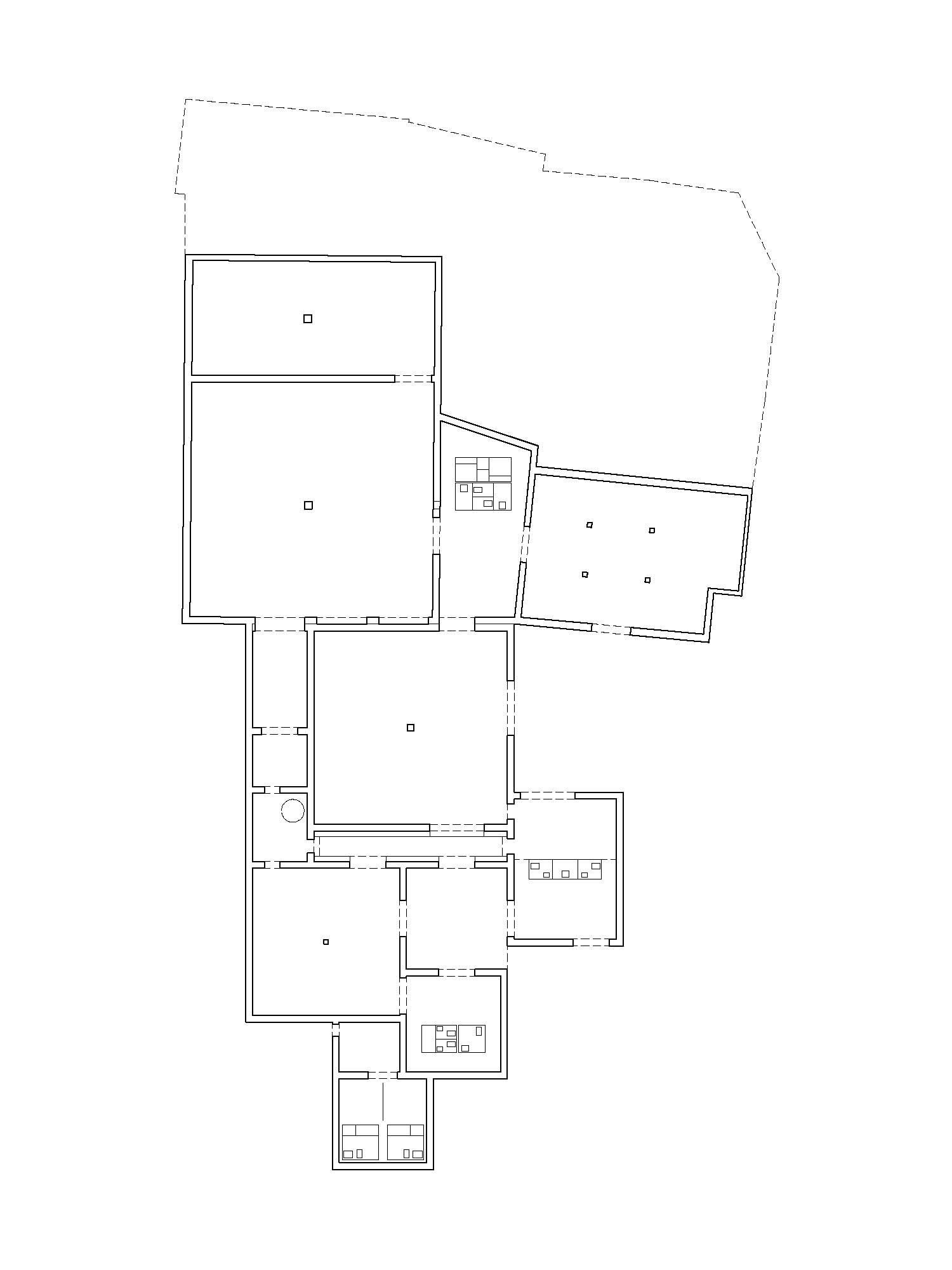
Un luogo di produzione diventa anche luogo di accoglienza e rappresentanza con una propria identità e riconoscibilità. I terrazzamenti, la topografia ridisegnata dall’uomo e il proprio rapporto con il paesaggio più vasto appartengono ad una sorta di memoria collettiva di un territorio. Il progetto ci parla di un luogo che esiste e che conosciamo senza aggiungere protagonisti: la collina, le vecchie case a ridosso delle vigne, la valle. Il sistema di terrazzamenti si articola in modo da accogliere inferiormente  le funzioni necessarie, mentre superiormente, grandi spazi vuoti si offrono come momenti per catturare il paesaggio. Il programma si sviluppa in una sequenza di ambienti con una spazialità chiara e propria che formano nell’insieme un sistema spaziale più ricco e complesso. La disposizione degli ambienti garantisce un’adeguata indipendenza delle varie funzioni, ma le aperture, sia verso l’esterno che verso l’interno, formano dei corridoi visivi che permettono contemporaneamente la visione di più spazi. Il perimetro esterno in continuità con l’esistente è rivestito in pietra, mentre all’interno le diverse materialità assumono il compito di scenografie di spazi diversi, ognuno dei quali possiede atmosfera, proporzioni e luce proprie.

0224-LBA-IT-2012 — Posted in 2013 — Explore more projects on commercial and winery — Climate: mediterranean and temperate — Coordinates: 45.908354, 12.061920 — Collaborator: Matteo Clerici, Filippo Bolognese — Photography: Marco Cappelletti — Views: 4.558