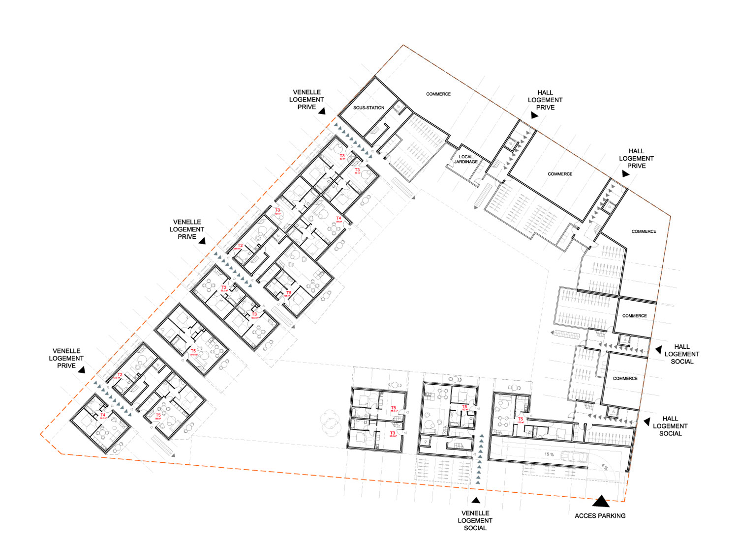
Cartoucherie Housing Block is a completed project by Manuelle Gautrand for Pragma Crédit Agricole Immobilier and Patrimoine Languedocienne designed in 2012 and completed in 2014. It is located in Toulouse France in an urban setting. Its scale is large with a surface of 12.200 sqm. Luxigon collaborated as visualizer. Concepts such as fragmentation and courtyard are explored.

Green housing block with 170 apartments ave retail on the ground floor.

0694-MGA-TLS.FR-2012.14 — Posted in 2012 — Explore more projects on housing and residential — Climate: continental and temperate — Coordinates: 43.603322, 1.406277 — Team: Manuelle Gautrand — Collaborator: Philippe Vigneu, Atmosphère, Gamba Acoustique, On, Tbc — Engineer: Atmosphère — Structural engineer: Ingedoc — Landscape: David Besson Girard — Views: 4.518