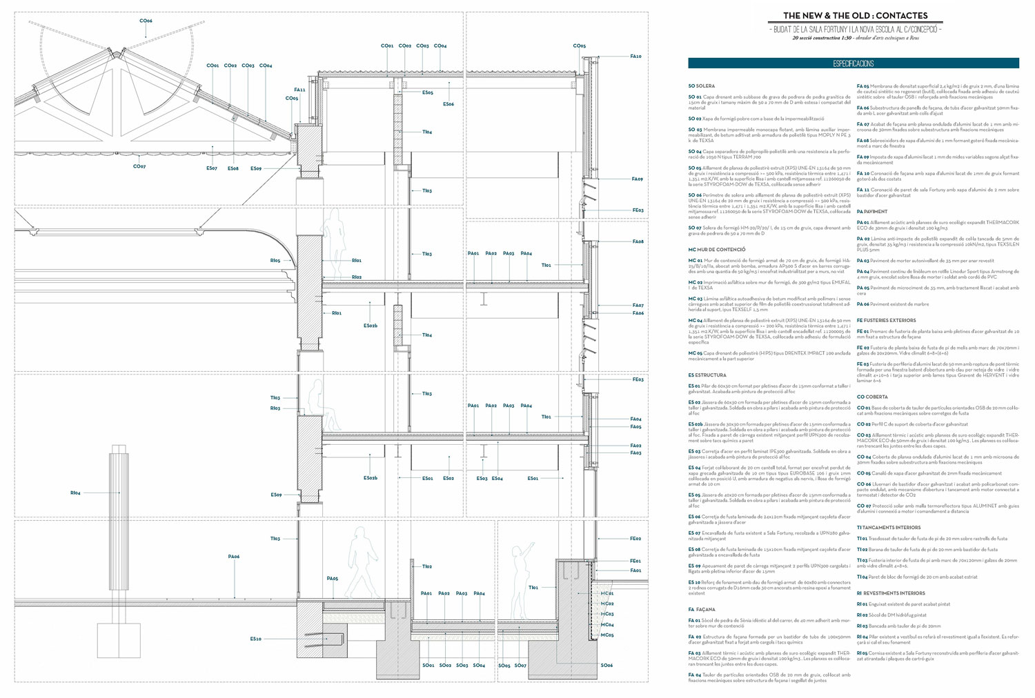
Center for the performing arts in Reus is an academic project by Júlia Nabona for ETSA Barcelona designed in 2014. It is located in Reus Spain in an old town setting. Its scale is medium with a surface of 3.700 sqm. Key materials are metal polycarbonate and wood. Play-Time collaborated as visualizer. Concepts such as refurbishment extension sloped roof plaza and gallery are explored.

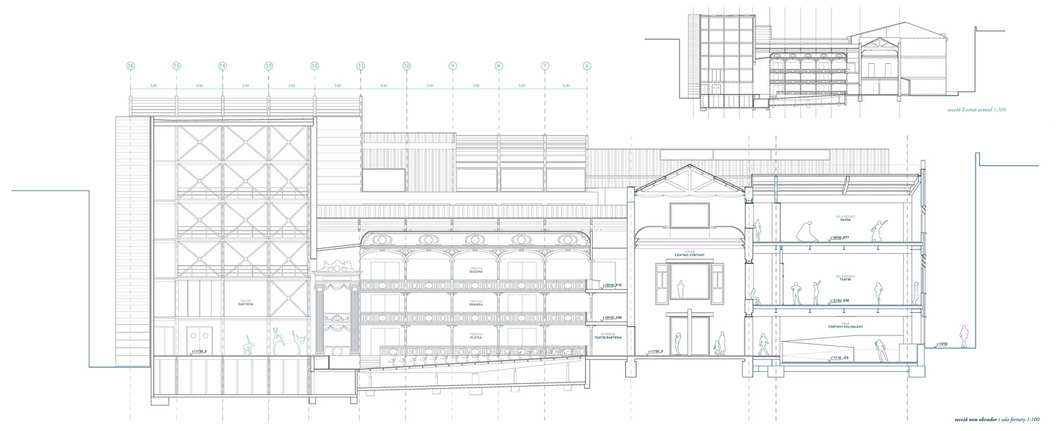
Reus, a city of 106.000 inhabitants in the south of Catalonia hosts one of the most potent performing arts network. The ‘Centre de Lectura'(an important athenaeum and performing arts school) and the Bartrina Theatre form a powerful cultural block in the center of the old city. This master thesis attempts to convert this complex into a new cultural and urban highlight through the rehabilitation and expansion of the existing facilities and redefining its relationship with the street and the Theatre Square. The city council master plan conceives a four storey volume for the new facilities in the northern part of the square, attached to the existing party wall. The project reverses the placement of this volume in the Theater square, deciding to occupy the southern part of it in order to originate a lower body to humanize the scale of the square and also to connect the existing dressing and changing rooms with the new circus rehearsal hall. The project features three main concepts: reorganize and optimize the cultural and educational agenda, create a new structure that comes from stretching the lines of the existing center structure, and the willing to control the radiation, light and ventilation of the new interior halls and the gallery facade to reduce the energetic demand in the common spaces.

A new passage merges the historical entrance of the center and the new one placed in the Theater Square, creating a visual and physical connection between the main street and the renovated square in the ground floor. The passage also links the two main restored halls of the theater and it is also the nexus for the entire public program: a new cafeteria, the information point, the box office for the theater and the new multi-functional space. The proposed structural steel frames and the sloped roofs contain the new theater and dance practice studios in the upper floors. The 4 meter wide gallery wraps the existing backstage theater building and the ‘Culture House’ party wall creating a new circulation space which allocates the stairs and ramps that join the different section of the existing buildings, and also generates a new representative glass facade in the Theatre Square. The intervention ends with the new volume between the ‘Culture House’ and a residential building in Concepció street. This northern facade has more inertia, its openings are rhythmic empathizing with the ‘Culture House’ composition and it is materialized in a wavy corrugated aluminum panel. The project’s identity aims to boost the relationship between the public space, the people and the Center for the performing arts, building a strong synergy and invigorating its social character.

1101-JNA-REU.ES-2014 — Posted in 2015 — Explore more projects on cultural cultural center and music school — Climate: temperate and mediterranean — Coordinates: 41.154074, 1.108813 — Views: 3.990