Centinela is a proposal by Felipe Grallert designed in 2007. It is located in Corral Chile in a seaside setting. Its scale is small with a surface of 100 sqm. Key material is wood. Concepts such as sloped roof and lightweight structure are explored.

La bahía de San Carlos, en las costas de Corral, ha sido geográficamente aislada por años, sus habitantes, pescadores por herencia, han sabido adaptarse a esta vida apropiándose del mar y la tierra. Los pescadores salen de sus casas, suben al bote y parten a la mar, las mujeres, recolectoras, caminan por las pendientes en busca de especies, la huerta funciona los 365 días del año, al igual que el mar. Las familias se componen por lo general de ambos padres, máximo dos hijos, los que al cumplir la edad suficiente, asumen responsabilidades laborales, en la pesca si son hombres, en la cosecha si son mujeres. La vivienda se lanza sobre el mar, avista el océano esperando el momento para que el pescador salga a cazar. Reposa en la pendiente espectante ante la salida del sol, cobija a la familia, se nutre de la tierra. La vivienda funciona como el centro de operaciones para toda la familia, es el punto de reunion al final del día. La cocina forma parte indispensable en los recintos, en ella se genera toda la vida alrededor de la casa, los dormitorios solo son usados durante la noche, tomando poca relevancia, no así el umbral, punto en el que el pescador se libra de las redes, de los olores, (baño exterior), además es el lugar donde las mujeres guardan sus colectas. Una gran despensa funciona como lugar de secado y almacenado. La vivienda es integral, en ella conjugan los oficios de la familia entera, ha sido construida por abuelos, hijos y nietos, es la manifestación de una cultura de carpintería, una herencia en el borde mar. Se entiende como la principal herramienta del pescador, multifuncional en un cien por ciento, sirviendo incluso, de referencia en el mar, es su cobijo, su amiga y compañera millas adentro.

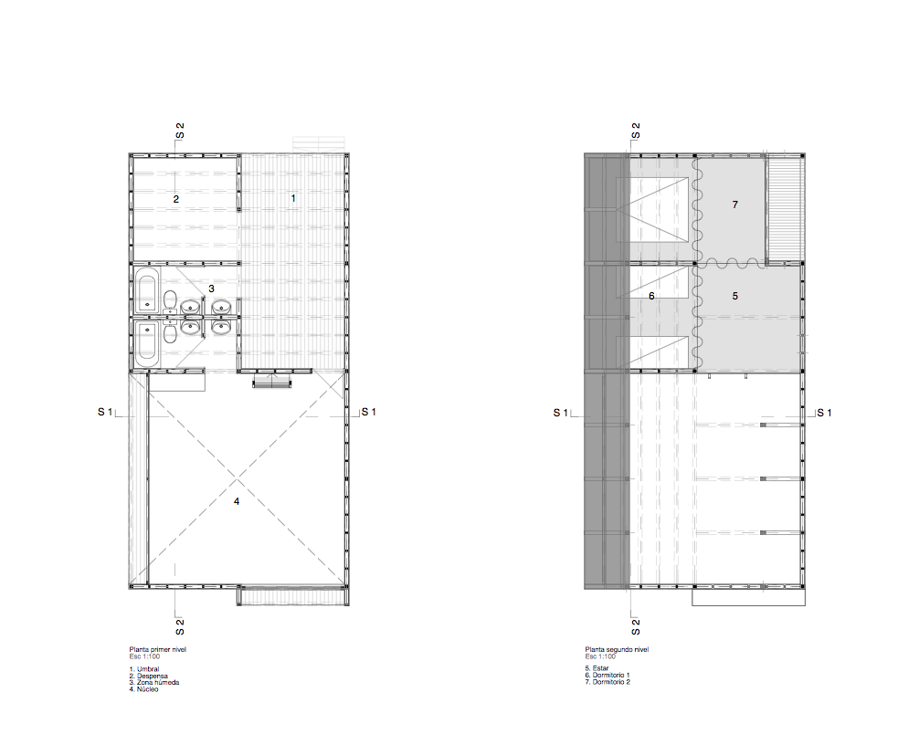
Los recintos han sido definidos según el tiempo de permanencia en ellos, mediante un módulo de 3x3m para organizar la planta y las fachadas haciéndolas calzar con una proporción universal. Este módulo de 3x3m servirá además de patrón para el diseño estructural y de fachada. Se entiende una primera etapa de «limpieza»,en la que el pescador se deshace de las redes, y purifica para ingresar a la vivienda, en su interior el espacio más importante es la cocina, siendo éste el punto de reunión de toda la familia. Las elevaciones son resultado del módulo de diseño de 3x3m de la planta, así, se genera un nuevo módulo esta vez tridimensional, 3x3x3m. Todas las fachadas han sido diseñadas mediante esta medida. Este encargo no posee materialidad, el objetivo es crear una vivienda proyectual, progresiva en la que el pescador pinte su casa del color apropiado para la navegación ya que es muy frecuente en las costas del sur que los pescadores usen sus casas y las de otros como puntos de referencia en el mar, así, las viviendas pueden adquirir diferentes colores o brillos dependiendo de lo que simbolicen. La fachada, además genera 3 puntos de vista hacia el mar, en el estar, en el comedor y cocina, y en la pieza principal, así, el pescador jamás se desliga de la vista hacia el horizonte. El objetivo es convertir la casa en una herramienta mas para el pescador, tal cual él la vive, tan imprescindible como la red, el bote, o los remos.

0677-GRA-CL-2007 — Posted in 2012 — Explore more projects on house and residential — Climate: oceanic / maritime and temperate — Views: 4.793