Centre scolaire à Bagnes is a proposal by 2:pm architectures and Loïc Cendrier for Canton of Valais and Commune de Bagnes designed in 2013. It is located in Bagnes Switzerland in an outskirt setting. Its scale is medium with a surface of 3.909 sqm an estimated budget of 7.818.000 € and a ratio of 2.000 €/sqm. Key materials are concrete and plaster. Concepts such as broken volume and modulation are explored. Review the 5 proposals for the same competition.

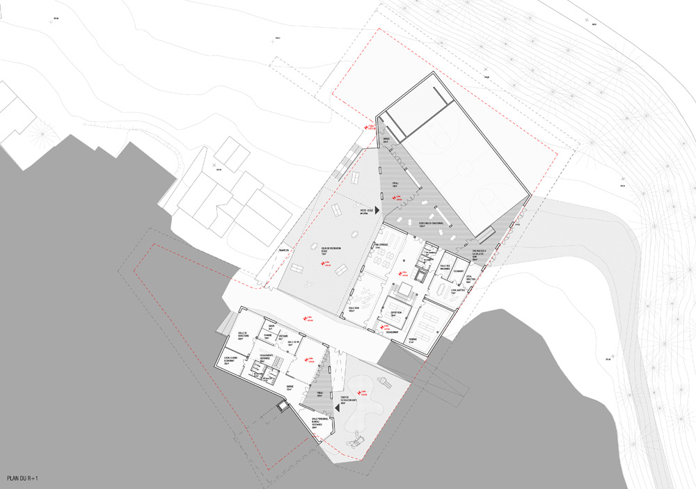
Les éléments du programme s’agencent par deux sur un socle actif. La première phase de construction ne démolit aucun bâtiment. La nouvelle école et le gymnase prennent place dans la partie basse du terrain et leur interstice accueille le foyer partagé ouvert sur le gymnase. En seconde phase la salle polyvalente est démolie pour laisser place à l’UAPE en socle surmonté de la crèche.

Articulation plein / vide

Les volumes bâtis s’agencent dans la pente en proposant une alternance de plein et de vide. A chaque élément du projet répond une cour ou un espace extérieur. L’ école existante, la crèche et l’arrêt de bus sont en relation autour d’un parvis public qui pourra accueillir des activités villageoises partagées. Il donne accès au congélateur collectif situé dans l’école existante. En continuité du parvis dans la pente s’ouvre à droite la cour intime de l’UAPE et en face la cour de l’école. Cette cour guide vers l’entrée et le foyer ouvert qui pourra préfigurer d’une réversibilité future de l’entrée selon les aménagements. En partie basse du terrain le gymnase et la scène s’ouvrent sur une cour aux usages variés : activités sportives extérieures, représentations théâtrales, jardins potagers…

Voisinée / ensoleillement

L’implantation proposée effectue une mise à distance des voisins afin d’ouvrir les vues, adoucir les co-visibilités tout en conservant les dessertes et les rythmes de chacun. Le décaissement de la voie de desserte est léger afin de ne pas trop accentuer la pente d’accès de la maison située à l’Est. Le terrain de la maison située à l’Ouest présentera un soutènement adouci par la présence de l’escalier d’accès à la cour basse. Les volumes s’agencent de manière à s’ouvrir au mieux à la course solaire et profiter d’un éclairage généreux.

Apprendre

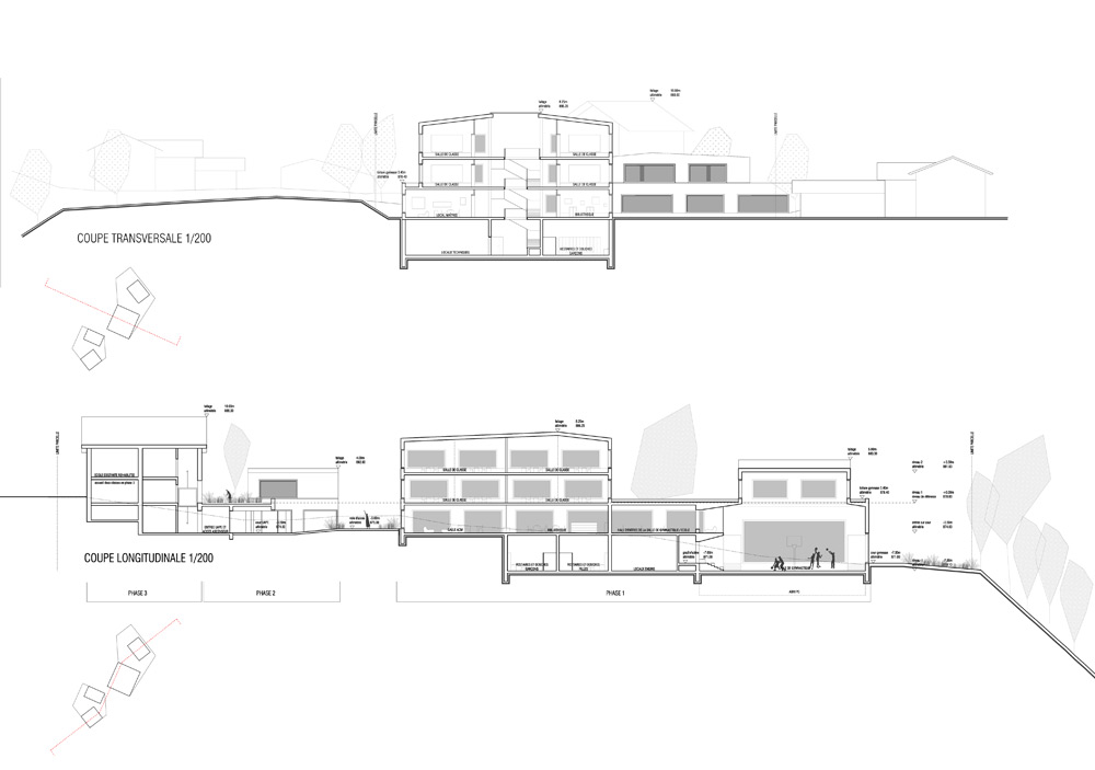
L’ école présente une trame constructive de 6m x 8m afin d’offrir des volumes de classe rectangulaires de 72 m² aisément redivisibles en deux salles de 36m². Chaque salle de classe possède trois baies sur des allèges pleines de 50cm. Cela permet de caractériser un «univers bas» en résonance avec les éléments de mobilier et les élèves. Les toitures possèdent des pentes permettant une résonance avec le paysage de la commune et apportant une volumétrie intérieure riche dans les salles de classes et la crèche.

Circuler

La toiture de l’ école est percée en son centre par un puit de jour qui éclaire zénitalement la circulation verticale. Cette circulation est bordée par deux couloirs qui s’étalent de façade à façade permettant l’éclairement mais également pour prévoir une division potentielle des salles de classes et leur accès.

Phasage

L’ école est conservée comme un patrimoine vivant de Versegères. Des activités communales comme le congélateur commun seront conservées. Ne disposant pas d’informations sur cette école nous envisageons de la réhabiliter et la rendre accessible au niveau de la cour basse par l’ajout d’un ascenceur. Elle accueillera les deux classes supplémentaires du programme en cas d’extension en phase 3.

Adaptation au sol naturel / transparence

L’ entrée de l’école accueillant réfectoire et salle d’activités villageoises s’ouvre en surplomb sur le gymnase. Cette transparence permet de donner à voir le bas du terrain depuis la cour. La cour devient le lieu duquel il est possible de profiter de l’extérieur, d’un extérieur couvert par le préau, d’une vue sur le gymnase et par extension sur la vallée. La scène prend place dans l’axe du terrain de sport et s’ouvre largement sur le paysage. L ’apport de lumière qui pourra être important en fin de journée sera contrôlé par des panneaux amovibles. Aux beaux jours la scène pourra s’ouvrir sur l’extérieur et la cour arrière. Cette possibilité est appuyée par le fait que la scène se situe au même niveau que la cour.

L’espace de l’ entrée est traversant, il propose un accès principal depuis la cour. Cet espace est envisagé comme réversible; il peut selon les décisions d’aménagements s’ouvrir à l’arrière afin de lui conférer une seconde entrée. Le gymnase propose des accès indépendants ce qui permet de proposer un fonctionnement événementiel indépendant. La rampe d’accès à la cour permet d’offrir des stationnements hors des périodes scolaires afin d’accueillir des activités villageoises au sein du foyer. Ce foyer pourra être à loisir meublé par des tables et chaises stockés dans l’école ou laissé libre afin de faciliter les déplacements des élèves au sein de l’école.

0500-2PM-CH-2013 — Posted in 2013 — Explore more projects on education and school — Climate: oceanic / maritime and temperate — Coordinates: 46.078216, 7.212817 — Views: 3.393