Centre scolaire à Bagnes is a proposal by Atelien Architecture for Canton of Valais and Commune de Bagnes designed in 2013. It is located in Bagnes Switzerland in an outskirt setting. Its scale is medium with a surface of 5.208 sqm. Key material is concrete. Review the 5 proposals for the same competition.

L’aire du projet, destinée à la construction d’un nouveau centre scolaire à versegères, est située au cœur du village, et interagit de façon directe avec la route de mauvoisin. On accède à la parcelle 10383 par une petite route qui divise le lot en deux zones distinctes : d’un côté, l’école existante avec sa cours de récréation ; de l’autre, un grand pré qui descend vers le torrent de la dranse Conscient de la complexité du projet, la parcelle et son cadre paysager ont été pris en compte: le projet architectural, une référence paysagère déterminante à l’intérieur d’un tissu traditionnel de petite échelle. Le projet a eu pour but de créer un édifice publique représentatif du paysage qui l’encadre. Une grande attention a été portée à la planification des phases de réalisations, pensées en plusieurs étapes:

– Une première phase, celle de la construction de l’école et de la salle de gymnastique. La route existante est comme l’accès principal au chantier, sans pour autant bouleverser le fonctionnement de l’école.
– Une deuxième phase, celle de la démolition de l’école existante, pendant les vacances scolaires, pour laisser la place à la nouvelle structure d’accueil et à l’aménagement des espaces extérieurs.

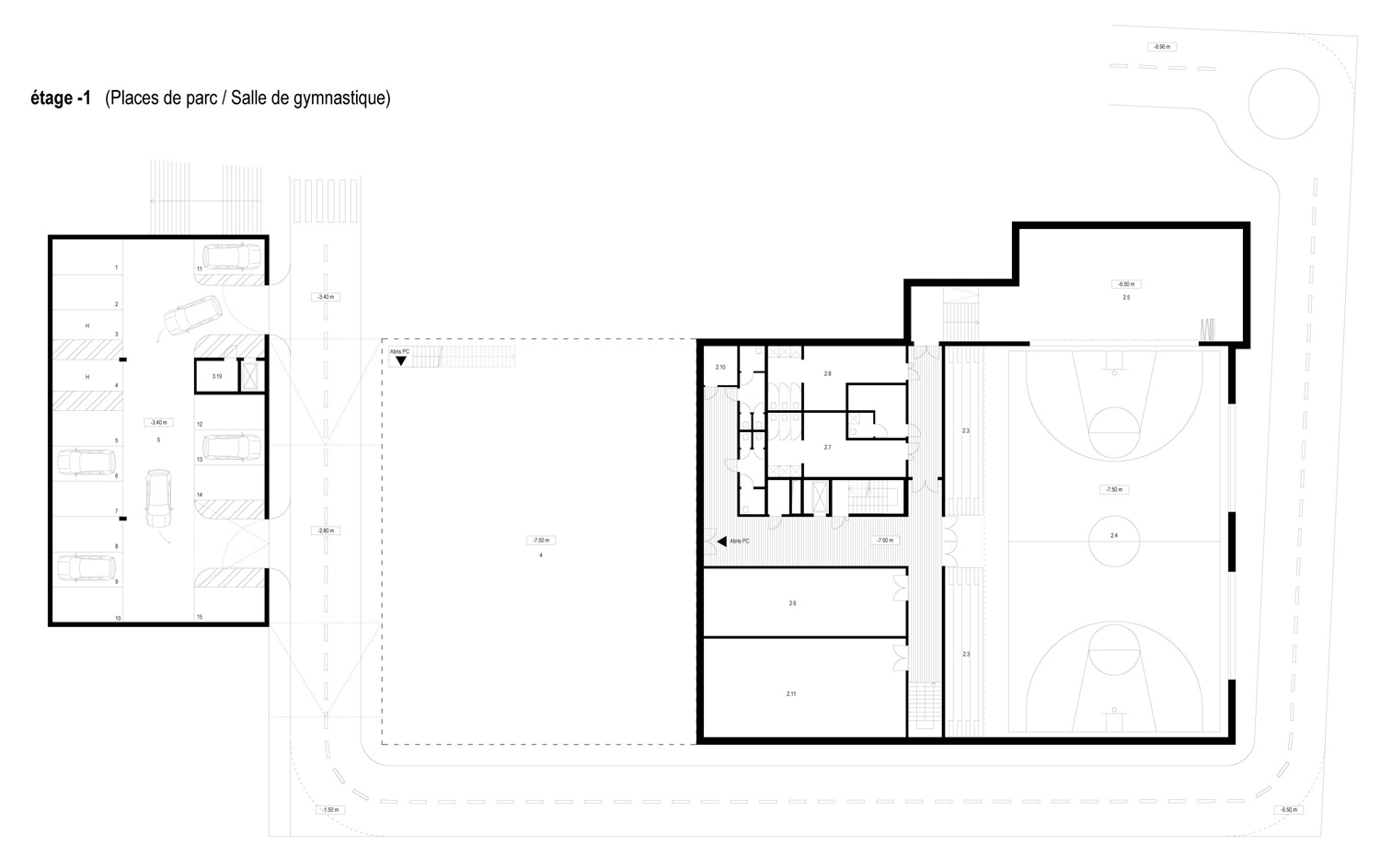
Le plan de masse est clair et bien définit : la mise en place d’une voie de circulation à l’intérieur et à l’extérieur du site garantit l’accès à toutes les parcelles limitrophes; la création de deux arrêts de bus le long de la route de mauvoisin et de six places de stationnement temporaire. D’un point de vue morphologique, le projet cherche à s’insérer dans le paysage existant en s’adaptant à les aux caractéristiques du terrain pour en diminuer l’impact visuel au sein du village. La cours de récréation (400 m²), peut être utilisée comme un lieu de stationnement pour les activités extra-scolaires. Depuis une entrée couverte par un grand haut-vent on accède aux salles et aux différentes fonctions de l’école; pendant les heures d’activités extra-scolaires, on peut également accéder à la salle de sport et aux vestiaires situés au sous-sol. Les différentes fonctions sont clairement définies et reconnaissables du point de vue de la répartition des volumes. Ainsi que par le choix des matériaux utilisés:

– Au rez-de-chaussée, on trouve toutes les lieux communs (salle de sport, vestiaires, scène du théâtre, hall) où l’utilisation du bois a été privilégiée;
– Aux étages supérieurs, accueillant les salles de classe, le béton brut et les grandes fenêtres qui soulignent et mettent en valeur les façades par un apport important de lumière.

La distribution de ces étages a été pensée pour éliminer de les longs couloirs, tout en privilégiant l’interaction entre l’intérieur et l’extérieur du bâtiment par de grandes baies vitrées. La salle de sport est éclairée par de grandes ouvertures orientées au nord de façon à garantir une lumière constante mais non directe. Pour la structure en couverture un caisson en béton avait été envisagé pour anticiper un futur agrandissement de l’école. dans l’édifice destiné à la structure d’accueil : le rez-de-chaussée regroupe le réfectoire et des salles d’activités reliés à un jardin couvert ; au premier étage, une grande terrasse protégée de la route et dédiée aux jeux, s’ouvre sur la montagne. Du point de vue énergétique, les bâtiments utilisent différentes technologies exigées par le label minergie: le système de chauffage réutilise et brûle le bois provenant des menuiseries alentours. Un système de sondes géothermiques puise son énergie et sa chaleur en profondeur pour tempérer les espaces internes. L’eau de pluie est récupérée et stockée pour être utiliser par le système d’irrigation et des eaux usées. Un système d’aération doté d’un procédé de récupération de la chaleur permettant de satisfaire les exigences relatives à l’aération contrôlée.

0263-ATE-CH-2013 — Posted in 2014 — Explore more projects on education and school — Climate: oceanic / maritime and temperate — Coordinates: 46.078216, 7.212817 — Collaborator: Marco Masetti, Alberto Tomasini — Model maker: Orizio Modelli — Views: 4.240