Centro de Arte Contemporáneo is a proposal by Blancafort-Reus and East Arquitectes for Ajuntament de Girona designed in 2010. It is located in Girona Spain in an urban setting. Its scale is medium. Key materials are concrete and metal. Concepts such as void transparency and flexibility are explored. Review the 2 proposals for the same competition.

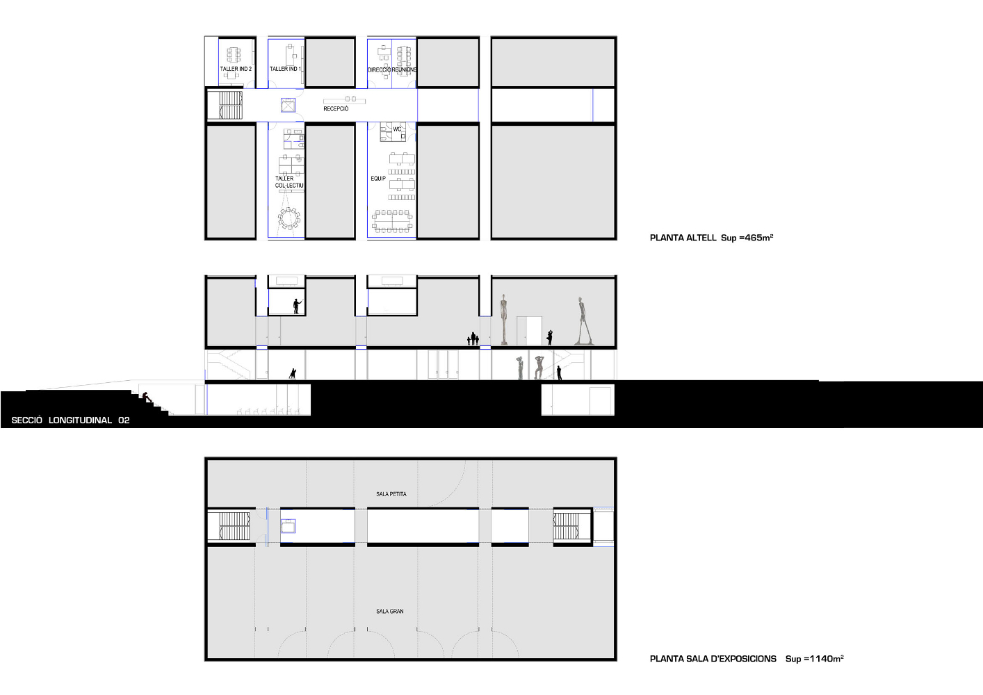
Una buena manera de entender el proyecto sería a través de la prolongación de la plaza como un espacio público hacia el interior del edificio, vaciando la planta baja de programa para generar un espacio cubierto, recogido, soporte de actividades vinculadas al edificio pero sin pertenecer exclusivamente a este. El encadenamiento de sensaciones que va experimentando el usuario mientras recorre el edificio, sensación de recogimiento, de quietud, de paraguas… El centro como espacio de concentración , de reflexión , de silencio , la sensación de acogida y de protección … se plantea como un edificio que cubre un espacio público, capaz de acoger tanto actividades vinculadas al centro como actividades de orden urbano.

Así, cuando llegamos al centro, accedemos a través de un porche que contrae el espacio, que volveríamos a dilatar cuando se ha sobrepasado el límite del espacio público. Llegados a este punto el usuario podrá ver, en toda la dimensión de la planta, el encadenamiento de espacios, tanto en planta como en sección, a través de una grieta que atraviesa el espacio de las salas y filtra la iluminación hasta la planta de acceso. Las salas, en cambio, se plantean como cajas cerradas, herméticas, suspendidas sobre la planta diáfana que concentra la actividad más accesible del centro. Estas salas pueden recogerse o expandirse según las necesidades temporales de las exposiciones, decidiendo en cada momento el número. Esto es posible por la incorporación de unos cierres móviles fijados a la estructura del edificio que bajan verticalmente garantizando así el correcto funcionamiento de las salas.

0703-BRE-GRO.ES-2010 — Posted in 2013 — Explore more projects on cultural and cultural center — Climate: temperate and mediterranean — Team: Ricard Turon, Jordi Sala, Jaume Blancafort, Patricia Reus — Views: 3.618