Centro Goya Zaragoza is a thrid prize proposal by Baile Menduiña and Arias Garrido for Gobierno de Aragón designed in 2024. It is located in Zaragoza Spain in an old town setting. Its scale is medium with a surface of 2.800 sqm an estimated budget of 4.500.000 € and a ratio of 1.607 €/sqm. Key materials are stone and plaster. Concepts such as refurbishment and section are explored.

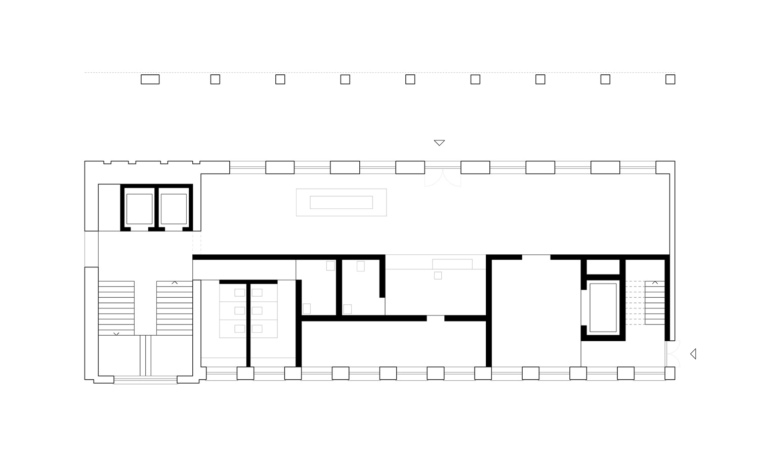
El proyecto de rehabilitación del edificio de los antiguos juzgados de Zaragoza, situado en la Plaza del Pilar, transforma esta estructura en el Centro Goya, un espacio cultural dedicado a la exposición, conservación y divulgación de la obra de Francisco de Goya. La intervención mantiene la estructura original del edificio y reorganiza sus espacios para adaptarlos a su nueva función museográfica y administrativa. El programa se distribuye en varios niveles. En el sótano se encuentran las áreas técnicas y de almacenamiento necesarias para el funcionamiento del edificio. La planta baja actúa como punto de acceso principal, con un amplio vestíbulo que conecta la plaza con el interior del edificio, una tienda y zonas de atención al público. Las plantas superiores se destinan a áreas de exposición permanente y temporal. La organización espacial permite recorridos continuos y claros, facilitando la circulación de los visitantes entre las distintas salas. Se han creado dobles alturas en puntos específicos para albergar piezas de gran formato y ofrecer vistas estratégicas tanto hacia la Plaza del Pilar como entre las plantas.
La última planta se destina a una sala multifuncional, concebida como un espacio abierto y flexible para diversas actividades, desde conferencias hasta exposiciones temporales. Las circulaciones públicas y privadas están claramente diferenciadas, permitiendo un uso eficiente y autónomo de las áreas de administración y las zonas expositivas. El diseño busca equilibrar la funcionalidad requerida para un espacio cultural contemporáneo con la preservación del carácter arquitectónico original del edificio, integrando nuevas conexiones visuales y espaciales que refuercen su vínculo con el entorno urbano de la Plaza del Pilar.

0595-BME-ZGZ.ES-2024 — Posted in 2024 — Explore more projects on cultural and museum — Climate: continental and temperate — Coordinates: 41.656431, -0.879899 — Team: Rodrigo Baile, Arturo Menduiña, Javier Arias, Susana Garrido, Diego Senovilla — Views: 2.929