Rock & Sponge is a proposal by KOSMOS Architects for Municipality of Visp designed in 2024. It is located in Visp Switzerland in a riverside setting. Its scale is medium with a surface of 5.048 sqm. Key materials are wood metal and vegetal. Max-Viz Studio collaborated as visualizer. Concepts such as terrace folded facade and grid are explored.

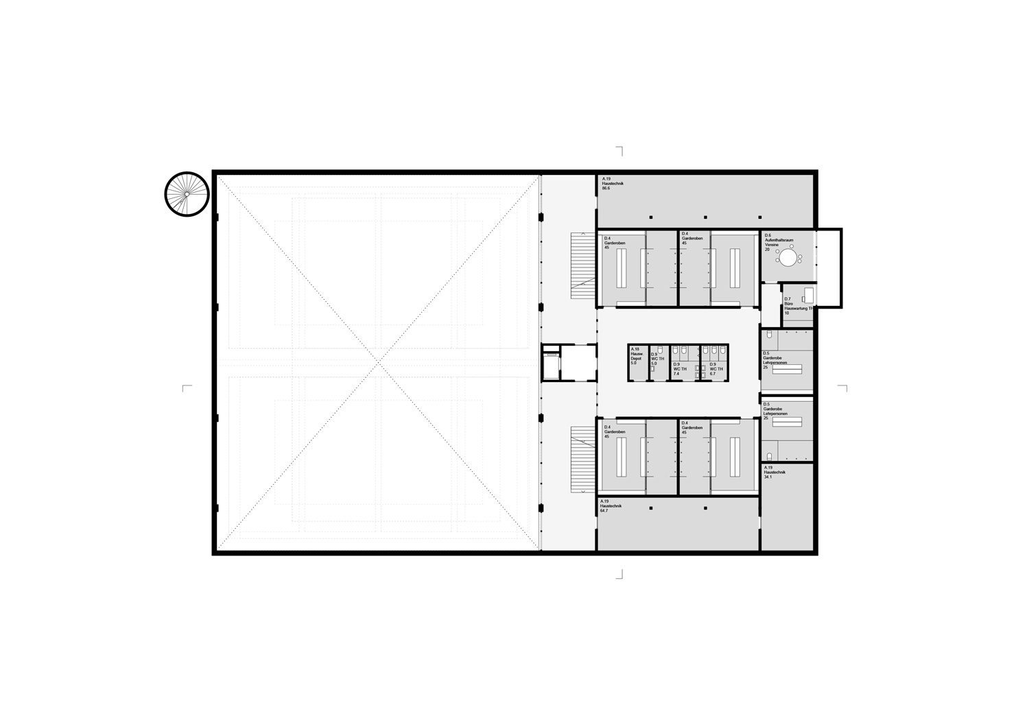
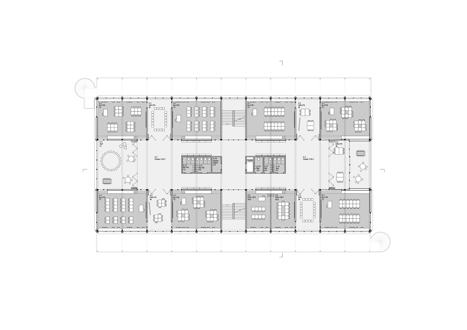
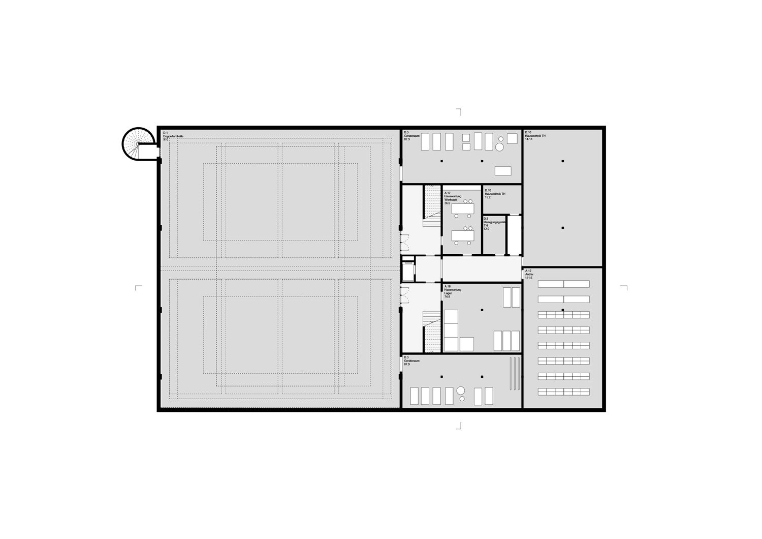
The project is a school with two faces: an urban, mineral front facing the existing brutalist 1970-s schools and a green nature front facing the green space. The park, which we call the “New Biotope”, is a public green space that is a place for play, a green sponge for water infiltration, a place of biodiversity and a noise buffer between the school building and the adjecent residential buildings. The generous balconies are used as a transitional space between the park and the building and serve as elevated space for students’ gardening activities. The project provides a compact school building with minimal footprint adjacent to the existing school complex, maximizing open space for the development of a new park, a new biotope, and reuses the materials of the existing buildings on the site.

0586-KSM-CH-2024 — Posted in 2024 — Explore more projects on education and school — Climate: humid subtropical and temperate — Coordinates: 46.295823, 7.877208 — Team: Leonid Slonimsky, Artem Kitaev, Dmitry Prikhodko, Natasha Krymskaya, Boris Nemtsev — Structural engineer: Giotto Messi — Landscape: Fanny Chriztinaz — Views: 3.111