Complejo municipal de piscinas de Marinha Grande is a proposal by João Álvaro Rocha for Municipality of Marinha Grande designed in 2008. It is located in Marinha Grande Portugal in an urban setting. Its scale is medium with a surface of 9.626 sqm an estimated budget of 4.190.000 € and a ratio of 435 €/sqm. Key material is concrete. Concepts such as ribs and water are explored. Review the 2 proposals for the same competition.

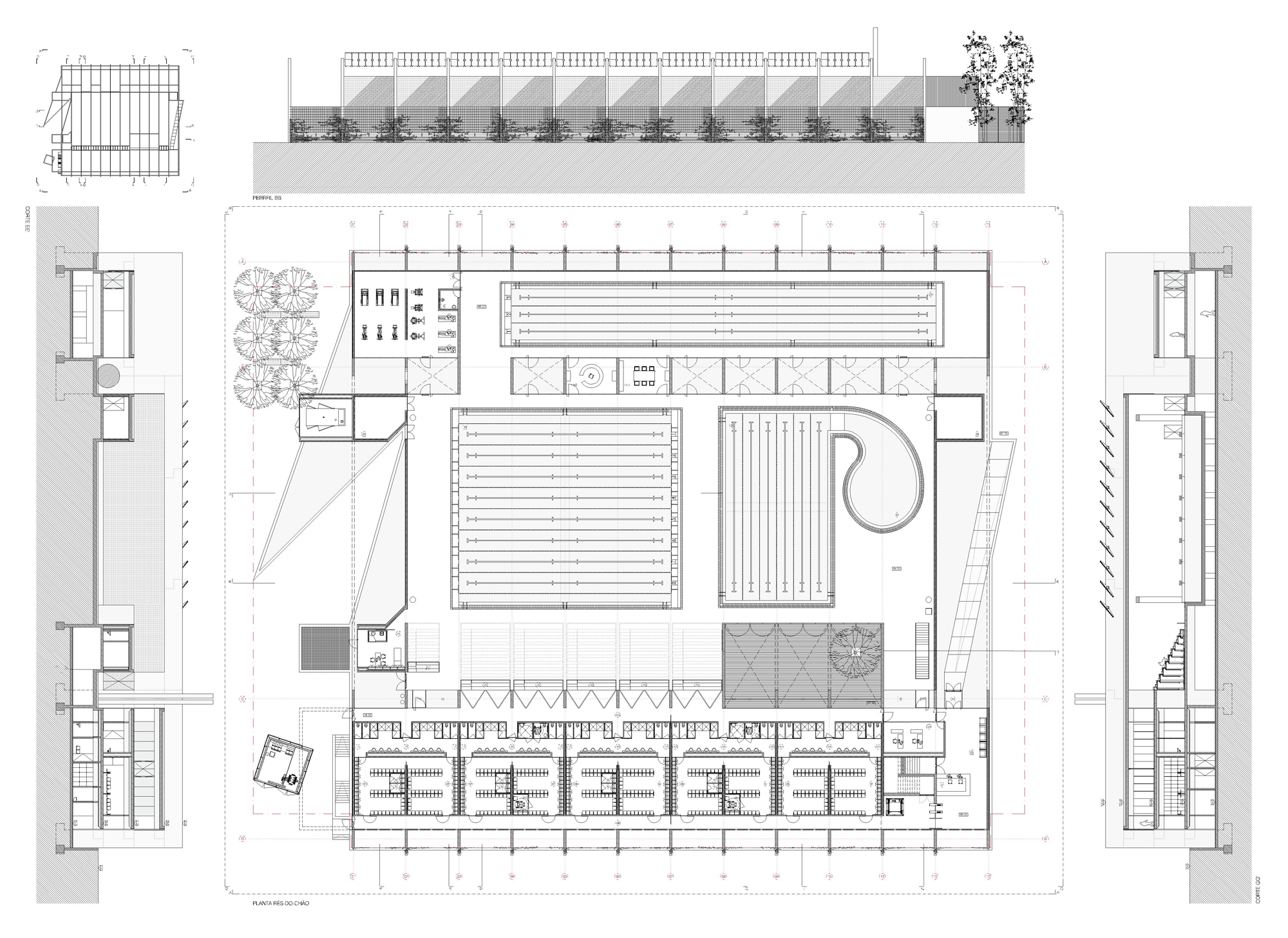
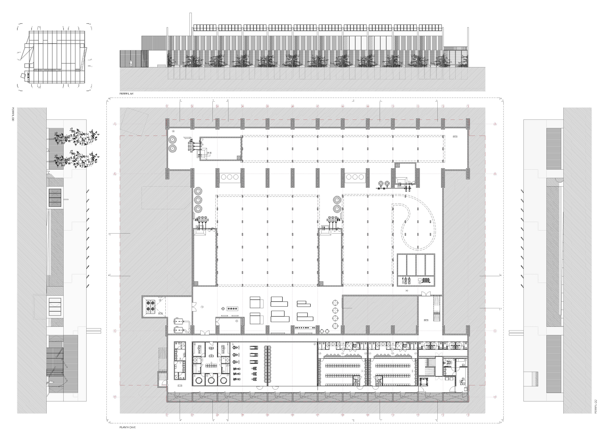
El complejo municipal de piscinas se integra en un conjunto deportivo programado en el ámbito del Estudio de Detalle de la Zona Deportiva de la Marina Grande que se encuentra en fase de ejecución, estando ya realizadas algunas de las infraestructuras previstas. Se respeta íntegramente el polígono previsto en aquel Estudio para la implantación de las construcciones, así como la definición de las infraestructuras. La interconexión entre la solución estructural y el programa son en este proyecto la clave para su lectura. Las soluciones estructurales encontradas provienen de las necesidades especiales de este tipo de programas (existencia de grandes luces, condiciones de iluminación y ventilación especifica, niveles de comportamiento térmico) e inversamente, la ordenación programática encuentra lógicas de articulación que sobrevienen de las opciones estructurales y constructivas. La solución estructural encontrada, rigurosamente modulada, permite la utilización de la prefabricación, y una posible división por fases de la obra, con las ventajas económicas provenientes de tal opción constructiva.

El edificio es concebido como un gran contenedor, encintado por la estructura, en la cual pilares y vigas se funden, en un único elemento, constituyendo un todo indivisible de grandes dimensiones. Son como grandes “costillas” que crean una “caja” que sirve para acoger los “órganos” de los que se compone el programa. Es la multiplicación de estas piezas la que, además de generar el propio edificio, define también la relación de sus espacios interiores con el exterior, en una permeabilidad recíproca que se pretende que sea disciplinada y no inmediata. La repetición de un mismo elemento constructivo permitirá la introducción de discretas variaciones que posibilitan el establecimiento de una complicidad en su articulación. La unidad del todo podrá entonces existir a partir de elementos aislados, como imagen prevaleciente del conjunto. La volumetría, independientemente de su mayor o menor diversidad, tendrá en la repetición del elemento arquitectónico, estructuralmente presente, su punto de convergencia, pero también el fundamento de su diferencia y también la garantía de su particularidad.

El programa “encaja” en la estructura sirviéndose de ella como línea orientadora de su escritura. Las funciones son distribuidas en el espacio en sentido opuesto al de la estructura, generando, en los planos definidos por la variación volumétrica, superficies que establecen la conexión entre interior y exterior, concretadas a través de patios o de aberturas que permiten la entrada de luz. Estas aberturas son estratégicamente colocadas para permitir la entrada de luz de una forma controlada y también así garantizar la necesaria privacidad en su relación con el exterior. Esta relación se hace de un modo sobrio. Las exigencias del programa principal, piscinas, aconsejan algún recato ante la exposición directa de la actividad interna hacia el exterior. La conjugación de estos dos aspectos llevó a que el edificio sea cerrado al exterior en su periferia y enmarcado por elementos, (estanque de agua, láminas / pilares o fosos), que lo “protejan” en su relación con el exterior. Interiormente, vacíos localizados entre las áreas de servicios y la plataforma principal de las piscinas y entre ésta y la piscina de entrenamiento de competición, descomprimen el volumen y el espacio, permitiendo la iluminación y las transparencias que, siendo agradables al uso, ordenan funcionalmente los espacios. La condición de las superficies será la de una especie de “filtro”, más o menos fluido conforme la luz que la atraviesa y que proporcionará una “atmósfera” cuya intensidad y sentido irá variando a lo largo del día.

0366-JAR-PT-2008 — Posted in 2013 — Explore more projects on pool and sport — Climate: temperate and mediterranean — Coordinates: 39.740311, -8.933213 — Collaborator: Armando Viana, Hugo Natário, Miguel Monteiro, Paulo Maia, Tiago Carvalho, Carlos Lobão — Engineer: Manuel Pedro Melo, Proafa – Serviços de Engenharia S.A. — Landscape: Maria João Trigo — Photography: Luís Ferreira Alves — Views: 3.897