Neubau Museum der Bayerischen Geschichte is a proposal by Reuter Raeber for Bavarian History Museum Regensburg designed in 2013. It is located in Regensburg Germany in an old town and riverside setting. Its scale is medium. Key materials are concrete and wood. The concept of broken volume is explored. Review the 3 proposals for the same competition.

Das neue Museum der Bayerischen Geschichte (MdBG) ist an einem bedeutenden Ort in Mitten der Stadt Regensburg und an der Donau geplant. Dabei präsentiert sich der neue Museumsbau selbstbewusst und komplettiert das noch unvollständige Stadtfragment,welches von Osten herreicht und am Donaumarkt endet.

Der neue Baukörper besetzt die Parzelle beinahe vollständig. Eindeutig zeigt er seine Zugehörigkeit zu dem bestehenden Quartier und nimmt sich dort zurück, wo dies erwartet und gefordertwird. Das neue Museum ist kein losgelöster Solitär, sondern die konsequente Weiterführung der bestehenden Substanz. Deren Körnung wird respektiert und die Grenzen definiert. Das Museum schafft durch seine einmalige Präsenz und hinsichtlich dessen Nutzung und dessen Ausdruck eine neue Identität für den gewählten Ort. Ein neuer Stadtkörper entsteht, ein neuer Maßstab wird eingeführt. Das Museum legt sich keine neue Identität zu, vielmehr profiliert es diese neu. Das gewählte Stadtfragment wird um ein zeitgenössisches, offenes Ausstellungsgebäude erweitert und vervollständigt.

Öffentlicher Raum – Figur und Grund

Die Arbeitsmethode besteht darin, den Baukörper der Stadt als Masse zu verstehen, aus welcher, in Anlehnung an den „Nolli-Plan (von Giambattista Nolli)“, Leerräume ausgeschnitten werden. Die sich daraus ergebende Figur-Grund-Beziehung zwischen Baumasse und Raumkörper führt zu einem Gefüge von Bauten und Volumen, die in ihrer Wechselwirkung Urbanität schaffen. Während diese zu einem Guss verschmelzen, sind sie gleichwohl darauf ausgerichtet, Vielfalt zu ermöglichen.

Der Aussenraum ist als Sequenz unterschiedlicher Plätze, differenzierter Strassenabschnitte, und einem zentralen Innenhof konzipiert. Die geschaffenen Aussenräume vermitteln eine Reihe sich unterscheidender Atmosphären. Zum Einen den geschützten Hof, zum Anderen eine sinnige Platzabfolge im Westen zwischen dem Hunnenplatz und St. Georgenplatz bis hin zum Brückenkopf der Eisernen Brücke. Als dritte Komponente öffentlichen Raums gilt die grosszügige Promenade entlang der Donau. Der Raum der Promenade an der Donau bildet das primäre städtebauliche Rückgrat des Projekts, eine fussgängerfreundliche Wegverbindung, die an die bestehende Promenade und die Schiffsanlegestelleanknüpft. Mit den öffentlichen Aussenräumen wird stufenweise, vom grossen Massstab des Kolpinghauses bis zur kleinteiligen Struktur der Nachbarschaft, so auch der Römermauer, ein Beziehungsnetz geschaffen, das zur Qualität des Stadtviertels beiträgt und den verschiedenen Ansprüchen der Nutzer gerecht wird.

Organisation

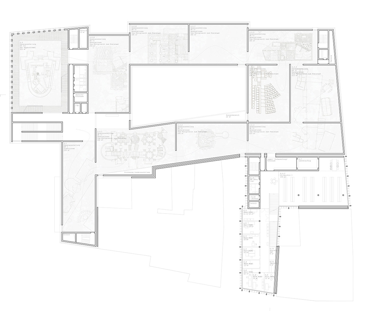
Nutzungsverteilung und Bespielung

Der Museums Haupteingang liegt an der Donaupromenade nahe der Eisernen Brücke, mit besterAnbindung zur Stadt und Schiffsanlegestelle. Zugleich an der bedeutendenDonaufassade des Neubaus. Der Besucher gelangt nach betreten des Museums sogleich in ein grosszügiges Foyer. Dieses steht im spannungsvollen Verhältnis von Marktplatz, Hof und Donau und verweist so auf seine Wichtigkeit.

An das Foyer angegliedert ist der Veranstaltungssaal, welcher den prominenten Gebäudekopf besetzt,der Museumsshop, das Restaurant und die Sonderausstellung. Diese führt um den zentralen Hof und endet mit dem grossen Sonderausstellungsraum der auch für Veranstaltungen genutzt wird. Dieser erhält einen zusätzlichen Eingang, ebenfalls an der Donaupromenade gelegen. In der Folge ist das Haus unterschiedlich bespielbar: Im Normalbetrieb über den Haupteingang, bei grossen Veranstaltungen mit direktem Eingang, Ticket, Info und Restaurant im Erdgeschoss.

Der Veranstaltungsraum kann dank diesem Zugang als Erweiterung des öffentlichen Raumes verstanden werden. Es ist denkbar Ausstellungen und Veranstaltungen bis auf die Donaupromenade zu ziehen, um den Platz vor dem Museum zusätzlich zu aktivieren. Ebenfalls kann die Fassade zum Hof grosszügig geöffnet werden, der geschützte Aussenraum wird vom Museum und von Veranstaltungen genutzt und bespielt. Demnachsind alle öffentlichen genutzten Räume mit einer maximalen Nutzungsflexibilität im Erdgeschoss angesiedelt, jeweils mit Bezug zu den unterschiedlichen Aussenräumen.

Das Museum – eine spannungsvolle Verkettung

Der Museumsrundgang ist über die zentrale Treppenanlage vom Foyer erschlossen und erstreckt sich über das gesamte Obergeschoss. Die Abfolge an Museumsräumen über die verschiedenen Generationen entsteht als Rundgang um den Innenhof und lässt eine nahtlose Sequenz der Geschichte entstehen.Das Prinzip des Durchschreitens und ein Ort des ständigen Wandels entstehen.Die Räume sind in Ihrer Proportionierung gleichartig neutral, rechteckig und damit flexibel nutzbar.

Die Raumhöhe hingegen ist unterschiedlich und generiert somit verschiedene Dimensionen für die unterschiedlichen Nutzungen der Räume.Die Räume sind sachlich, dennochweder charakterlos, noch geschwätzig, sie verbeugen sich weder vor den Ausstellungsgegenständen noch drängen sie sich als Architektur in den Vordergrund. Sie weisen eine subtile und gerichtete Tragkonstruktion auf, in deren Ebene die Belichtungintegriert ist, und haben an jeweils ausgewählter Stelle spezifische Aussenraumbezüge.Die Wände sind weiss und der Boden aus feinkörnigem Terrazzomitlokaler Steinmischung.

0368-RRR-DE-2013 — Posted in 2013 — Explore more projects on cultural and museum — Climate: continental and temperate — Coordinates: 49.020168, 12.102234 — Collaborator: Christoph Estrada Reichen — Engineer: Gruneko Schweiz AG — Structural engineer: Gruner AG — Landscape: Westpol Landschaftsarchitektur — Views: 3.737