Disseny Hub Barcelona is a completed project by MBM Arquitectes for Disseny Hub Barcelona designed in 2001 and completed in 2013. It is located in Barcelona Spain in an urban setting. Its scale is large with a surface of 30.000 sqm an estimated budget of 100.000.000 € and a ratio of 3.333 €/sqm. Key materials are concrete and metal. The concept of cantilever is explored.

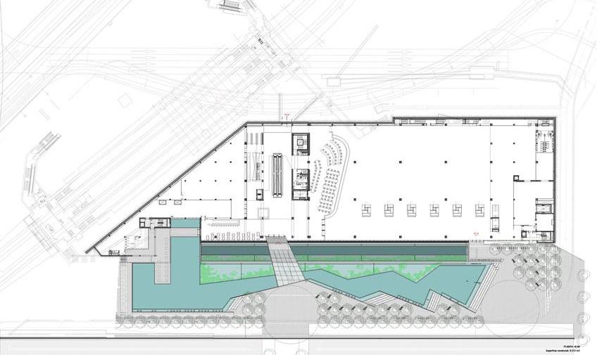
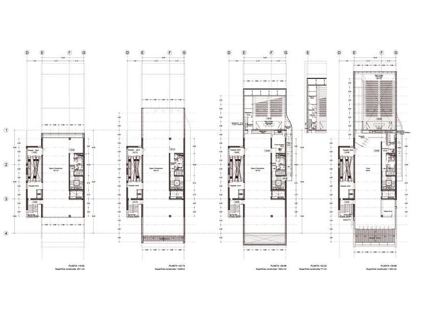
Sobre el scalextric de la plaza de las Glòries ha surgido el andamio para construir la visera del Disseny Hub Barcelona, el museo del diseño proyectado por Oriol Bohigas, también conocido por su forma como «la grapadora». Un edificio de 30.000 metros cuadrados que agrupará el Museo del las Artes Decorativas, el Museo Textil y de Indumentaria y el Gabinete de las Artes Gráficas, y que se convertirá en un punto de referencia en la escena del diseño. Situado junto a la Torre Agbar, el DHUB aportará una nueva imagen a la plaza, como cabecera del barrio tecnológico 22@. Las futuras actividades del museo se articularán en torno a un gran vestíbulo, concebido como espacio de circulación para los peatones desde la plaza superior al barrio del Poblenou, y que es además el final de la calle Ávila. En la parte subterránea, que constituye la mayor parte de la superficie del edificio, se ubicarán, en dos plantas y un entresuelo, instalaciones como la sala principal de exposiciones (3.000 metros cuadrados), las salas de reserva y gestión de las colecciones, las oficinas centrales, la biblioteca pública del Clot, el centro de documentación, las salas de estudio y educativas y el bar, el restaurante y la tienda. El módulo más elevado, que tiene forma de paralelepípedo cortado al sesgo, ocupa, según los arquitectos, el espacio mínimo en planta para no reducir el espacio público a nivel de calle; y para disponer de la edificabilidad prevista recurre a un voladizo sobre las vías de circulación que circundan la plaza de las Glorias. En esta parte superior se situarán las exposiciones temporales de larga y corta duración, una sala de actos y un gran auditorio con capacidad para 320 personas.

0522-MBM-BCN.ES-2001.13 — Posted in 2012 — Explore more projects on cultural and museum — Climate: mediterranean and temperate — Coordinates: 41.402551, 2.187994 — Team: Martorell-Bohigas-Mackay — Photography: Iñigo Bujedo Aguirre — Views: 3.957