Distretto socio-sanitario Bolzano/Oltrisarco-Aslago is an honour mention proposal by GSMM Architetti for Provincia autonoma di Bolzano designed in 2016. It is located in Bolzano Italy in an urban setting. Its scale is medium. Key materials are concrete and glass. Concepts such as extension l shape and ribs are explored. Review the 3 proposals for the same competition.

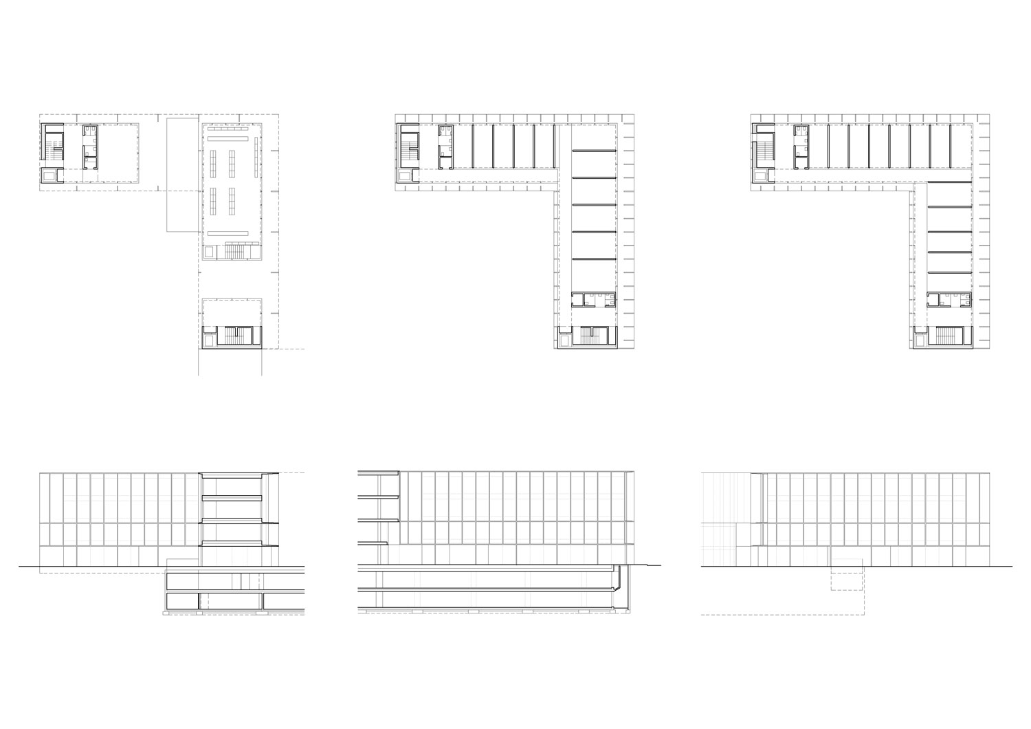
L’edificio per il nuovo distretto socio-sanitario completa la piazza e l’insieme degl’edifici pubblici che definiscono il centro del quartiere di Oltrisarco a Bolzano. L’edificio dialoga con gli edifici circostanti, sottolineando alcuni elementi importanti per la configurazione dell’insieme urbano, quali il portico verso la piazza, l’allineamento verso la strada e l’altezza pari a quella degl’edifici esistenti, determinano lo spazio e la conclusione della piazza Nikoletti. L’idea del progetto si fonda sostanzialmente sulla unitarietà di tutti gli spazi e allo stesso tempo sulla diversificazione delle atmosfere proposte attraverso la variazione della profondità dei profili di facciata e dei suoi affacci. Il programma funzionale e il sistema costruttivo sono organizzati secondo una metrica modulare chiara e semplice, che permette di strutturare in modo efficiente e flessibile il funzionamento delle attività e dei servizi. Le facciate vengono trattate con la stessa gerarchia, attraverso un sistema di frangisole verticali che creano ombreggiamento in tutti gli spazi dell’edificio. La variazione di profondità dei profili di facciata verticali, determina un senso di libertà nel rigore generale della proposta.

2169-GSM-BZO.IT-2016 — Posted in 2018 — Explore more projects on health center and healthcare — Climate: humid subtropical and temperate — Coordinates: 46.485807, 11.345484 — Team: Giulia Morabito, Michele Zambetti — Consultant: ZH srl — Structural engineer: B&C Associati — Views: 5.569