Ecole Copet Vevey is a proposal by Charles Pictet designed in 2012. It is located in Vevey Switzerland in an urban setting. Its scale is medium. Key materials are brick and concrete. Concepts such as atrium and broken volume are explored. Review the 2 proposals for the same competition.

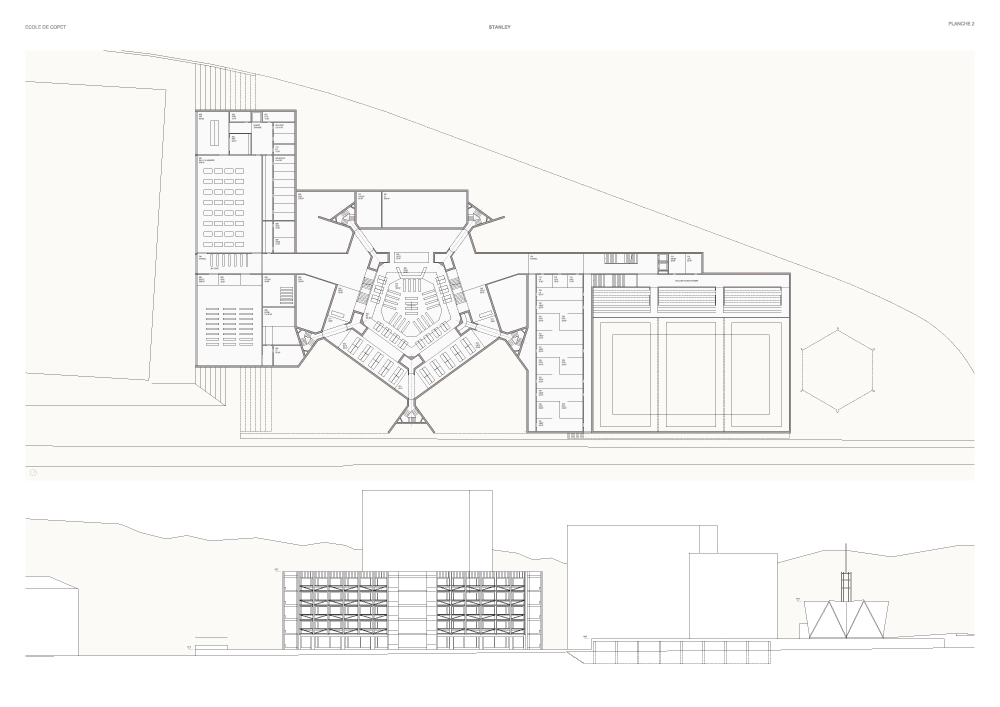
Le choix d’une forme rayonnante pour accueillir l’ensemble des salles de cours, la médiathèque et l’administration réunit la vie quotidienne de l’école autour d’un centre qui distribue les étages par des escaliers placés en suite autour d’un grand puits de lumière. Elle permet la mise en relation des utilisateurs. Elle donne une forte identité à la nouvelle école. L’entrée à l’altitude 401,5 offre des relations paysagères entre la rue et la Veveyse. Dans le sens longitudinal, le temple et l’école sont reliés par leurs géométries et s’étagent sur des esplanades qui communiquent jusqu’au terrain de sport.

L’utilisation de la déclivité latérale de 6 mètres pour placer les salles de gym, la cantine et l’aula permet de libérer l’esplanade. Le choix de la forme pentagonale offre la possibilité de réunir les classes standard trois par trois sur des étages qui comptent quinze classes chacun. Au sous-sol, les grands programmes collectifs sont reliés. Les salles de gymnastique sont accessibles directement par l’esplanade de l’école. Les vestiaires sont reliés au terrain le long de la Veveyse. L’aula et la cantine sont desservies à travers l’école mais aussi par un cheminement situé en bordure du terrain de sport.

Construction

La structure porteuse du bâtiment des classes est en béton armé. Elle s’exprime en plan et en coupe par des porteurs puissants qui contiennent des services et les escaliers de secours. Sur les angles, des parements en plots de ciment sont construits entre dalles. Sur les façades vitrées des classes, une structure non porteuse en acier galvanisé est accrochée en applique depuis l’extérieur. Elle permet d’accueillir les systèmes d’obturation contre le soleil. Elle peut également servir de treille pour faire croitre de la végétation. Derrière la treille, les contre cœurs sont en béton apparent. Les menuiseries extérieures sont en bois métal avec un revêtement en bronze et une structure en chêne. A l’intérieur, les escaliers sont également en acier galvanisé. Ils reflètent la lumière zénithale du puits de lumière central.

Ecologie et pérennité

Le bâtiment respectera les critères d’isolation et de consommation d’énergie par l’étude et la mise en place d’une technologie  appropriée aux ressources du site. Les matériaux mis en œuvre sont simples et durables. Ils nécessiteront peu d’entretien. L’excavation relativement conséquente de la salle de gymnastique est compensée par la minimisation des surfaces exposées sur l’extérieur. La grande majorité des locaux bénéficient de lumière naturelle. L’impact du projet dans le site est en harmonie avec les bâtiments environnant. Le temple et l’école sont en dialogue sur la langue de terrain qui s’étend entre la Veveyse et l’avenue des Crosets. Nous le proposons comme un site public ouvert à la promenade au fond du vallon dont les pentes ont été colonisées de part et d’autre par des immeubles de logement.

Identité

L’école est un lieu où se fait l’apprentissage de la socialisation. De par son atmosphère et sa situation, nous souhaitons que ce  nouveau complexe de l’école de Copet  soit à même de forger une identité qui unisse ses étudiants au-delà de leur période de scolarité. Un lieu de rencontres  et de souvenirs  d’un âge de la vie ou le vécu reste à tout jamais gravé dans la mémoire.

0321-CHP-CH-2011.12 — Posted in 2013 — Explore more projects on education and school — Climate: continental and temperate — Coordinates: 46.470654, 6.849105 — Views: 2.973