Escola l'Arrabassada a Tarragona is a completed project by Santiago Vives designed in 2015. It is located in Tarragona Spain in an urban setting. Its scale is medium with a surface of 3.358 sqm. Key materials are brick and concrete. Play-Time collaborated as visualizer. The concept of prefabricated is explored.

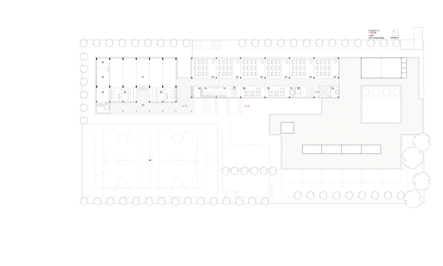
La implantació es defineix des de la ubicació de dos volums edificats dins la parcel·la: un volum compacte perpendicular al carrer Mercè Rodoreda, i un segon diferenciat del primer, de menor volum, que conté el parvulari. Entre tots dos defineixen l’accés principal al centre, a través d’un espai públic enjardinat i un porxo.

Model Tipològic

El model tipològic plantejat és de caràcter compacte. El parvulari, d’una sola planta, amb aules profundes i relacionades per un ampli passadís totes orientades a sud-oest, directament relacionades amb el pati exterior i amb il·luminació natural homogènia compensada a través de lluernaris. El centre de primària, de pb + 2, té l’aulari disposat asimètricament al llarg d’un passadís central, les aules estan orientades a nord-est, amb la corresponent protecció solar de lames d’alumini verticals, disposades de manera que eviten el sol directe i el tradueixen en llum natural matisada a l’interior de les aules. Dos nuclis de comunicacions verticals (amb un ascensor) situats pròxims als punts d’accés dels alumnes, comuniquen tots els nivells de l’escola. El gimnàs, s’entén com un element independent, situat a continuació de l’aulari i directament relacionat amb la pista esportiva. El seu accés està garantit tant a través de l’ampli espai públic de l’escola, com en un futur, quan la urbanització del voltant s’hagi executat, a través d’un dels nous carrers.

Volums econòmics, compactes, flexibles i eficients. Econòmics per la seva senzillesa constructiva i a la precisa superfície construïda en relació amb el programa escolar sol·licitat. Compactes, en quant que ocupen l’espai mínim necessari i alliberen el màxim d’espai lliure, amb paràmetres formals adequats a les activitats a l’aire lliure, sense espais residuals i facilitant el control visual de tot el conjunt. Flexibles per la seva concepció estructural i constructiva que possibiliten l’adaptació dels edificis a usos diferents al llarg del temps. Per la disposició dels accessos independents al centre escolar, cuina, biblioteca, AMPA, gimnàs i lavabos exteriors. Eficients, la compacitat ajuda a minimitzar la despesa energètica. La distribució homogènia permet la utilització de sistemes constructius industrials i en sec son també sistemes passius d’estalvi energètic.

1359-SAV-TGN.ES-2015 — Posted in 2015 — Explore more projects on education and school — Climate: mediterranean and temperate — Coordinates: 41.123488, 1.272387 — Consultant: PGI Engineering (David Tuset Truqué), Esteve Sitjà López, Centro catalan de geotécnia S.L. (Teodoro Gonzalez López) — Engineer: Bac Engineering Consultancy Group (Agustí Obiol Sánchez) — Views: 4.085