Escoleta Llubi is a proposal by Tomás Montis Juan Bonilla and Betula Creative Lab for Ajuntament de Llubi designed in 2017. It is located in Llubi Spain in an urban setting. Its scale is small. Key materials are concrete and glass. Concepts such as zenithal light and color explosion are explored. Review the 7 proposals for the same competition.

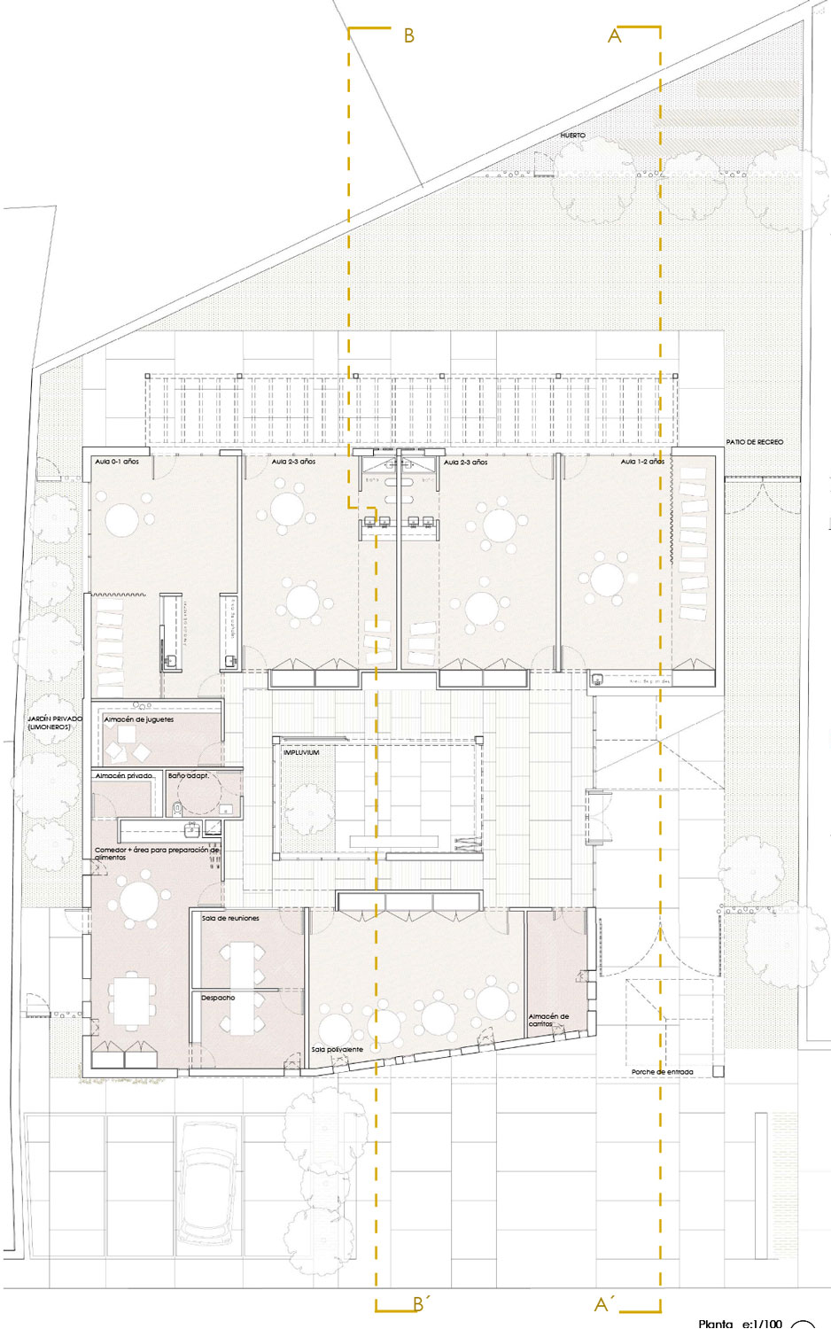
Un centro de primer ciclo de educación infantil (“una escoleta”), supone un equipamiento donde tiene gran importancia la relación con el espacio público, debido a que su uso implica una agrupación de niños entrando y saliendo a determinados momentos del día, así como sus padres tienen que esperarlos. La propuesta parte como preferencia, generar un espacio público. Este nuevo espacio que se le regala a la población, pretende fusionarse con la dilatación urbana de la calle “Roca Llisa” generada por el edificio colindante, cuyo uso es de oficina y almacenaje. La Escoleta se propone como un volumen libre en la parcela, para que se mimetice con el edificio colindante y así generar un mismo espacio público. El edificio funciona todo el en planta baja, de cubierta inclinada, en su mayor parte sostenida por tabiques conejeros (así evitar problemas de goteras), donde en su interior se ubicarían las maquinarias de instalaciones necesarias.

Impluvium

Toda la escoleta se estructura respecto un patio central, imitando a los impluviums romanos. Además, centralizando todo el espacio común en un mismo punto central, minimiza la superficie necesaria de espacios comunes interiores. Este patio, nos aporta luz a todas las zonas comunes, concentradas alrededor de él. Además, nos permitirá tener ventilaciones de aire cruzadas, y servirá para que toda el agua pluvial de la cubierta se pueda almacenar en un aljibe subterráneo. Este impluvium, permite estar totalmente abierto, para que se fusione con los pasillos tangentes a él, y consiguiendo así, un vestíbulo mayor, o incluso una nueva aula común. El patio central, el impluvium, es la esencia de este proyecto.

Molinos de luz

Llubí es población de molinos, “construcciones verticales y puntuales por el hombre que aprovecha los recursos naturales como el aire, para generar grano, energía…”. El concepto de molino, se metaforiza en la “Escoleta” por medios de lucernarios que se encuentran en el porche de entrada y espera de los padres. Capturan la luz solar, para trasladarla a este espacio orientado por defecto a Norte como consecuencia del emplazamiento. Por otro lado, con los dos lucernarios que imitan a dos molinos, se monumentaliza este nuevo equipamiento, compitiendo con el edificio colindante de fachada característica ya comentado, y así, generar un espacio público más equilibrado. Como consecuencia se revaloriza la calle Roca Llisa.

Naturaleza

La naturaleza es un concepto que los sociólogos, así como los docentes, la han considerado fundamental en la educación de los niños. No es de extrañar, que este tipo de equipamientos se llamen también “jardín de infancia” o Kindergarten. Por ello mismo, la vegetación y los árboles, se utilizan en el proyecto como un elemento constructivo más. Además, se utiliza metafóricamente la geométrica y colores de los bosques para que el conjunto del edificio se aproxime más a este concepto, la naturaleza. Ello se puede presenciar en la verticalidad de las carpinterías, así como en sus colores verdosos y marrones verticalizados de la fachada, muy presentes en la entrada. Se ofrece un porche de hoja caduca como elemento de protección solar en verano. También se prevén zonas arboladas.

1928-BCL-PMI.ES-2017 — Posted in 2017 — Explore more projects on education and nursery — Climate: mediterranean and temperate — Coordinates: 39.701472, 3.008150 — Views: 5.853