Espacio parque San Francisco is a proposal by Jorge Ruiz Boluda Paul Dieterlen and Juan Carlos Hernández for Ayuntamiento de Puerto de la Cruz designed in 2013. It is located in Puerto de la Cruz Spain in an old town setting. Its scale is medium. Key material is concrete. The concept of broken volume is explored. Review the 4 proposals for the same competition.

Nuestra propuesta reflexiona sobre la capacidad de la arquitectura para interactuar y dar una respuesta resolutiva e integrador en un escenario de tensiones urbanas y complejidades programáticas. Tensiones urbanas debido a los encuentros que tienen lugar en el entorno inmediato: la trama del centro histórico y las edificaciones construidas a lo largo de siglos se alternan con complejos residenciales de mayor volumen resultado del auge del turismo en las décadas de los 60-70 del siglo XX. Complejidades programáticas debidas a la combinación de usos requerida que se deben integrar un sistema flexible que facilite un mayor y mejor uso del edificio.

Respuesta urbana. Integración y volumetria
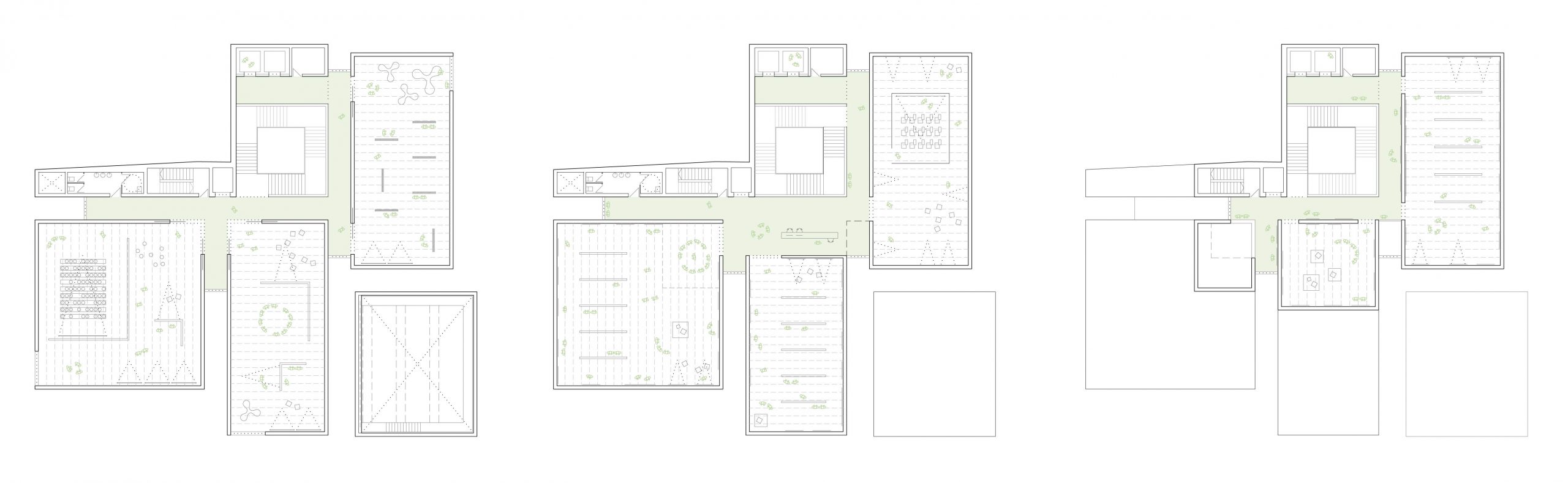
El edificio responde al entorno con una arquitectura limpia y respetuosa. Su volumetría arranca de las pautas definidas por la ordenanza y se formalizada mediante los siguientes elementos.
Volumen zócalo
Cuerpo unitario que ocupa las plantas baja, primera y sótanos, y que establece el contacto con los edificios históricos adyacentes mediante la alineación de fachadas, el empleo de materiales que reinterpretan los tradicionales y una imagen final que remite a una arquitectura sobria. En la planta baja, los planos de fachada se quiebran y generan espacios intermedios que permiten reconocer los accesos al edificio y remarcan su uso público. Interiormente, la placa se organiza mediante vacios que generan conexiones y relaciones espaciales frente a macizos que albergan los paquetes funcionales y bandas de servicios.
Volúmenes cajas
Conjunto de volúmenes de diferentes alturas y tamaños, con una escala y proporción que permite equilibrar el encuentro de la propuesta con los edificios adyacentes de 6-7 plantas. Albergan usos expositivos y se encuentran perforados en todas sus caras buscando iluminar naturalmente las salas y generar conexiones espaciales. Las separaciones entre las diferentes cajas permiten descubrir el paisaje urbano y natural del entorno en diferentes niveles.
Parque SF
En el plano donde las cajas se encuentran con la placa se genera un nuevo espacio libre que, junto con la plaza Doctor Víctor Pérez, puede ser entendido como en un punto intermedio en el recorrido entre las plazas El Charco y de La Iglesia. Su altura permite tener una nueva visión del entorno y dispone de espacios exteriores cubiertos y descubiertos, además de salas multifuncionales.
Flexibilidad y funcionalidad
La estructura funcional se organiza a través de un vacío que atraviesa la placa y permite una lectura clara del funcionamiento y diferentes usos del edificio. Mediante una geometría que integra los diferentes elementos, se conecta la calle San Juan con la calle San Agustín de Betencourt, enlazando en su parte central con el patio de la casa Martel. En este recorrido percibimos y reconocemos las diferentes partes y usos que integran el edificio.
Régimen de usos
La disposición de los usos principales en diferentes niveles (Auditorio en sótano y Museo en plantas altas) permite que puedan tener régimen de usos independientes. Con el edificio cerrado y teniendo acceso desde la calle, podría utilizarse la sala del Auditorio en su disposición Sala Conexión Calle, así como la tienda y cafetería.
Recorrido público – restringido
Con el fin de simplificar los recorridos y facilitar el control de los diferentes espacios, se segregan los recorridos de los usuarios y el personal del edificio. De esta manera los niveles sótano -1 y planta 1ª, que albergan, instalaciones, área administrativa y camerinos, son de uso restringido, mientras que la planta alta, sótano 2 y planta 2 tienen carácter fundamentalmente público.

0421-JRB-TCI.ES-2013 — Posted in 2014 — Explore more projects on cultural and cultural center — Climate: hot and semiarid — Coordinates: 28.417094, -16.549780 — Views: 2.994