Feria de Cáceres is a proposal by Antonio Lara Morcillo designed in 2010. It is located in Cáceres Spain in an undefined setting. Its scale is medium with a surface of 6.582 sqm. Key material is metal. The concept of enclosure is explored.

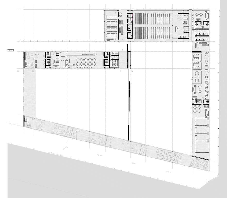
La propuesta para el nuevo edificio de ferias de Cáceres se plantea desde el no lugar, un emplazamiento localizado a las afueras de la ciudad donde se prevé un nuevo desarrollo urbanístico que cambiara cualquier referencia existente a la que podríamos atenernos. Por ello, y por las exigencias del programa requerido, surge una propuesta funcional y escultórica de un edificio exento cuyo principal objetivo es combinar la flexibilidad del programa de usos y de ampliación. Así, surge un volumen simple y contundente en el que el programa complementario a las salas de exposiciones-multifuncionales se localiza en el exterior, dejando un gran volumen central que permite la flexibilidad de usos, y al que se accede a través de un gran espacio cubierto de entrada que servirá de punto de reunión como de zona de actividades al aire libre. La situación del edificio en un extremo de la parcela ofrece la posibilidad de crecimiento del edificio en un 50% en una segunda fase de construcción, o bien, el esparcimiento de usos interiores hacia el exterior.

Funcionalidad de espacios

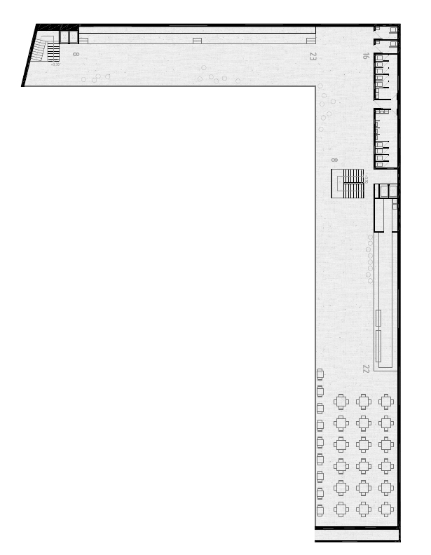
La fachada de la izquierda actúa de banda flexible exenta de programa y que sirve tanto para abrir el edificio al exterior en caso de actividades al aire libre como para que un futuro el edificio pueda ampliarse en una segunda fase de construcción a través de esta banda, minimizando costes. La funcionalidad de los espacios es determinante en el proyecto. El edificio pone su forma al servicio del programa de necesidades y de la interactuación de espacios entre sí y con el exterior, bien de manera independiente, conjunta o como ampliación de usos. El control de acceso se sitúa en un espacio La propuesta resuelve la posibilidad de uso independiente de dos salas de ferias, la sala de conferencias ampliable, el auditorio, el bar cafetería y la guardería. El vestíbulo principal de acceso al edificio distribuye estos espacios dotándolos de la independencia necesaria y, al mismo tiempo, de la participación y relaciones con otros espacios. Dicho vestíbulo se sitúa en el espacio intermedio entre las dos salas de ferias que quedad divididas entre sí mediante un sistema de paneles – corredera abatibles que se recogen tras él y que permite la completa relación entre espacios al mismo tiempo que ofrece la posibilidad de independizarlos.

El espacio central de exposiciones se divide en dos mediante unos paneles corredera que permiten, no solo su independencia, sino su uso simultáneo para fines diferentes. Del mismo modo, la banda polivalente del edificio se puede abrir enteramente para permitir el desarrollo de eventos al aire libre. Con superficies de 1.800 y 1.900 m2, cuentan con el suficiente espacio diáfano como para acoger todo tipo de actividades deportivas y de ocio. La banda dedicada a almacenes es una charnela entre el exterior e interior del recinto ferial. La banda de oficinas puede ser un espacio independiente a la vez que pueden ceder espacios de trabajo para la celebración de eventos. La primera planta del edificio forma parte del recorrido habitual de exposiciones y está diseñada como graderío para eventos con público.

Sistema constructivo

La necesidad de un espacio central exento de obstáculos y, por supuesto, elementos estructurales contribuye en cierta medida a la creación de un edificio lineal que se pliega alrededor de este espacio, definiéndolo. En el perímetro se sitúan los principales elementos estructurales que constituyen el sistema constructivo del edificio formado por una estructura metálica de pilares HEB y vigas IPN. Para conseguir estos espacios diáfanos es necesario cubrir grandes luces por lo que la estructura de coronación del edificio es entramado de vigas metálicas en cercha de 3 m de canto. Las instalaciones se llevan a cabo mediante una red de tuberías que se sitúan bajo tierra y disponen de unos puntos de conexión sobre los que alojar los mostradores de los distintos eventos. Este sistema permite ganar altura al no necesitar techo y montantes para la distribución de las instalaciones.

Materialidad

Debido al carácter del edificio se hace una fuerte apuesta por elementos prefabricados y construcción seca que agilicen los periodos de ejecución y abaraten costes. Del mismo modo, se colocan unos materiales muy concretos y sencillos, evitando así un gran número de soluciones que dificulten la construcción del edificio. Principalmente está constituido por una estructura metálica y los siguientes materiales principales. El cerramiento exterior está formado por paneles sandwich de GRC, compuesto por dos láminas autoportantes de G.R.C.®, reforzado con fibras de densidad y un núcleo de poliestireno expandido tipo IV, de dimensiones 1200 x 2000 x 60 mm y resistencia al fuego M1. Aporta un aspecto de resistencia, masividad y durabilidad. El interior está formado por paneles planos de resinas termoestables, homogéneamente reforzada con fibras de madera TRESPA, de dimensiones 2000×3000+8mm. Acabado en cerezo con fijación oculta con perfilería de aluminio. Este material es adecuado para el uso de conciertos debido al buen comportamiento de la madera ante el sonido, en comparación con otros materiales más duros como el hormigón o el acero. Estos materiales parecen levitar sobre el suelo al disponerse sobre a continuación del cerramiento del edificio en su parte baja. Se trata de una sección de paneles de policarbonato semitransparente de color blanco, dimensiones 2000x3000x2mm, densidad 1.20kg/dm3 y transmisión lumínica que varía entre el de 87 y el 65%, según sean interiores o exteriores. Sobre este cerramiento se practican los diferentes huecos de acceso al edificio, fomentando así la permeabilidad del mismo hacia el exterior o la posibilidad de mantenerse aislado, exento.

0591-ALM-ES-2010 — Posted in 2012 — Explore more projects on cultural and mixed use — Climate: continental and temperate — Team: Antonio Lara Morcillo, Juan López de Lerma Jiménez — Views: 3.098