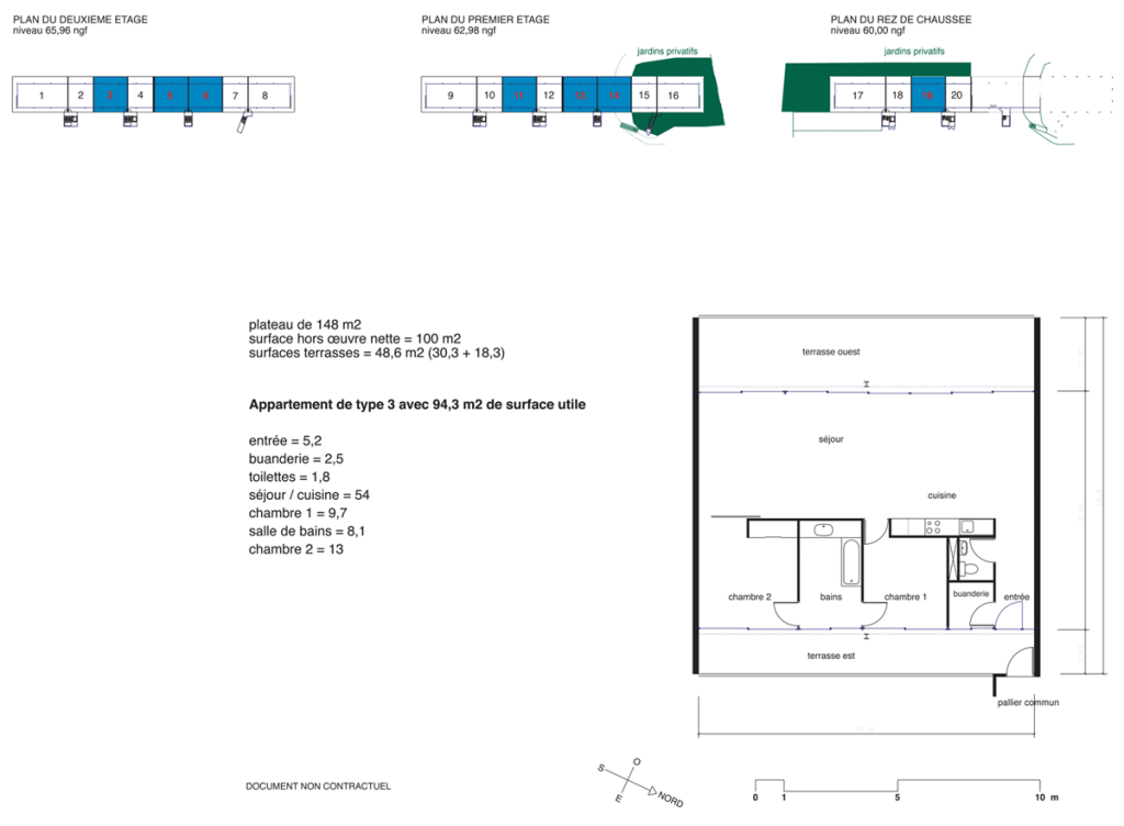
Floirac housing is a proposal by Lacaton & Vassal for SERDI designed in 2001. It is located in Bordeaux France in a urbanization setting. Its scale is medium with a surface of 2.127 sqm an estimated budget of 2.082.000 € and a ratio of 979 €/sqm. Key materials are metal and polycarbonate. Concepts such as balcony flexibility and open ground floor are explored.

The plot of land is located on the slope skirting the Garonne, facing Bordeaux. It includes a clearing, a protected wooded space and a line of trees on one side. The building is installed on the higher part of the land and profits from the finest view towards the park and the city, thus leaving the greater part of the terrain as a park. The metal structure allows for great modularity, when it comes to marketing, in the defining of the dwellings on a single level or in duplex form, in order to respond to the particular demands of the users. All the apartments are set crosswise. On the ground floor they open onto private gardens on the upper floors they benefit from long, continuous balconies. The entirely glazed facades are protected from the sun by exterior blinds.

0708-LAV-FR-2001 — Posted in 2012 — Explore more projects on housing and residential — Climate: oceanic / maritime and temperate — Coordinates: 44.829753, -0.516330 — Team: Anne Lacaton, Jean Philippe Vassal, Sylvain Menaud — Collaborator: Emmanuelle Delage, David Pradel — Engineer: Cesma, Ingérop — Views: 3.887