Sede de la Fundación Arquitectura Contemporánea is a proposal by Moreu Mestre and Mampaso-Bassanello designed in 2009. It is located in Córdoba Spain in an old town setting. Its scale is medium. The concept of origami is explored.

La actuación se ubica en el casco urbano de Córdoba, lugar característico por su trama irregular legada de su pasado visigodo. En ella “las calles carecen de sentido regulador, son cauces; no tienen pretensiones de espacios público o estancias, abriéndose sólo pequeños y contados ensanches. Esta estructura dinámica se serena en sus proporciones y se remansa en sus plazas, ofreciendo una ambigua frontera en sus ramificaciones capilares, ignorándose a veces la frontera entre lo público y lo privado, desdibujándose las continuidades a través de zaguán y galerías hasta patios, pudiendo parecer algunos de ellos plazas conectadas a través de tramos cubiertos de calle.”

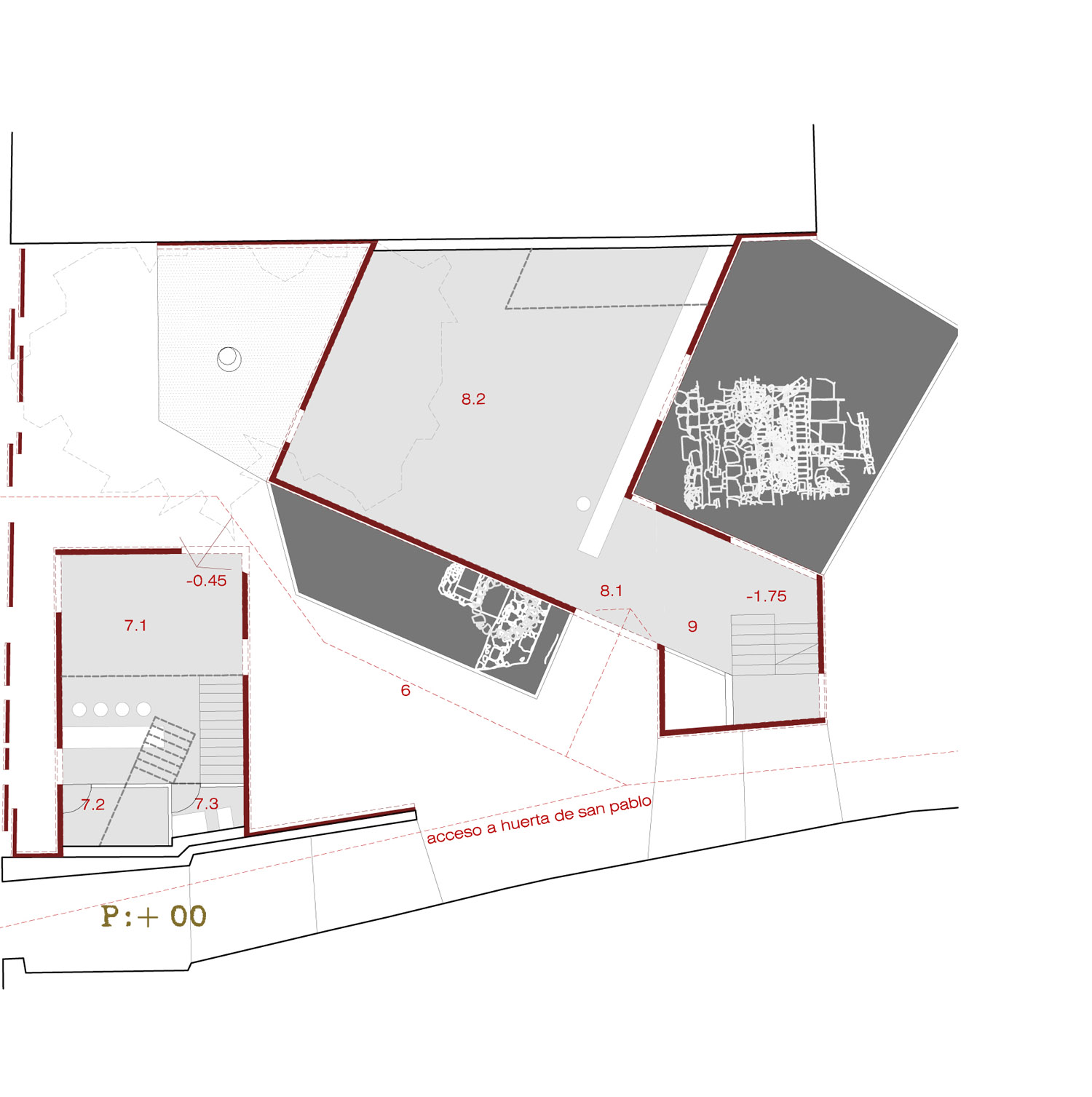
Esta situación existente ha determinado la manera de intervenir, concibiendo la propuesta como un paso a la huerta de San Pablo, construida con los mismo elementos: zaguanes, patios, tramos de calle cubierto… para responder y potenciar de alguna manera al trazado irregular en el que se encuentra. De esta manera la fundación de Córdoba crea una calle interior que desemboca en la plaza de San Pablo constituyéndose como puerta de acceso a las instituciones culturales que alberga. La manzana de San Pablo se configura como un límite irregular constreñido por la edificación que lo rodea, ese interior se escapa por la presencia de tres espacios inconclusos que forman parte del contenido de esta propuesta. Estos tres solares constituyen a su vez puntos de entrada al interior de la manzana de San Pablo. Para lograr la contención de este espacio se propone un nuevo límite que unifique, englobe y encierre la huerta, conteniendo los programas propuestos en el espacio que se crea entre el límite actual y el propuesto. Con esta intervención pretendemos no sólo dotar a la manzana de nuevos usos (fundación de arquitectura, espacio para pequeñas exposiciones efímeras y parking público) sino unificar el interior de la manzana (mobiliario, tratamiento de medianeras y límites), descubrir y poner en valor los restos arqueológicos existentes en ella y propiciar nuevos usos para el descanso y disfrute de los cordobeses.

Uno de estos solares inconclusos, el que alberga la futura fundación objeto de este concurso, se sitúa frente al Ayuntamiento de la ciudad junto a los resto de un templo romano. El edificio propuesto pretende ser un telón de fondo al templo romano y dar continuidad urbana a la calle Capitulares. Para conjugar ambas intenciones, la de dar un telón de fondo continuo y concebir el edificio como un paso a la huerta de San Pablo se propone una fachada permeable que al igual que el pórtico de columnas del templo marque la entrada a lo que luego acontece. Una entrada que permite ver el cuerpo del edificio en un espacio dilatado, que en el caso de la fundación será un patio con la presencia dominante del árbol que en la actualidad ocupa la parcela. Un patio al que se abren todos los espacios expositivos y más públicos del proyecto, que continúa su recorrido por un tramo cubierto por el resto del programa de la fundación, para luego abrirse otra vez y conectarse con el acceso a la Delegación Provincial de Cultura de la Junta de Andalucía y el resto de la huerta. El resto de intervenciones dentro de la manzana de San Pablo tratan de sanear el contorno que lo limita por ello planteamos un nuevo contorno que regularice su interior, trate medianeras excesivamente duras, ruinosas o discordantes y ponga en valor los restos del antiguo circo romano que pasaba por su traza, para ello proponemos:

– sacar a luz los restos encontrados,
– integrarlos en el tratamiento del edificio o parque en el que se sitúan,
– crear un recorrido de visita  configurado por el nuevo límite planteado,
– estudiar una posible conexión subterránea con el templo romano y los restos arqueológicos al otro lado de la calle Capitulares, además de la relación visual creada con la plaza sobre la cafetería a nivel del templo.

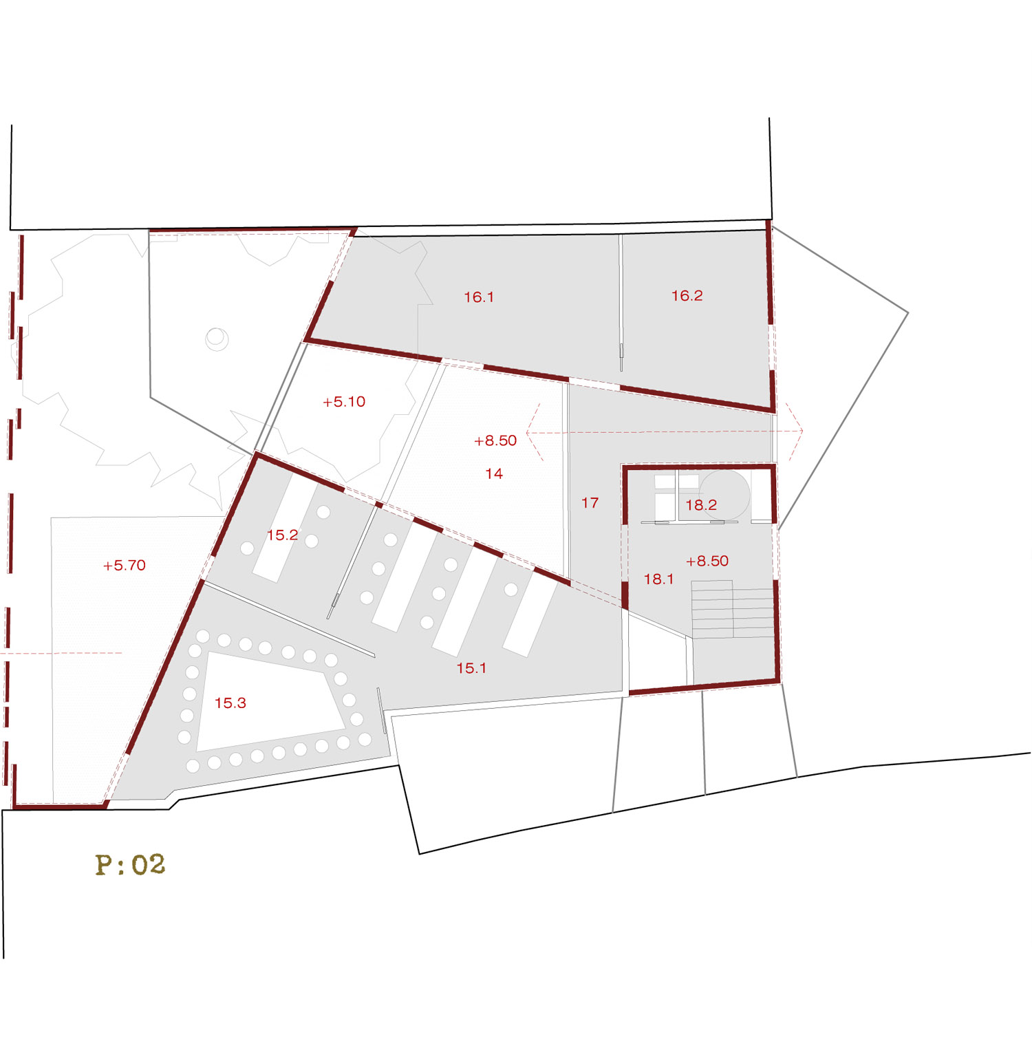
La fundación se concibe como un edificio de espacios diáfanos que vuelcan uno sobre otro con la posibilidad de conectarse tanto visual como espacialmente de manera que goce de una gran versatilidad en cuanto a lo que uso público se refiere. Un volumen independiente en cuanto a geometría y uso, y vinculado estrechamente a la calle Capitulares contiene la cafetería-bookshop en un espacio en tres niveles que se abre tanto al patio de acceso como al templo romano con una terraza situada en la misma cota a la que se eleva el templo.

El resto del edificio contempla espacios para actividades culturales, ya sean exposiciones, conferencias, talleres. La propia geometría del edificio condiciona que estos espacios se puedan relacionar entre sí directamente o mediante los espacios exteriores a los que se abren (patios y terrazas). En el nivel superior se distribuyen los usos administrativos y de trabajo de los empleados de la fundación separados por un distribuidor que se abre tanto al patio de acceso al edificio como a la entrada a la huerta de San Pablo. El giro que presenta esta pieza responde a la situación de los restos arqueológicos situados bajo él, de manera que cause la menor incidencia sobre ellos, relacionándose con los mismos tanto desde el interior del edificio como desde el exterior  mediante huecos en la calle que da acceso al interior de la manzana de San Pablo.

Tanto la geometría del edificio como su materialidad contribuyen a hacer una arquitectura sostenible en el contexto de Córdoba creando superficies en sombra, con los voladizos, calles cubiertas y vegetación existente, y relacionándose con su entorno con pequeñas aberturas y filtros vegetales, translúcidos y perforados de piedra tratada.

0710-MOM-ODB.ES-2009 — Posted in 2012 — Explore more projects on headquarters and institutional — Climate: temperate and mediterranean — Coordinates: 37.884782, -4.775711 — Team: Ignacio Moreu Fernández, María Mestre García, Almudena Mampaso Cerrillos, Giammattia Bassanello — Collaborator: Cristina Mestre García, Cristina Mampaso Cerrillos — Views: 2.053