Harbour Stones is a winning proposal by C. F. Møller for Norra Älvstranden Utveckling AB and Municipality of Gothenburg designed in 2010. It is located in Göteborg Sweden in an industrial and seaside setting. Its scale is large with a surface of 70.000 sqm. Concepts such as new development origami and void are explored.

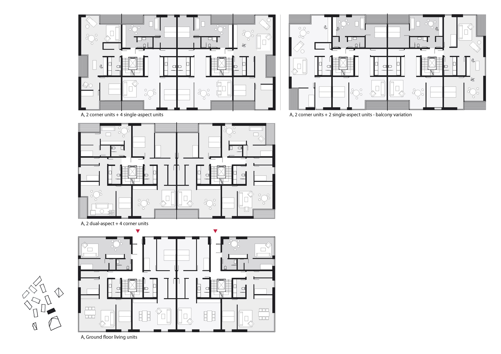
The task has been to design the master plan for a new housing district in the Lindholm area of Gothenburg’s old industrial port. The Lindholm area, dominated by former industrial buildings and shipyards, has been transformed into large-scale business districts and open plazas. The master plan proposal introduces a humane scale and a different architecture focusing on the small-scale urban spaces within the scheme by refining the positioning, geometry and transparency of the buildings. The scheme consists of 10 sculptural building volumes, hence the name Harbour Stones, varying in height from four to ten storeys. The scheme also includes a tower of approximately 22 storeys which will rise as a landmark. The buildings are designed to maximise the potential for sunlight and views of the harbour, and their facades of re-cycled aluminium make a strong statement with reference to the ship-building history of the site. Towards the exterior the major urban traits are continued, but the new area opens up inside by means of two public stairs acting as thoroughfares and a third landscaped stair to the waterfront. This creates a micro-climate with sunny, sheltered spaces directly overlooking the harbour, and also opens views out for every resident.

0692-CFM-GOT.SE-2010 — Posted in 2012 — Explore more projects on masterplan and public space — Climate: continental and temperate — Coordinates: 57.708585, 11.941144 — Landscape: C. F. Møller Architects — Views: 2.915