Haus der Zukunft is a proposal by Alcolea + Tárrago for Bundesantalt für Immobilienaufgaben designed in 2012. It is located in Berlin Germany in a railway, riverside and urban setting. Its scale is medium with a surface of 6.912 sqm. Concepts such as triangle shape monolith and atrium are explored.

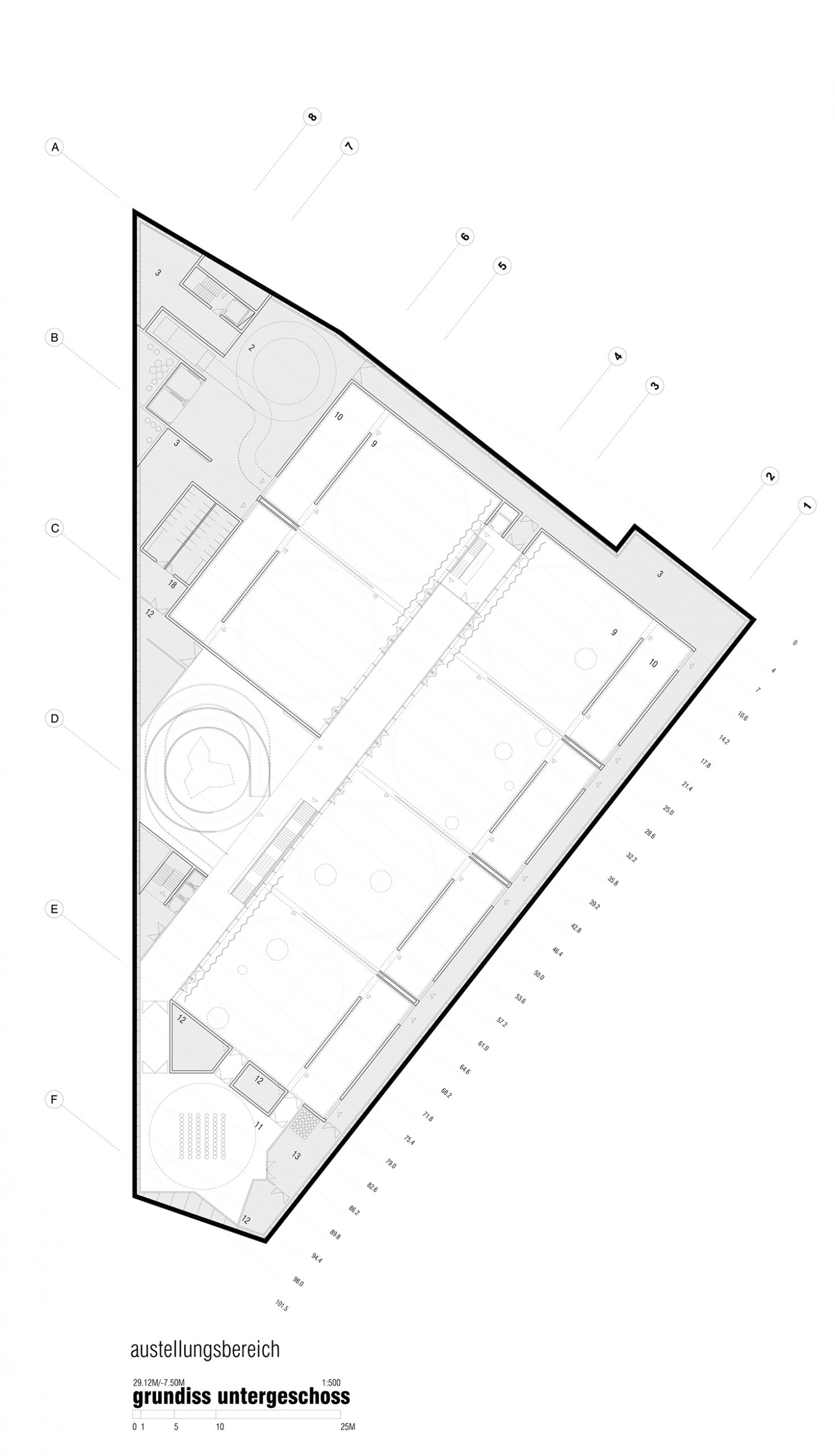
We propose compactness to built up an essential, pure, geometric and recognizable -a triangle-, iconic urban piece, able to evoke  formal essences, and to generate intense relationships between inside and outside. The program arises from a radical premise: to divide the volume in levels according to uses in a versatile scheme. The exhibition spaces are totally in an underground level so the volume does not exceed 15 meters, opposite to the 24 meters  neighboring buildings. The ground floor is a free scheme, transparent and permeable. The upper floor contains spaces for events and conferences, and the terrace is a large garden overlooking the Tiergarten It becomes a place where outdoor exhibitions, educational science experiments, energy collection or parties and concerts take place. All is connected with a great void that can hold the exhibition of artifacts or objects of great dimension.

0594-ATA-BER.DE-2012 — Posted in 2012 — Explore more projects on cultural and mixed use — Climate: continental and temperate — Coordinates: 52.524144, 13.374306 — Team: Rubén A. Alcolea Rodríguez, Jorge Tárrago Mingo — Collaborator: Javier Ugarte Albizu, Jon Irigoyen — Views: 2.406