Kindergarten Marktstraße is a thrid prize proposal by Daniel Fügenschuh designed in 2013. It is located in Dornbirn Austria in an urban setting. Its scale is medium. Key materials are concrete glass and wood.

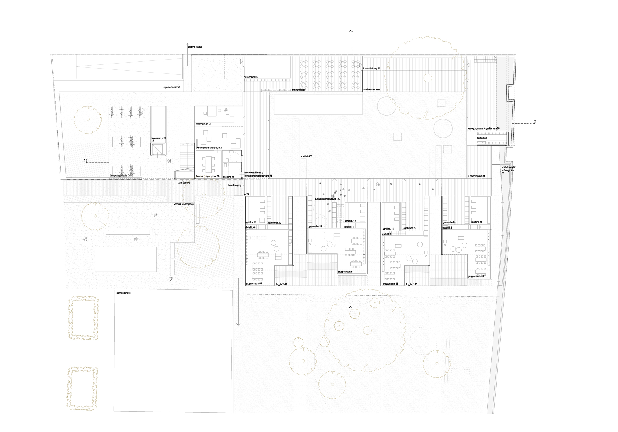
Die Marktstraße wird als historische Hauptstraße mit seinem typischen Straßenraum um ein im Maßstab entsprechendes, kommunal genutztes Gebäude erweitert, das mit dem Stadthaus in räumlicher Verbind steht und mit dem Kindergarten einen neuen, platzbildenden Stadtraum entstehen lässt. Die beiden unter Naturschutz stehenden Eiben kennzeichnen den Kindergarteneingang und den Verbindungsweg und geben der neuen Begegnungszone ein Laubdach. Die verschiedenen Funktionen der Bauaufgabe stehen entsprechend ihrer Zugehörigkeit offen zueinander da und ermöglichen eine befreiende Entflechtung. Je nach Tageszeit wird der Platz zum Vorplatz des Kindergartens zur Verweilzone von Passanten oder zum Treffpunkt vor dem Gemeindehaus etc. Der im Bereich Klostervorplatz geforderte zehn Meter Abstand wurde um eineinhalb Meter unterschritten. Im Gegenzug konnte das Bauvolumen in der Nähe des Klosters reduziert werden. Die eingeschossigen Pavillons des Kindergartens sind in der Höhe der Klostermauer und dem Baumbestand angepasst und führen zu keiner Einschränkung in Bezug auf Aussicht und Belichtung.

Äußere und innenräumliche Gestaltungsqualität, Funktionalität

Der Kindergarten ist um einen großen Innenhof herum angelegt. Die Kinder können sich so in einem geschützten Außenbereich aufhalten, der gleichzeitig den vier Gruppenräumen, dem Bewegungs- und Essensraum eine Mitte gibt um die diese wie Pavillons angeordnet wurden. Eine gemeinsame Erschließungsfläche für die großzügigen Gruppenräume bildet wie ein Säulengang den südseitigen Abschluss des Kindergartenhofs und setzt sich im Foyer Westseitig, im Bewegungsraum ostseitig und im Essenbereich mit Terrasse im Norden fort. Die Garderoben sind als Ausweitung der Erschließungszone mehrfach nutzbar. in den Gruppenräumen gibt jeweils einen doppelhohen Bereich mit Galerie und Dachterrasse. Der Spielplatz bildet die zweite Orientierungsrichtung für die Kinder und liegt im Süden der Anlage, wo jeweils eine witterungsgeschützte Terrasse pro Gruppe angeboten werden. Diese bilden einen Übergang zum öffentlichen Spielplatz und stehen den Kindern somit auch außerhalb der Öffnungszeiten zur Verfügung. Die zentrale Lage mit entsprechend guter, fußläufiger Erreichbarkeit und das vorhandene Spielplatzangebot wird so verstärkt genutzt werden können. Im Turnsaal gibt es eine Galerie zum Zuschauen und Spielen, die eine Blickverbindung zum über der Allee der Stadtstraße gelegene Stadtbad herstellt.

Die Räume der KindergärtnerInnen sind im Erdgeschoss des neuen Gemeindehauses neben dem Foyer untergebracht. Der nicht dem Kindergarten zugewandte Teil der EGs bildet einen überdachten Vorbereich an der Marktstraße. Das 1.Obergeschoss erreicht man über eine offene, gedeckte Treppe vom Platz aus, die auch als Treffpunkt dienen soll. Das Foyer und der Besprechungsraum sind so möglichst nahe am Stadthaus und an der Stadt selbst angeordnet und bieten vielfältig nutzbare und gut zugängliche Räume – auch für die Bevölkerung/Fremdnutzer an. Die erforderlichen zusätzlichen Räume des Gemeindeverbandes wurde darüber im 2.OG eingerichtet und profitieren von der guten Anbindung zum Foyer sowie bester Belichtung und der schönen Aussicht auf die Stadt mit ihrer Umgebung. Die durchmischte Bauaufgabe erreicht durch Synergien eine gute Wirtschaftlichkeit in Errichtung, Betrieb und Erhaltung. Das Umfeld kann durch eine Tiefgarage autofrei und besser gestalten werden. Die wirtschaftlichen und funktionalen Vorteile des Projekts führen zu einer Verdichtung der stadträumlichen Nutzung ohne die öffentlichen Räume zu beschneiden. Die Zugänglichkeit der Flächen hat sich deutlich verbessert. Die neu entstanden Gebäude mit ihren Außenflächen sorgen für eine Ausweitung des Stadtraums.

0434-FÜG-HOH.AT-2013 — Posted in 2013 — Explore more projects on education and nursery — Climate: continental and temperate — Coordinates: 47.409916, 9.742990 — Team: Daniel Fügenschuh, Christan Hammerl, David Kohout, Lisa Torggler — Views: 3.529