La bussola is a proposal by Atelier Nido for Fondazione Paolo Torriani designed in 2013. It is located in Mendrisio Switzerland in an outskirt setting. Its scale is medium with an estimated budget of 2.000.000 €. Key materials are concrete and brick. Concepts such as balcony central core and broken volume are explored.

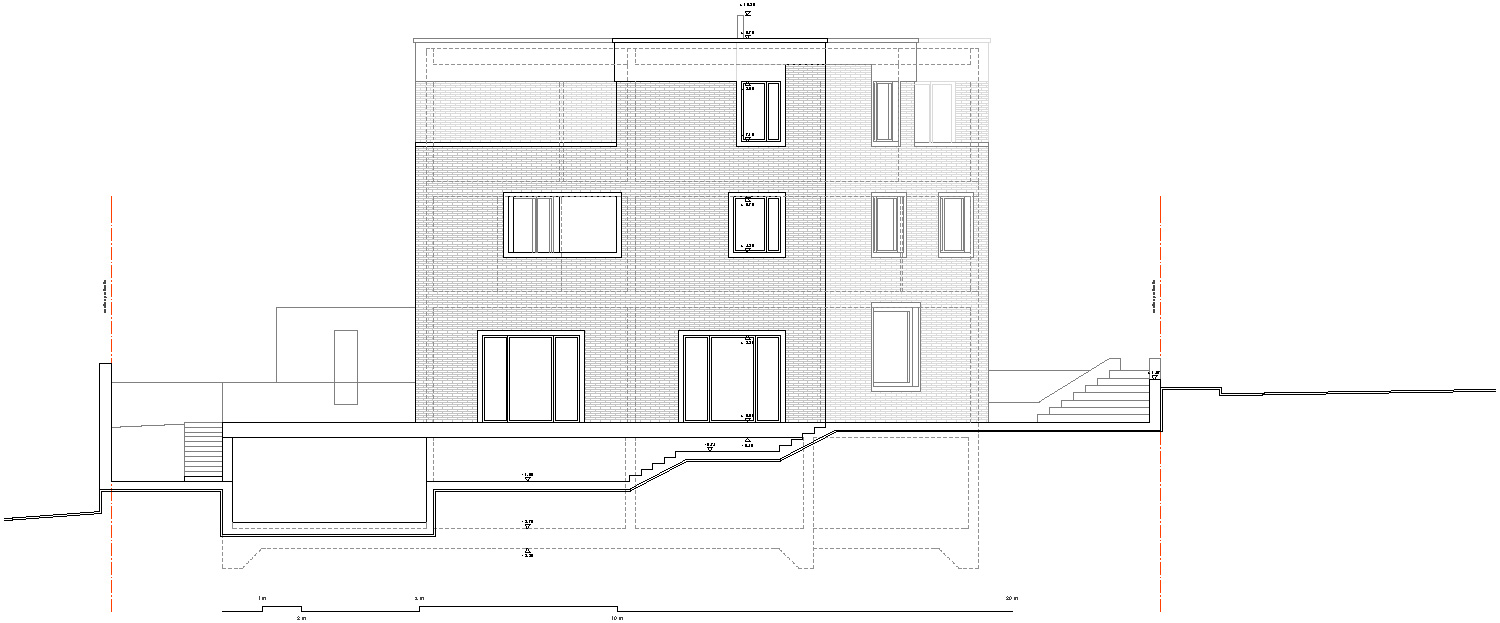
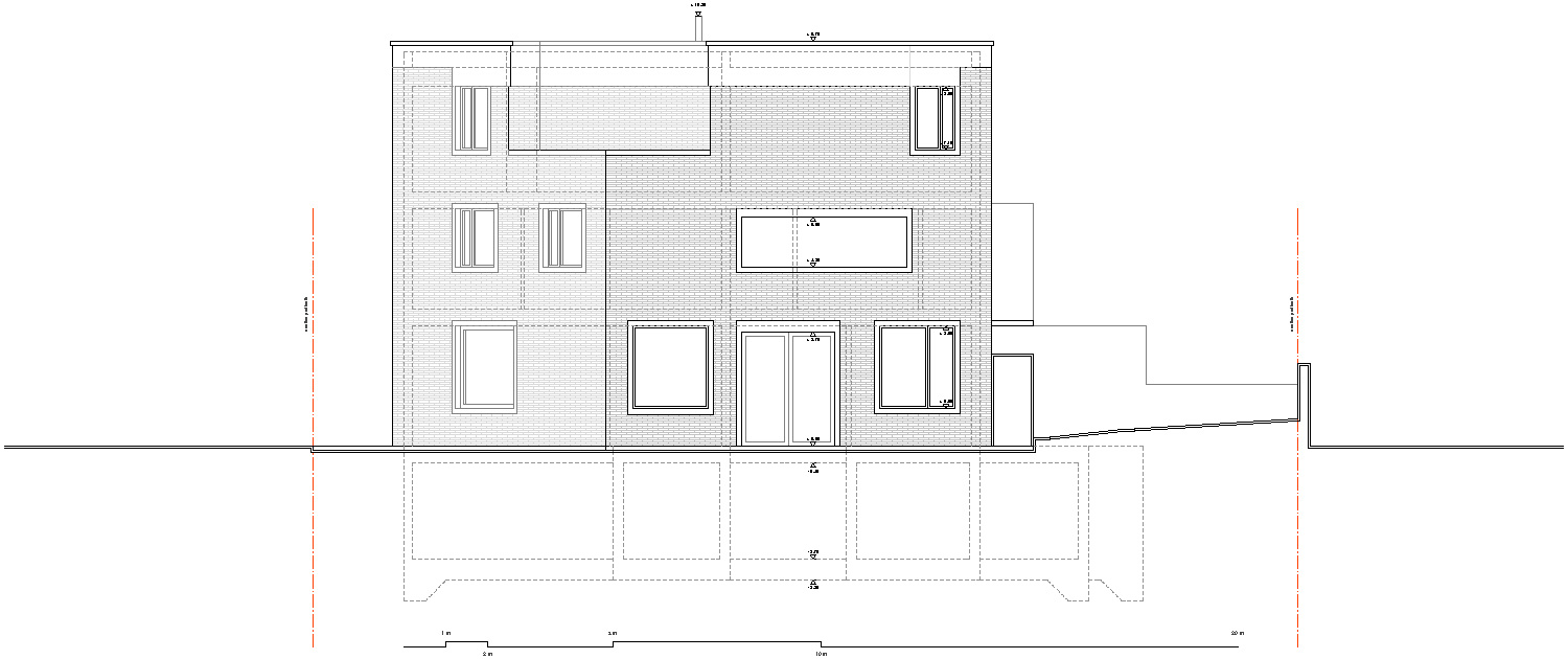
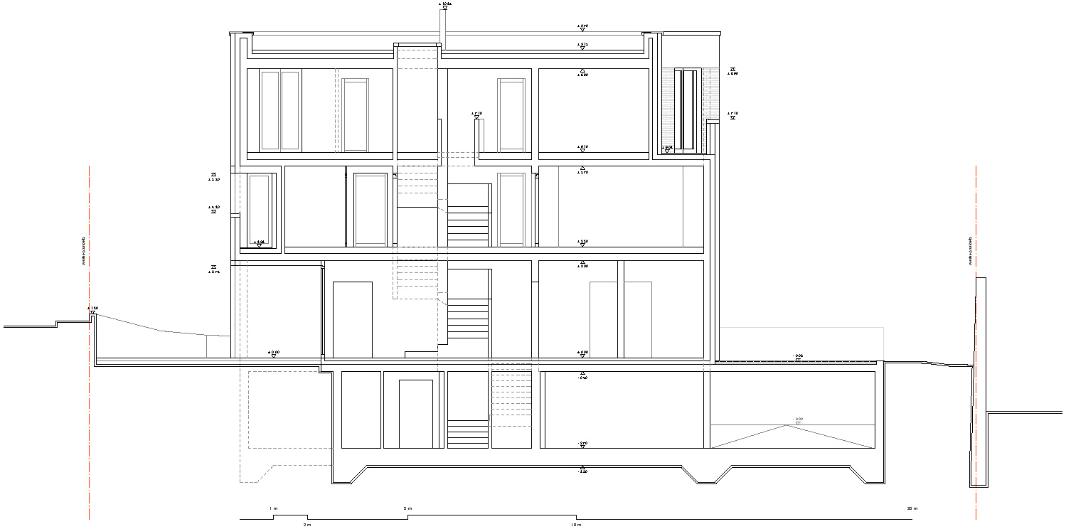
The buiding we thought It’s a space where young person who have familiar problems can live and learn a job before moving to be indipendent. The new house has three levels upper ground and one level underground which has technical and parking function. Clients asked a ‘ tower building ‘ but the program and also buildin laws do not allow more then 10.60 meters high. For this reason we decided to put the new tower on the highest point on the site, using the basement of the underground parking space as an extra level, able to slender the house, placed on it. Structurally, the building is placed on the wall and pillars of the parking. To increase the sense of verticality, we decided to create some different terraces on each level and especially on the second ( and last ) level where the volume is broken by the rhythm of the terraces.

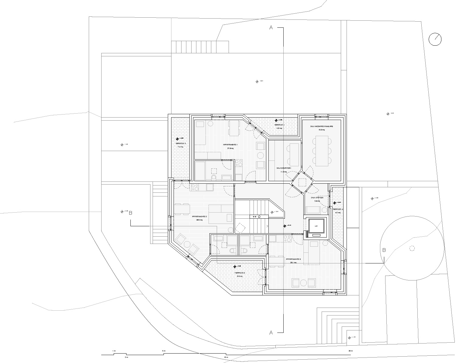
The ground floor allows public function which are a library, a tea room, an office and a reading room. We gave some importance to the vertical circulation which cross the building generating relations between levels and permitting to have a sense of spatial unity. It becames sculptural going in the reading room space and becoming the covering for the chimney. Linked to the inside space of the library takes place an outside terrace which is also the covering of the garage placed on the basement floor. On the groundfloor, structural walls surrounds an external secret garden where young guy can work during summer or organize expositions or happenings.

On the second floor are developed 3 atelier and a little space for a kitchen, related to the terrace. Takes place also a massage room and toilette for ladies, gents and disabled. On the second floor we thought 3 apartments for young guy, each one has its bathroom, living room, bedroom and one little kitchen. We decide to create a terrace for each apartment giving to the tenants the possibility to stay out and observ the nice south landscape on the roof of the old Nucleo di Mendrisio. The building has a clear perimetral structure made by concrete, linked to the slab, also in concrete. The expression of fassade is quiet simple, made in plaster and wood frame for windows; Just as a conclusion for the roof we thought precast concrete elements that marks the end of the tower.

0389-NID-CH-2013 — Posted in 2013 — Explore more projects on housing and residential — Climate: humid subtropical and temperate — Coordinates: 45.868136, 8.987183 — Views: 3.140