Maison des Danses is a winning proposal by COBE for Ville de Bordeaux designed in 2012. It is located in Bordeaux France in a lake setting. Its scale is medium with a surface of 1.500 sqm. Key materials are glass and wood. Concepts such as transparency and folded facade are explored.

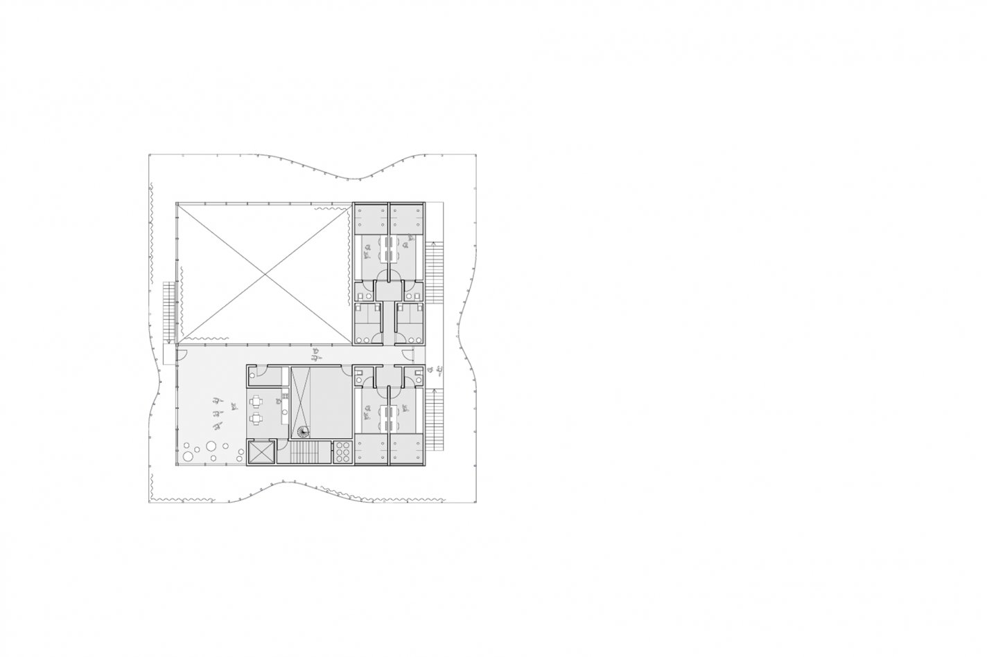
The Maison des Danse is conceived as a solitaire building. With the most compact possible volume an ideal square emerges in plan. As a compact building, the Maison des Danse is composed to fill out a condensed part of the plot clearly marking and defining the urban space around it. At all four sites of the otherwise straight facade, rounded inversions mark entries/exits, and protected outdoor spaces. This generates the effect of an architecture and urban space that can be understood and used intuitively, and that translates movement and the very essence of dance – into an elegant physical form.

0878-COB-BOD.FR-2012.15 — Posted in 2014 — Explore more projects on cultural and music school — Climate: oceanic / maritime and temperate — Coordinates: 44.877661, -0.574695 — Team: Vanessa Miriam Carlow, Sigurd Larsen, Thomas Werner, Jana Gutge, Angelica Verdini, Brett Gustafsson — Collaborator: Sadaa, Ingecobat, DíAbilly — Views: 3.509