Mali New Wing is an honour mention proposal by Alberto Campo Baeza La Fábrica and Ghezzi Novak for Mali designed in 2016. It is located in Lima Peru in a park setting. Its scale is medium with a surface of 6.000 sqm. Key material is concrete. Concepts such as underground and zenithal light are explored. Review the 5 proposals for the same competition.

Nos gustaría hacer para Lima el Museo más hermoso del mundo. Tras estudiar a fondo todos los condicionantes planteados, creemos que el tema principal es “construir la ciudad”, como se nos dice en las bases del concurso. Querríamos que nuestro edificio fuera capaz de responder positivamente a este “momento crítico en el desarrollo del museo y de la ciudad». Queremos poner en valor el edificio histórico del MALI, Museo de Arte de Lima. El Palacio de la Exposición es un edificio de gran calidad. Por eso, hemos optado por una arquitectura silenciosa y callada. Nuestra actuación, lejos de ser una pieza emergente y caprichosa, es una actuación que elige el camino de la serenidad.

Idea

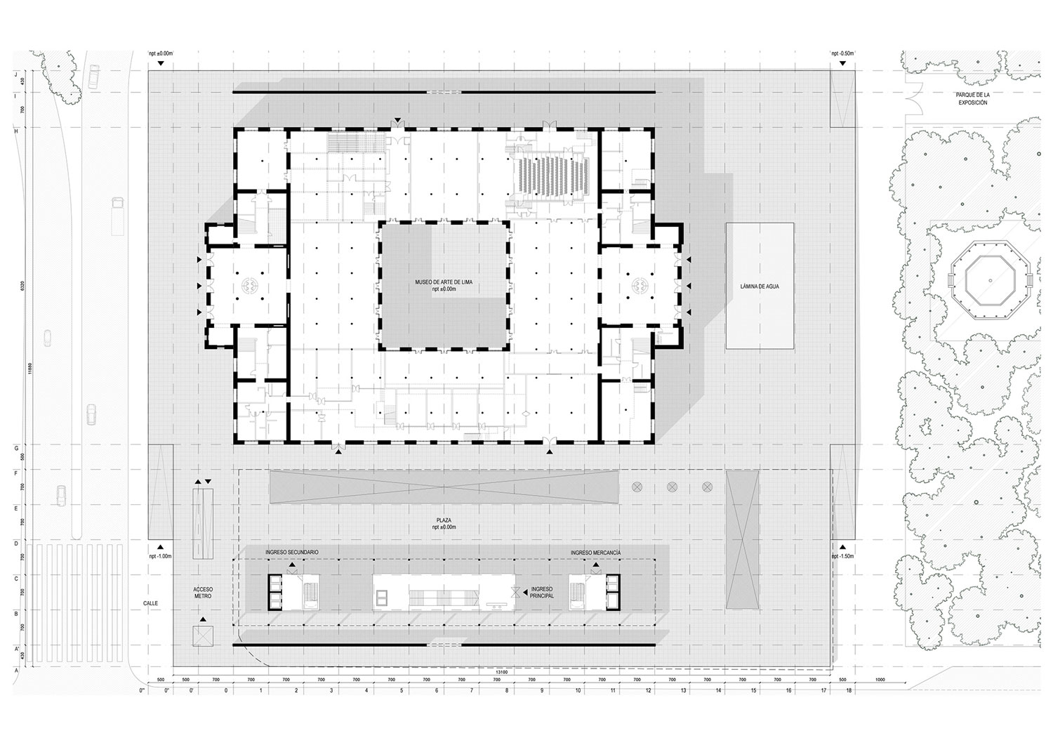
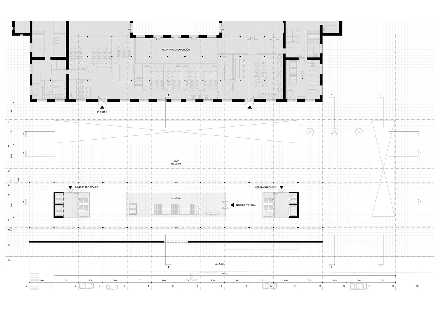
Para ello construimos un podio pétreo cuyo plano superior coincide con el plano del suelo de la planta baja del edificio histórico que queda así realzado. Se diría que hemos hecho un podio para realzar la belleza del Palacio de la Exposición. El podio se llevará hasta el borde de las vías de circulación circundantes. En el Paseo Colón se propone un sencillo cambio de bandas de circulación, otorgando al edificio histórico un espacio algo mayor delante de su fachada a dicho Paseo Colón. Máxime cuando se va a hacer en esa esquina el nuevo acceso al Metro. Así se pondrá en valor esa fachada del edificio histórico que reclama delante un espacio más amplio que el que ahora tiene. Asusta ver en las fotografías aéreas, y en la realidad, cómo la riada de coches puede actualmente pasar casi rozando esa preciosa fachada del Palacio de la Exposición.

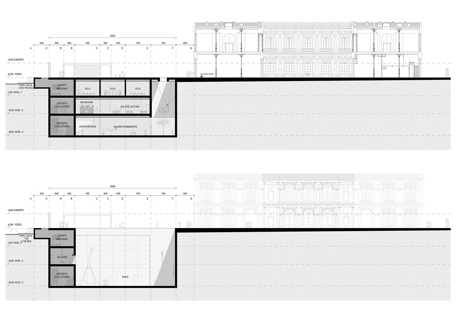
Para acceder a ese plano en alto se proponen rampas y escaleras desde las aceras del propio Paseo Colón. En la zona colindante con la Av. Garcilaso de la Vega se hará, subterránea toda la actuación principal de la nueva Ala de Arte Contemporáneo. Sobre la superficie del podio hacia Garcilaso de la Vega, se hará un muro largo suelto, con un gran ojo en el centro, para separarse del fuerte tráfico circulatorio de esa Avenida. Emergerá una edificación ligera, acristalada, como un umbráculo, que dará carácter e imagen al nuevo museo. Allí estará el ingreso a la nueva ala de arte contemporáneo. En una posición lógica de la entrada bien cercana a la estación del Metropolitano. Paralelo al umbráculo, y también con trazado rectangular, se abre un patio que llega hasta el fondo, para dotar de luz natural y ventilación a esa nueva ala. El nuevo edificio se articula a través de una amplia escalera principal central con sus correspondientes ascensores, que preside la construcción del umbráculo. Se complementa con dos núcleos a los extremos con escaleras y ascensores, para una lógica fluidez de circulaciones y para cumplir la normativa de evacuación e incendios.

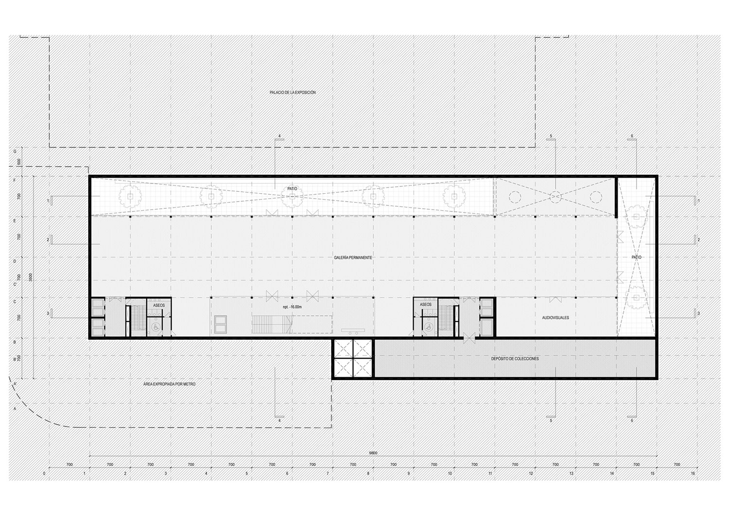
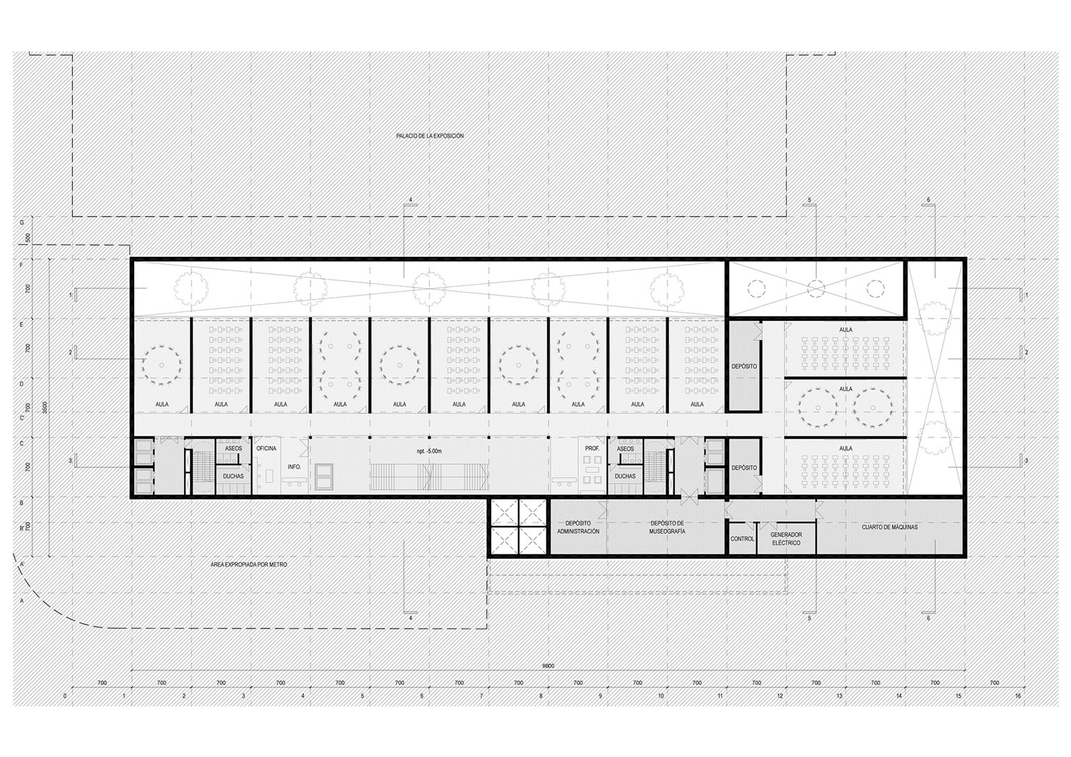
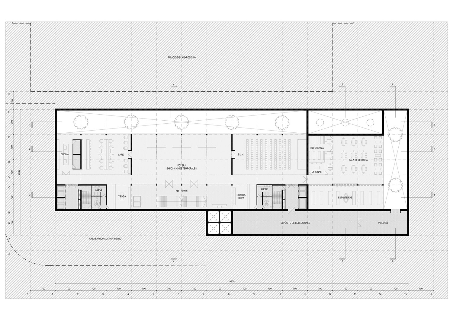
Funciones

El nuevo museo se organiza en tres plantas en esquema de peine, con las circulaciones a un lado y el amplio patio longitudinal al otro. En la planta más baja y abierta a los patios está la gran sala de exposiciones que se complementa con un hermoso espacio vertical de triple altura que conecta visualmente las tres plantas y donde se situarán obras de mayor envergadura. En la planta más próxima a la entrada el programa de clases. En la planta intermedia el resto del programa.

Parque

Querríamos que el Parque de la Exposición fuera más útil para la ciudad y atrajera a los ciudadanos a disfrutar de un espacio natural excepcional. Para ello entendemos que se debe transformar el actual sistema de jardín francés, cuyo mantenimiento es muy costoso y cuyo atractivo por su falta de sombra no es muy grande, por un sistema de jardín inglés, más naturalista y con muchos más árboles que pueda llegar a constituir un verdadero pulmón de la ciudad. Lo que, aunque sea a otra escala mayor, hace Central Park en Nueva York. Será muy positivo, y muy hermoso, el contraste entre el podio, más despejado para facilitar las circulaciones y para poner en valor el Palacio de la Exposición, y ese espacio de parque muy arbolado con elementos de agua y con pájaros.

Finale

Hemos optado por una arquitectura que, de la mano de la serenidad y de la lógica, de la verdad, pueda alcanzar la deseada belleza. No en vano Platón nos predicaba que “la belleza es el resplandor de la verdad”. La belleza que querríamos conseguir para Lima con un proyecto de enorme sencillez.

2002-ACB-LIM.PE-2016 — Posted in 2017 — Explore more projects on cultural and museum — Climate: desert / arid and hot — Coordinates: -12.060585, -77.036949 — Collaborator: Ignacio Aguirre López, Alejandro Cervilla García, María Pérez de Camino Díez, Elena Jiménez Sánchez, Tommaso Campiotti — Views: 4.337