Multi-family Housing in Marfa is a proposal by Paul Vincent designed in 2015. It is located in Marfa United States in a desert setting. Its scale is medium with a surface of 2.200 sqm. Key material is metal. Concepts such as parallel blocks courtyard lattice and aggregation are explored.

Marfa, Texas, a town of 2 000 souls, is located in the Chihuahuan desert. Home town of the minimal artist Donald Judd, Marfa has, gradually since the 70s, reached an international recognition in the contemporary art world. The city hosts, every year, an increasing amount of artists and art lovers. Marfa’s attractiveness might compromise on the long term, the offer for full-time residents housing. This proposal is both specific and generic. Specific, because it meets Marfa’s climate requirements, in a sustainable way by using local adapted materials and geothermal space organization. Flexibility and space generosity are also given to the variety of Marfa’s inhabitant’s needs, such as artistic, local crafts, or leisure activities. Generic, because it is more a system than a rooted to the spot answer. The repetitive economic structure allows flexibility, adaptability and fast construction. It has the potential for easy transformation and reconversion of the building. As the size and the amount of units are only based on the lot size, it could be adapted to other Marfa’s area or investor’s possibilities.

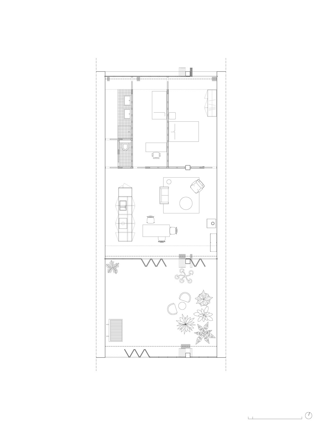
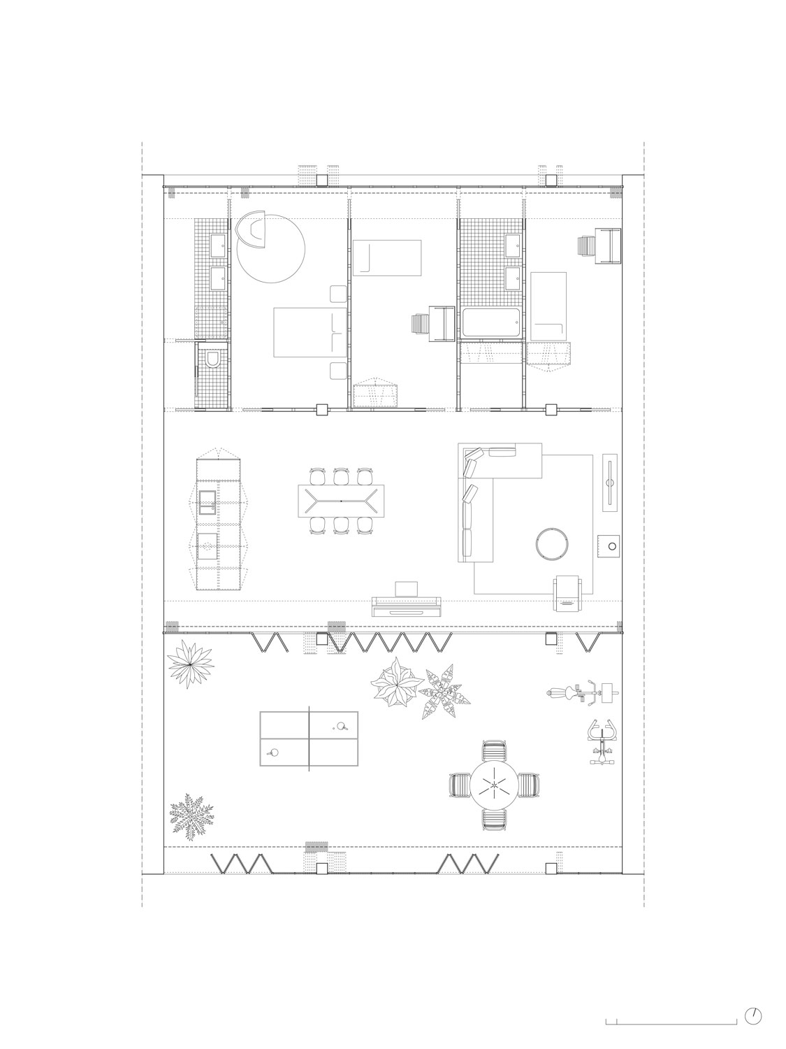
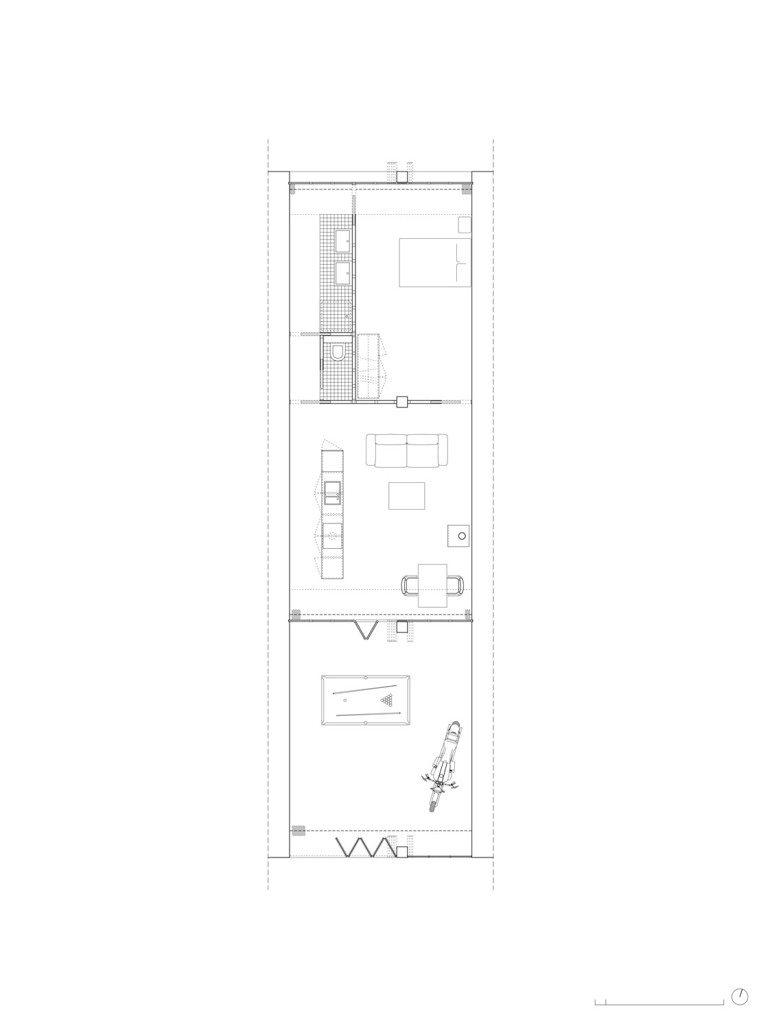
Joining the context of Marfa, specific and generic meets in the design of our proposal, which has definitely to do with minimal art and the expression of Donald Judd’s architectonical aesthetic. The industrial facade is yellow in order to emphasize in an artificial way the color tone of the surrounding landscape. A distance is kept on the edge of the lot between public and private area. It is a ring of high steppe-like vegetation, dense and left untouched. The four sides of the lot are considered as front yard to adapt the dwelling to the potential development of traffic regulation and Marfa’s densification. A yard, in between the 2 dwellings allows common equipments (basketball court, greenhouse for kitchen garden, children playground) it is dry with scattered vegetation. The construction is a mix of industrial prefab elements and vernacular crafted elements. It has the efficiency of an economic structure and the sensuality of a building directly connected to its surrounding and location. The total number of different elements is reduced to the minimum. An ambiguity between the massive elements and the light structure is created, as the light elements are bearing the roof and the heavy ones have no structural purpose. All the structure is made of only three different prefab elements. They can be assembled in a very short time.

This skeleton provides flexible and adaptable spaces. The dwellings are divided in the longitudinal direction into seven units of three different types. Each unit is open in the north/south direction, providing cooling by natural ventilation in summer. Rammed earth walls separate housing units. These massive elements provide strong thermal inertia. At night, it restitutes the accumulated heat during the day, and during the day it keeps a cooled atmosphere. This local sustainable material is perfect for a very dried place with important thermal amplitude. The earth comes from the Chihuahuan desert and precast blocks can be made on site and assembly. The dwellings are divided in the transversal direction into three stripes. The night stripe (north) with bathroom and bedrooms. The living / day stripe (central) with large living area with an open kitchen. The buffer stripe (south). This non-heated buffering space between the outside and the living area on the south edge of each unit is an extension of the house. It is a winter garden during cold months and a loggia during summer and mid-season. It has no given function. It is as tall as the living providing large appropriable areas. It is economic and therefore gives residents the opportunity to invent their own use of this space: studio, workshop, art exhibition space, relaxing area with dining table, sofa, barbecue, ping pong, snooker, or just be left empty.

1122-PVI-US-2015 — Posted in 2015 — Explore more projects on housing and residential — Climate: desert / arid and hot — Coordinates: 30.315391, -104.026169 — Views: 4.821