The Silo is a completed project by COBE for Union Holding designed in 2014 and completed in 2016. It is located in Copenhagen Denmark in a seaside setting. Its scale is medium with a surface of 8.500 sqm. Key material is concrete. Concepts such as adaptable reuse aggregation folded facade and balcony are explored.

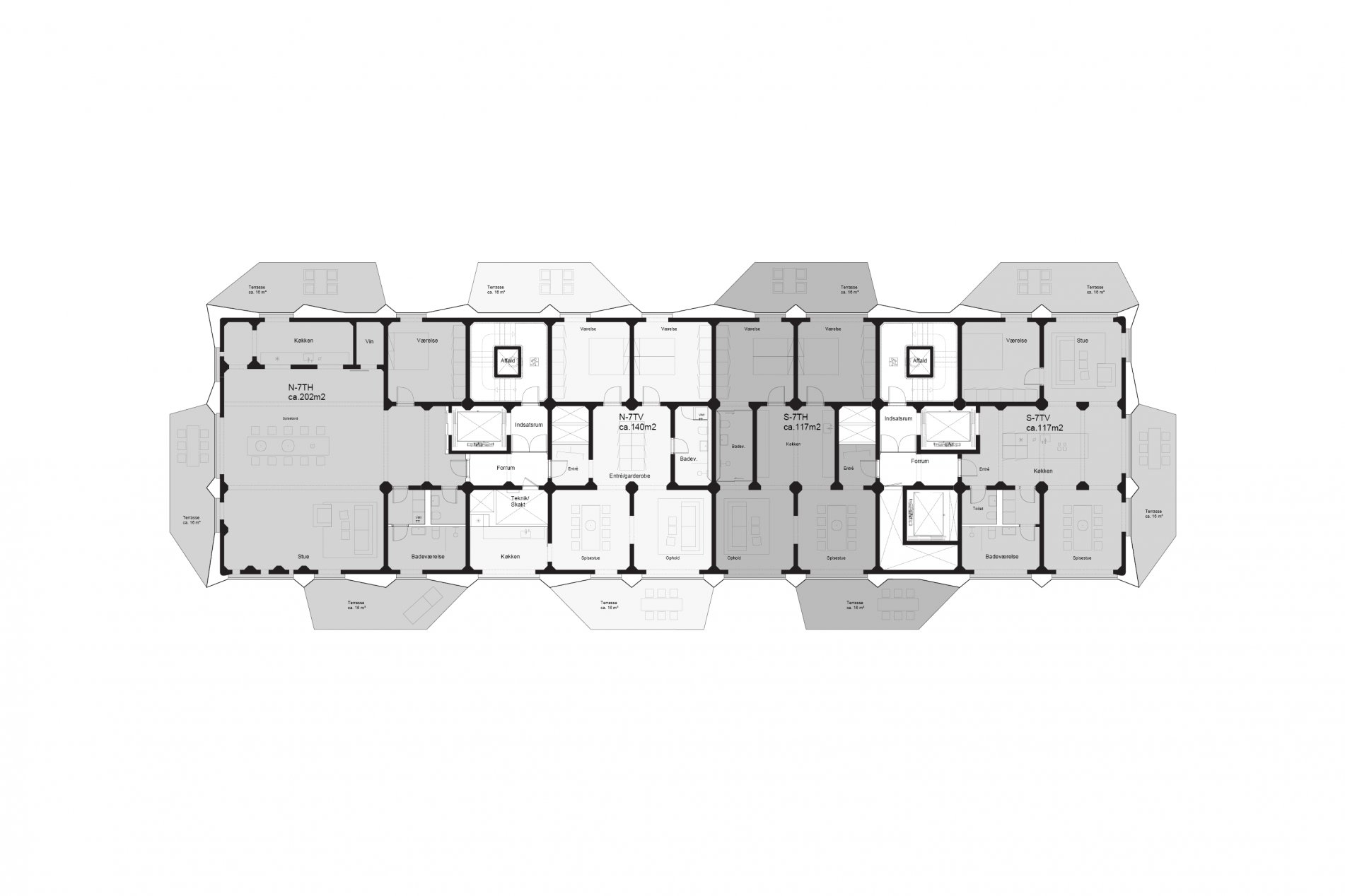
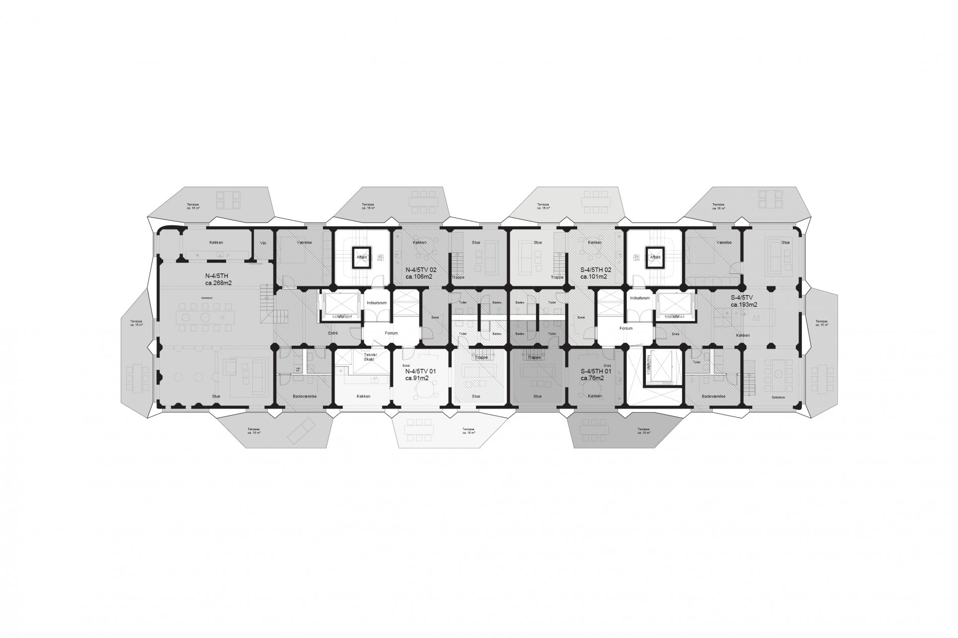
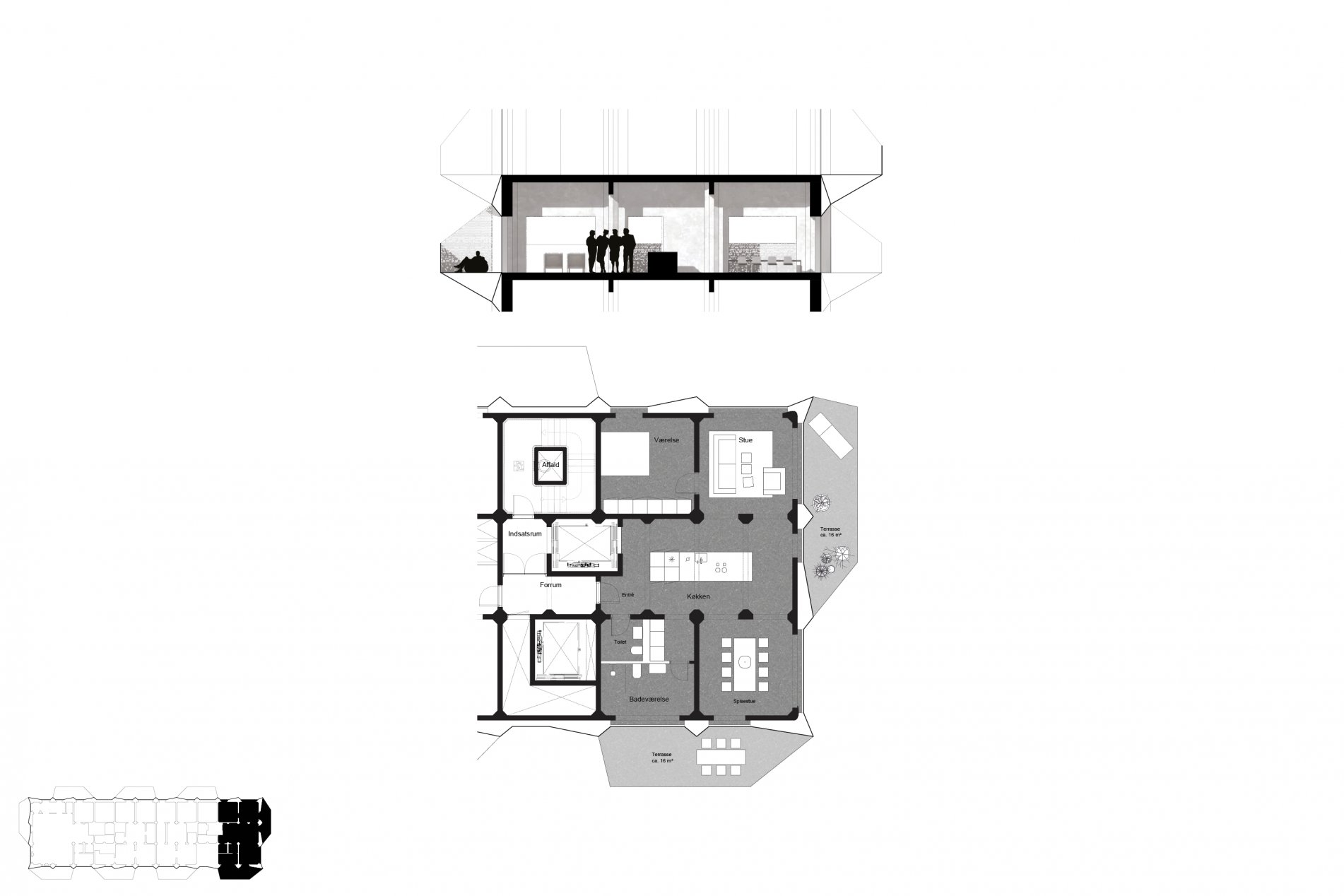
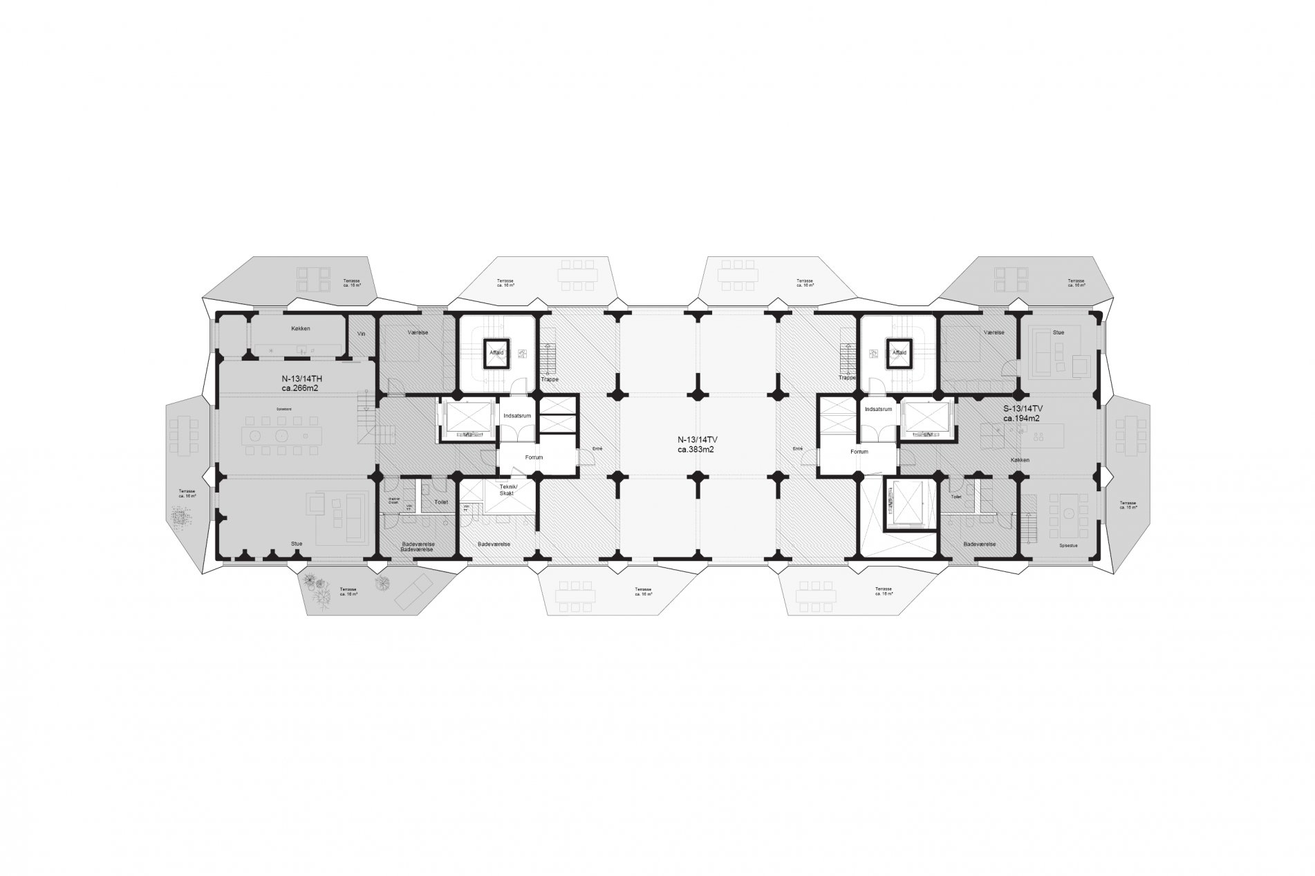
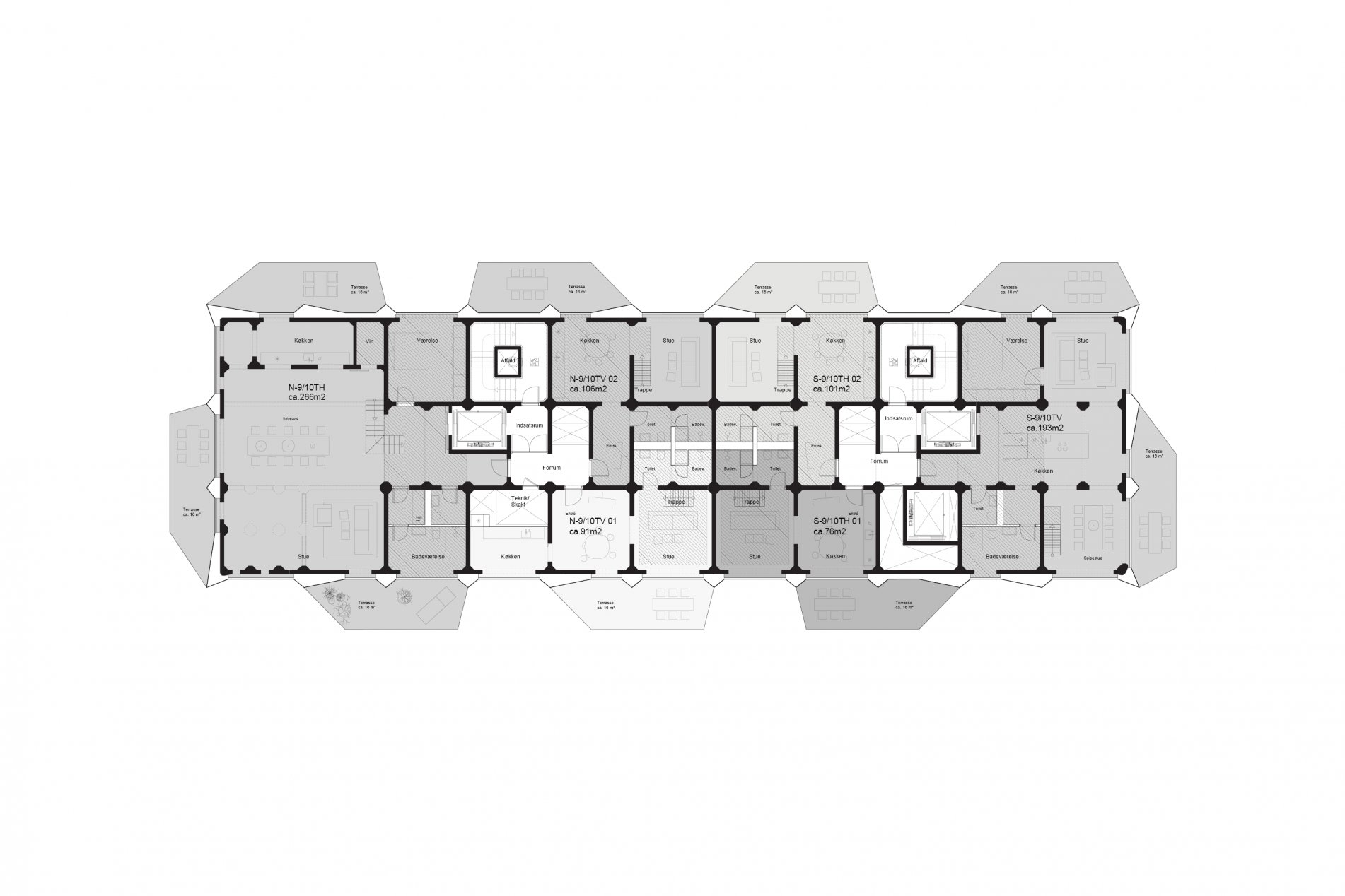
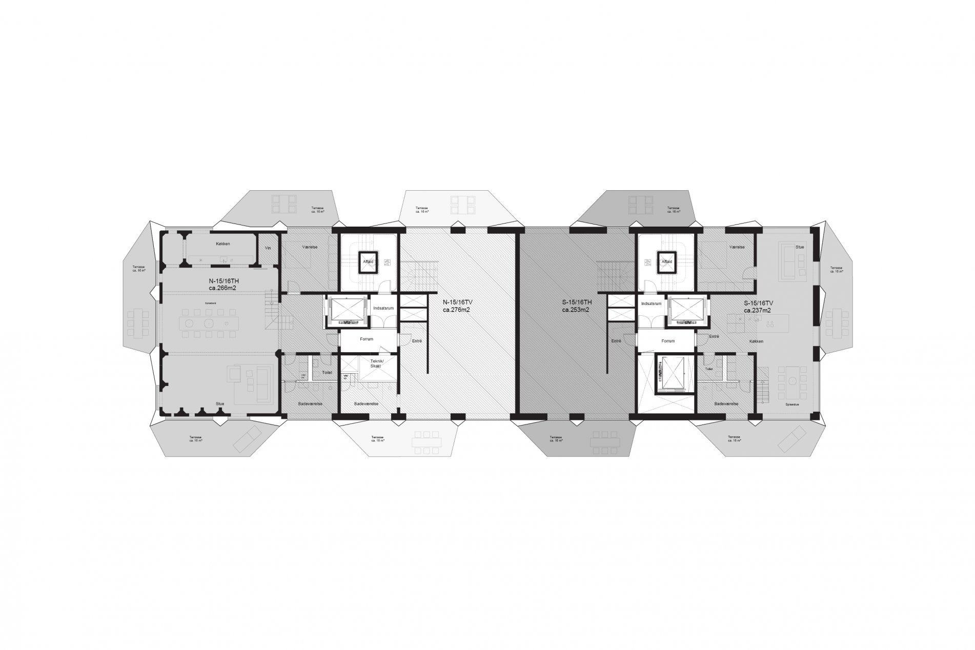
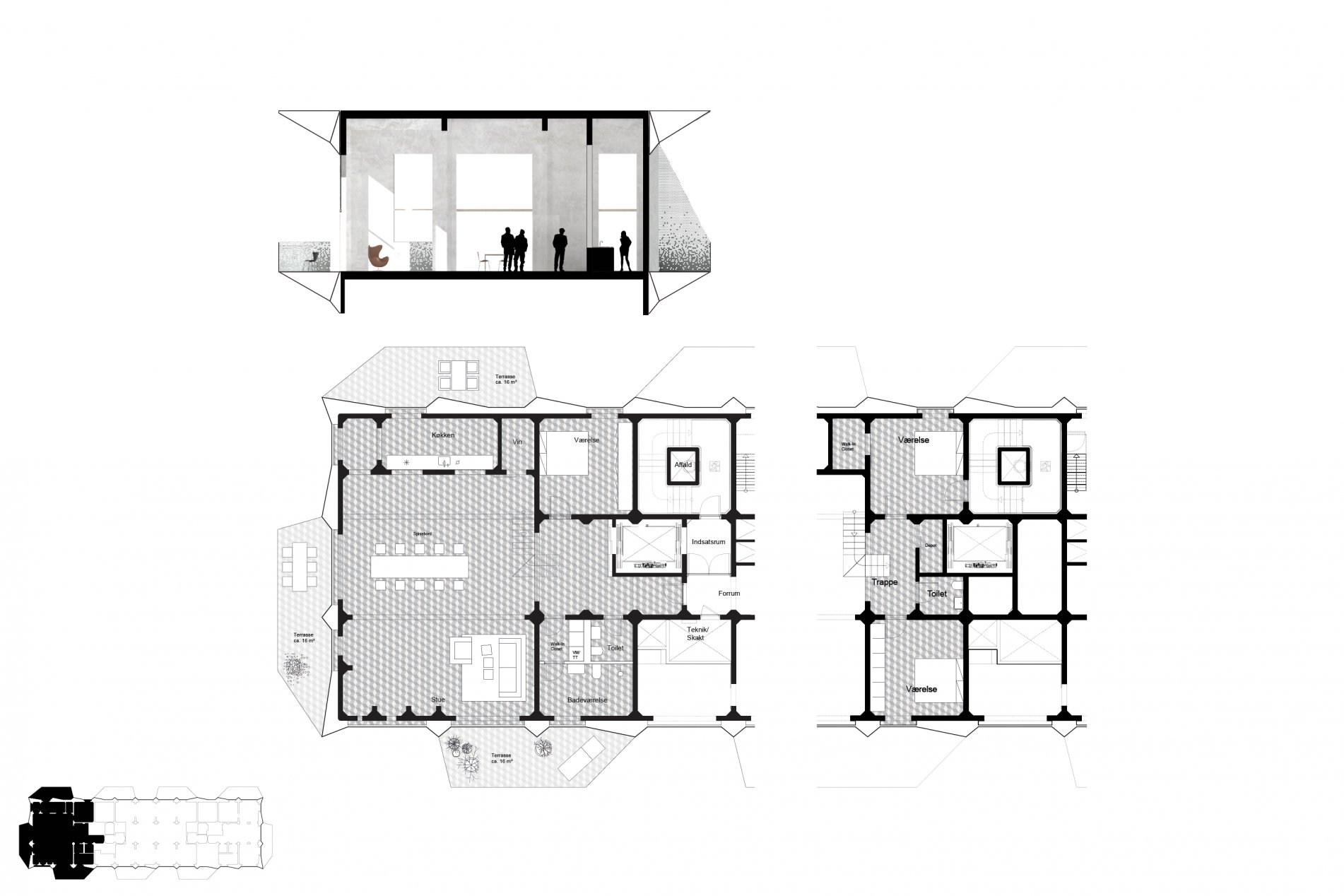
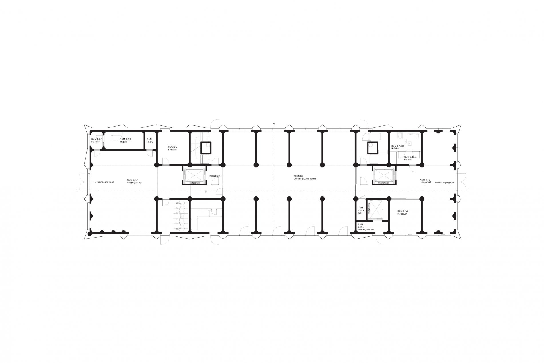
The 62 meters and 17-storey tall transformed silo will become a natural point of orientation in Copenhagen’s new neighborhood Nordhavnen. The demands for storage and handling of grain has led to magnificent spatial variation floor by floor. This will result in 40 different apartments, stacked on top of each other within the existing silo structure. In addition, public functions are located on the top and bottom floor to ensure a multi-dimensional experience for the various users of the building. The Silo will thus be inhabited, but at the same time also be a destination for all Copenhageners; a kind of urban silo.

1123-COB-CPH.DK-2014.16 — Posted in 2015 — Explore more projects on housing and residential — Climate: temperate and oceanic / maritime — Coordinates: 55.708232, 12.597946 — Team: Dan Stubbergaard, Caroline Nagel, Greta Tiedje, Claes Nilsson, Ted Schaumann, Navid Christensen, Alexander Ejsing, Rune Boserup, Liv Moodie, Caroline Henke, Emil Scharnweber, Emre Senoglu, Kaisa Lillemets, Milda Naujalyte, Elin Parry, Javier Hernani — Collaborator: Wessberg, Alectia — Views: 12.768