Neubau Museum der Bayerischen Geschichte is a proposal by Jorge Ruiz Boluda Jorge López and Paul Dieterlen for Bavarian History Museum Regensburg designed in 2013. It is located in Regensburg Germany in a riverside and old town setting. Its scale is medium. The concept of sloped roof is explored. Review the 3 proposals for the same competition.

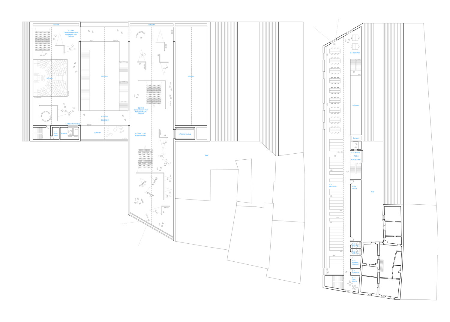
Con el nuevo edificio para el Museo de la Historia de Baviera pretendemos potenciar la idea de identidad, mezclando paisaje urbano y paisaje natural. El edificio se muestra como una «caja con un contenido valioso», el contenido es la memoria de Baviera. La caja se presenta con un juego de cubiertas a dos aguas, que se integran en el skyline de la ciudad y dialoga con ella.

0066-JRB-DE-2013 — Posted in 2013 — Explore more projects on cultural and museum — Climate: continental and temperate — Coordinates: 49.020168, 12.102234 — Collaborator: Agustín Durá Herrero, Tania Navarro Aparicio — Views: 3.024