Museum for History and Future is a proposal by Dürig Ag for City of Turku. It is located in Turku Finland in a seaside setting. Its scale is medium with a surface of 6.900 sqm. Key materials are metal and polycarbonate. Tegmark collaborated as visualizer. Concepts such as technology and sustainability are explored. Review the 6 proposals for the same competition.

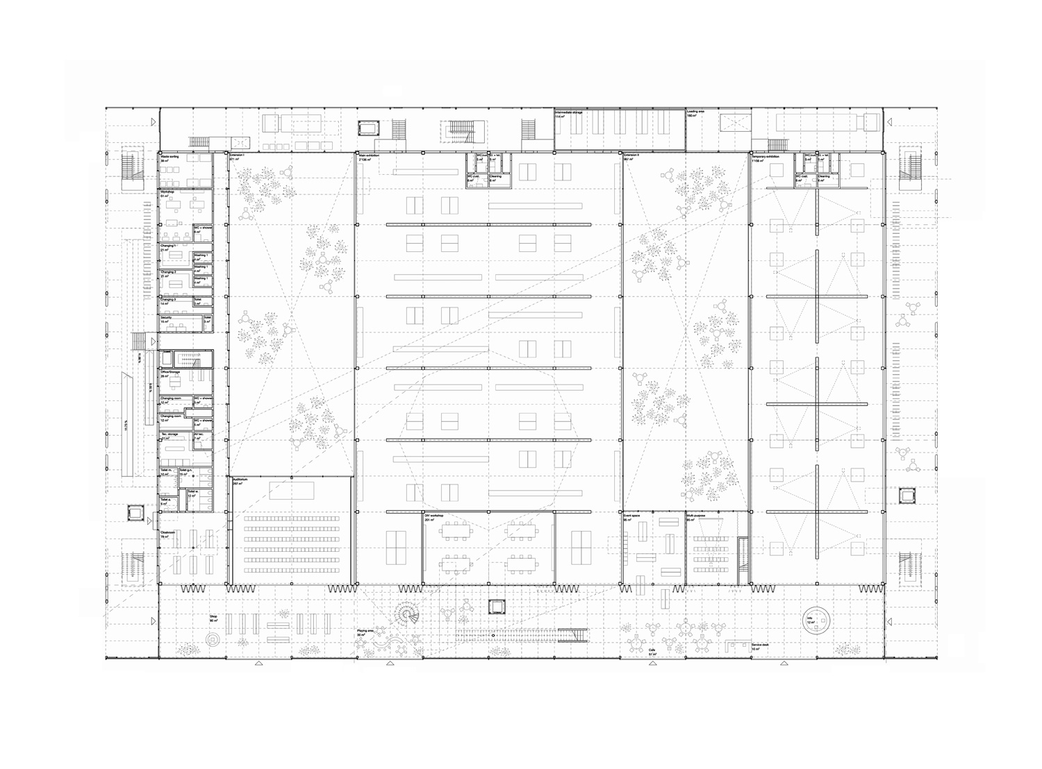
International competition for the new Museum of History and Future at the Seashore in Turku, Finland. The design draws architectural, structural, organizational, and material references from the past, present, and future use of the port. Elements like shipyards, warehouses, cargo-handling infrastructure, and terminal buildings for passengers and vehicles influence the building’s design, ensuring a connection with its role as a museum of history and future. The project repurposes existing port infrastructure, turning necessity into an opportunity for sustainability: bridges, ramps, containers, and entire pavilions, as well as structural and façade elements from the existing buildings, are integrated into the new design as objets trouvés from the harbor, symbolizing both the past and future through their reuse.

0486-DÜR-FI-2024 — Posted in 2024 — Explore more projects on cultural and museum — Climate: continental and temperate — Coordinates: 60.433921, 22.223980 — Team: Jean-Pierre Dürig, Joshua Brägger — Views: 1.634