Neubau Feuerwehrmagazin is a completed project by Berrel Berrel Kräutler for Municipality of Pratteln designed in 2010. It is located in Pratteln Switzerland in an industrial setting. Its scale is medium. Key materials are glass and metal. Concepts such as transparency and color explosion are explored.

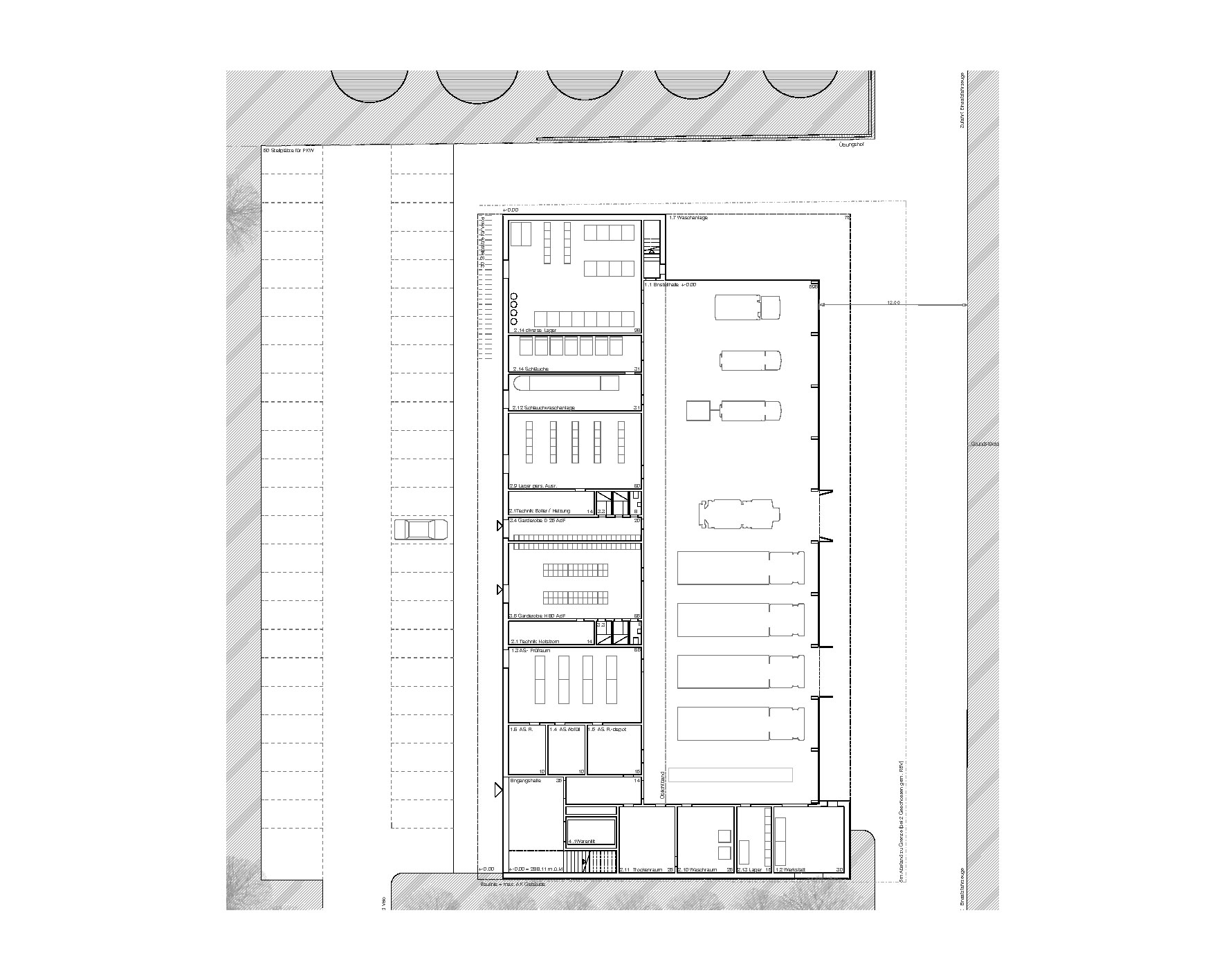
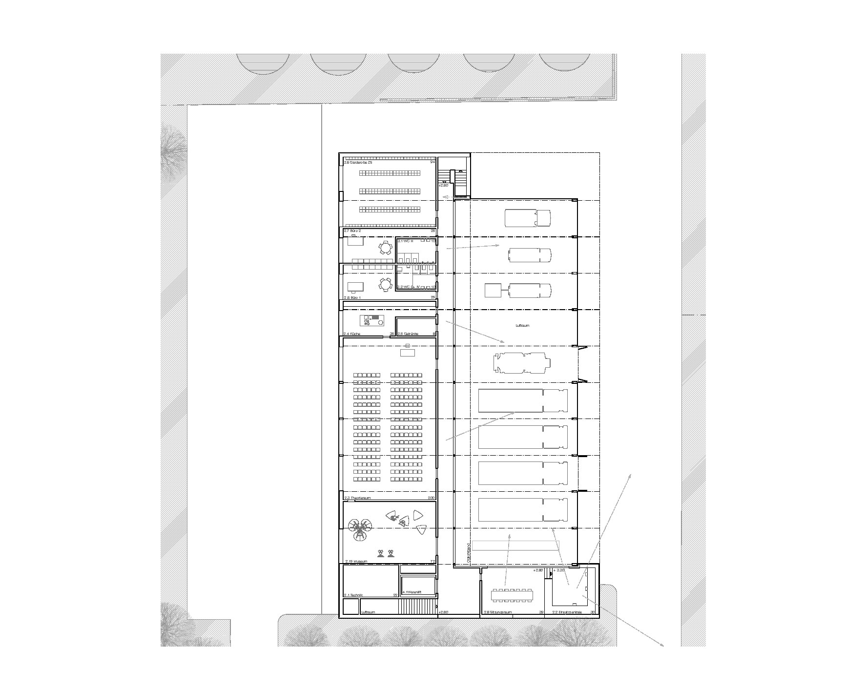
Die ostseitig ausgerichteten, fahrbereiten Feuerwehrfahrzeuge bilden den Grundstein für die Gebäudestruktur. Zusammen mit dem über die Mittelachse gespiegelten Serviceteil wird die Grunddisposition der Gesamtanlage definiert. Für die interne Gebäudeerschliessung bildet die Schnittstelle von Fahrzeugund Serviceteil eine Art Rückgrat. Auf der Erdgeschossebene wie im Obergeschoss dient diese Zone der Erschliessung der Räume. Nordund südseitig situieren sich zwei Treppen als Vertikalerschliessung. In Strassennähe bildet sich die kleine Eingangshalle mit der im Vergleich zur nordseitigen Fluchttreppe prominenteren Treppenanlage zu einer diskreten Empfangszone. Externe Besucher, die den Theoriesaal oder den Museumsraum zum Ziel haben, erhalten durch die Sichtverbindung in die Einstellhalle auf selbstverständliche Weise Einblick in den Betrieb des Feuerwehrmagazins. Ebenso direkt erschlossen ist die Raumeinheit für Besprechungen und Kommando. Die Serviceraumschicht im Erdgeschoss ist auf zwei Seiten durchlässig, damit die Verbindung von Ankunft/Anlieferung zur Fahrzeughalle gut und direkt gewährleistet ist.

Die Fassadenverkleidung aus grobmaschigem Streckmetall umhüllt das Haus und bindet das Volumen gut zusammen. Fenster sind je nach Nutzungsart und ästhetischem Anspruch teilweise hinter der Metallebene situiert und erhalten so eine verschleierte Erscheinung, teilweise orientieren Sie sich als Augen nach Aussen und nehmen so Kontakt mit der Aussenwelt auf. Nicht nur die organisatorische und ablauforientierte Optimierung spielte im Entwurfprozess eine Rolle, auch den Anforderungen in Hinblick auf Effi zienz und Ökonomie wurde Rechnung getragen. Es wurden Materialien gewählt, die zum einen günstig sind und zum anderen zusätzliche Funktionen bieten.

0757-BBK-CH-2010 — Posted in 2013 — Explore more projects on institutional and police station — Climate: oceanic / maritime and temperate — Coordinates: 47.520749, 7.681901 — Views: 3.604