Dance pavilion is a second prize proposal by Maccari Carrera Architects for Ville de Genève designed in 2013. It is located in Geneva Switzerland in a park setting. Its scale is medium with a surface of 1.000 sqm an estimated budget of 10.000.000 € and a ratio of 10.000 €/sqm. Key material is wood. Concepts such as sloped roof lightweight structure and linear block are explored.

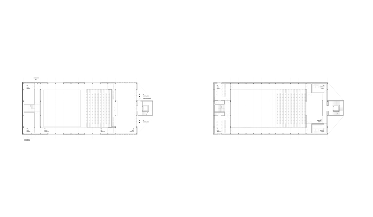
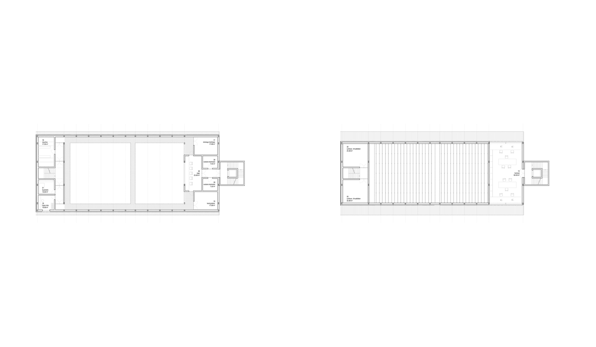
The dance pavilion lies on the axis of Place Charles-Sturm, previously occupied by the southern fortifications of the city and now characterized by two rows of trees that emphasize the strong linear character of the site. The position of the pavilion is dictated by the desire to settle in one compact volume the functional program in order to preserve all the trees belonging to the urban space. A new axis is created in relation to the Russian church though creating two new urban areas. At northwest the theatre “disappears” leaving protagonism to the church; the «mirror” facade of the theater becomes an opportunity to create an «art installation» symbol of a theatrical world that reflects the avenue and creating an optical illusion. At southeast the urban element of the kiosk activates the square onto which the Foyer overlooks. The two plane trees are the protagonists of this space. The form of the building adapts to the shape of the trees, modelling the section in the form of a cut pyramid which accommodates both public and artists in a large single performing space.

«Contemporary dance is free, free from constraints and codification» – Martha Graham

0758-MCR-GVA.CH-2013 — Posted in 2013 — Explore more projects on cultural and music school — Climate: temperate and oceanic / maritime — Coordinates: 46.198944, 6.154544 — Team: Eleonora Maccari, Roi Carrera — Collaborator: Andres Peñuela, Marina Huget — Engineer: Antoni Tarrida production director, X-MADE facade consultor — Model maker: BUIT Taller — Views: 3.429