New Laboratory and Physics Building ETH Zürich is a proposal by EM2N for ETH Zürich designed in 2016. It is located in Zürich Switzerland in a campus setting. Its scale is large with a surface of 30.000 sqm. Key material is concrete.

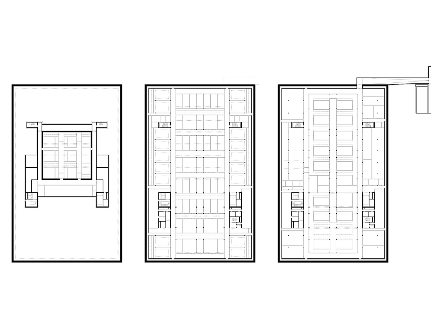
The new HPQ laboratory and office building reacts with spatial and programmatic measures to its urban position between the central main axis of the university campus and the Flora-Ruchat-Roncati Garden at the rear. A partly two-storey entrance hall is a multi-functional area that stretches across the entire ground floor of the building and extends public space through the building to the garden behind. It also functions as a public insertion between two extremely specific volumes that developed above and below the ground floor. While highly specific research rooms and laboratories occupy the floors below ground level, above the plinth floor the building is organised as a compact, five-storey volume containing offices, social spaces and physics laboratories. Two spatial cascades stepping in opposite directions, one along each of the long facades, form a conceptual focus of the research cube. These diagonal spatial figures are available as internal vessels for communication. All the group rooms, seminar zones, tea kitchens and other communal programs are located here and these spaces connect all five storeys with each other.

1809-EM2-ZRH.CH-2016 — Posted in 2017 — Explore more projects on education and research center — Climate: oceanic / maritime and temperate — Coordinates: 47.409702, 8.508011 — Views: 8.552