New School in Helsingør is a winning proposal by Effekt for City of Helsingborg designed in 2012. It is located in Helsingborg Denmark in an urban setting. Its scale is large with a surface of 20.000 sqm. Key materials are wood and metal. Concepts such as fragmentation and extension are explored.

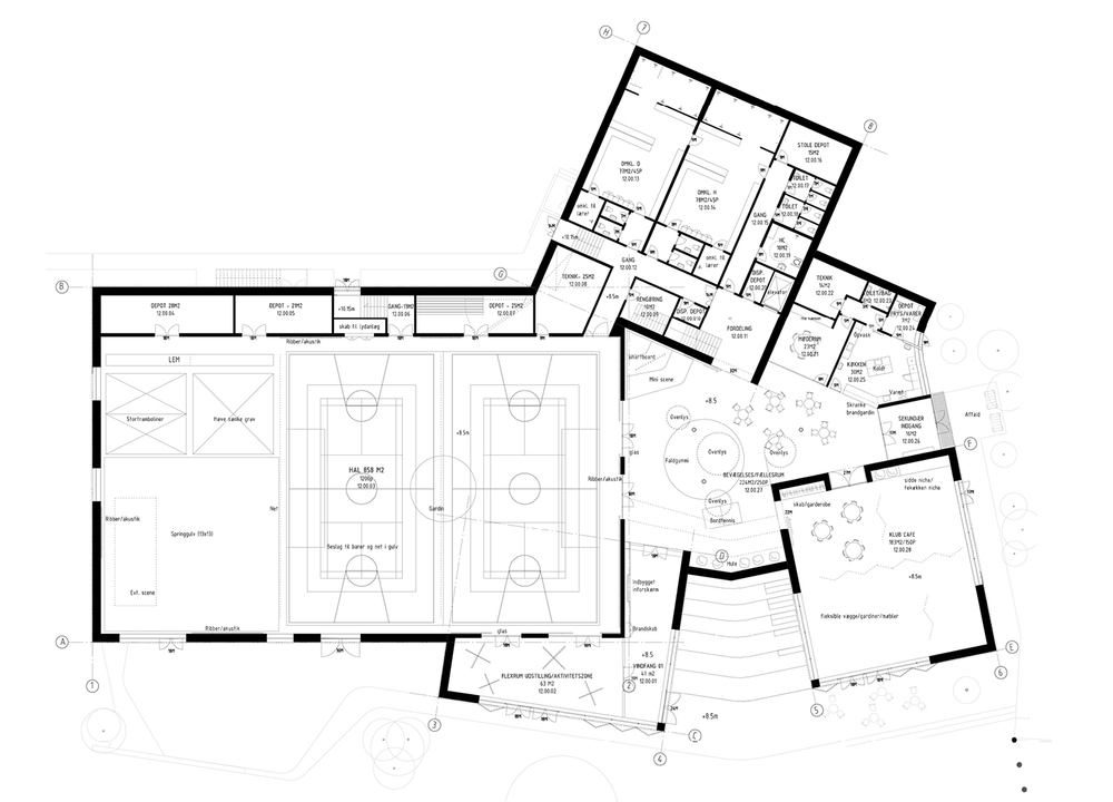
The school is envisioned not as a modern office building with classrooms, but as a whole urban district – a learning city for kids – that supports more movement – great variety – and a place being integral part of the of the city. The city becomes part of the school and the school becomes part of the city. The entire site is transformed into one coherent floor connecting the entire complex on a playful and differentiated surface. Smaller parks, plazas and gardens frame local environments. The project involves new buildings as well as tranformation of historical buildings into one united and modern School. The new Sports Complex connects a big green area with the rest of the school. The Sports Complex is divided into many houses that can be uses separately and together. The different houses are connected by a central space under the landscape stair.

0921-EFF-DK-2012 — Posted in 2014 — Explore more projects on education and school — Climate: oceanic / maritime and temperate — Coordinates: 56.038660, 12.606938 — Team: Tue Hesselberg Foged, Sinus Lynge, Gitte Juul Sørensen, Tina Lund Højgaard, Anders Hjortnæs, Rodrigo Rieiro Díaz, Marie Louise Holst — Collaborator: RUBOW, Arup, Axel V. Jensen, Lassen Landskab — Consultant: Charlotte Schuldt (School Specialist), Ebbe Kromann-Andersen (School specialist), Stephane Barbou des Places (Idébureau 2+1), Peter Bäcker Hansen (trafical engineer, ÅF Hansen & Henneberg), Niels V. Jordan (specialist in acoustics at Jordan Akustik) — Views: 6.001